フロア詳細情報

北新地スター(大阪府大阪市北区曾根崎新地1丁目11番19号)のフロア情報

北新地スターのビル詳細を見る
空室状況はお電話一本でスムーズにご案内!まずはお気軽に0120-939-204へどうぞ。
でお問い合わせ(無料メール 簡単1
※上記の写真は人物等が映っている場合、修正・加工が施されています。
物件情報更新日: 2025/03/18

北新地スターの物件概要

ビル名
北新地スター
物件番号/物件ID 14200
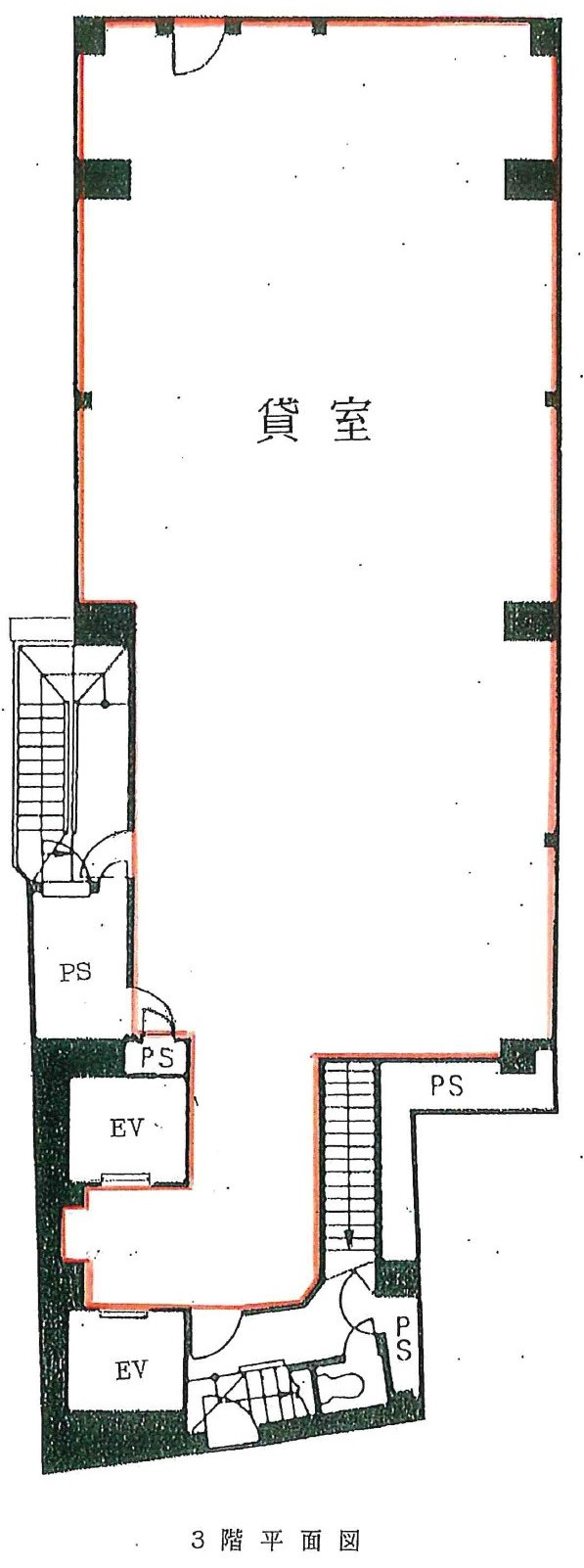
住所 大阪府大阪市北区曾根崎新地1丁目11番19号 面積(平米) 175.37㎡
最寄り駅
【最寄り駅1】

JR東西線 北新地駅  徒歩2分

【最寄り駅2】

大阪メトロ四つ橋線 西梅田駅  徒歩4分

【最寄り駅3】

大阪メトロ谷町線 東梅田駅  徒歩4分

【最寄り駅4】

阪神本線 大阪梅田駅  徒歩5分

坪数 53.05坪
実行面積 100.00%
空調 個別
竣工 1982年09月01日
構造 RC地上9階建地下1階
エレベーター基数 荷物用エレベーター基数
階数 地上 3階 退去日 退去日の詳細につきましては、お問い合わせください。
備考
ビル名
北新地スター
住所 14200
最寄り駅
【最寄り駅1】

JR東西線 北新地駅  徒歩2分

【最寄り駅2】

大阪メトロ四つ橋線 西梅田駅  徒歩4分

【最寄り駅3】

大阪メトロ谷町線 東梅田駅  徒歩4分

【最寄り駅4】

阪神本線 大阪梅田駅  徒歩5分

エレベーター基数
階数 3階
物件番号/物件ID 14200
面積(平米) 175.37㎡
坪数 53.05坪
実行面積 100.00%
空調 個別
竣工 1982年09月01日
構造 RC地上9階建地下1階
荷物用エレベーター基数
退去日 退去日の詳細につきましては、お問い合わせください。
備考

北新地スターの募集価格

総額 坪単価
賃料 823,443円 賃料 15,522円
共益費 131,511円 共益費 2,479円
月額合計 954,954円 月額合計 18,001円
保証金/敷金 5,000,016円 保証金/敷金 94,251円
礼金 5,000,000円 礼金 94,251円
賃料条件補足事項 保証会社加入要
総額
賃料 823,443円
共益費 131,511円
月額合計 954,954円
保証金/敷金 5,000,016円
礼金 5,000,000円
坪単価
賃料 15,522円
共益費 2,479円
月額合計 18,001円
保証金/敷金 94,251円
礼金 94,251円
賃料条件補足事項 保証会社加入要

北新地スターのその他空室情報

階数 広さ 賃料合計(税別) 坪単価 保証金・敷金 礼金
4F 14.53坪 305,100円 20,999円 990,000円 2,310,000円
フロア詳細
フロア詳細
6F 22.70坪 431,323円 19,001円 2,300,010円 2,300,000円
フロア詳細
フロア詳細
空室情報や物件見学などお気軽にお問い合わせください。
ESTATE AGENCY
株式会社エステートエージェンシー
定休日:日曜日・祝日 営業時間:09:00~19:00
でお問い合わせ(無料メール 簡単1 電話でお問い合わせ(無料)

北新地スターの基本情報

インフォメーション
北新地スタービルは、北区エリア(大阪市北区曽根崎新地1丁目)にある、1982年竣工、地上9階地下1階建の賃貸オフィスビルです。最寄駅は、JR東西線 北新地駅 徒歩1分のアクセス。是非一度ご内覧下さいませ!その他、事務所、オフィス移転の事なら何でもご相談下さい。
※貸主様からのご要望の為、条件を未公開としている場合がございます。詳しくお聞きになりたい場合は、弊社までご連絡ください。
※賃料、共益費、礼金、その他費用には別途消費税が掛かります。
※上記金額は募集条件です。条件交渉などについてはお気軽にお問い合わせください。
※確認時点での情報のため、リアルタイム情報はお問合せください。

北新地スターの施設情報カテゴリ

1棟貸可能
駅直結
大型EV
大型駐車場
大通り沿い
傘いらず
貸会議室
空中店舗相談
ヴィンテージ・レトロ
シャワートイレ
セキュリティ
SOHO(住居兼事務所)
デザイナーズ・個性派
トイレ男女別
荷物EVあり
ハイグレードオフィス
ネット回線引込可
ビル内貸倉庫
免振・制振構造
有人警備
ランドマーク
リニューアル
フリースペース
レンタルオフィス
新耐震
駅近(出口
築浅
川沿い、公園沿い
自転車置場

自転車置場料金: ー 円

北新地スターのアクセスマップ

空室情報や物件見学などお気軽にお問い合わせください。
ESTATE AGENCY
株式会社エステートエージェンシー
定休日:日曜日・祝日 営業時間:09:00~19:00
でお問い合わせ(無料メール 簡単1 電話でお問い合わせ(無料)