フロア詳細情報

三宮フコク生命(兵庫県神戸市中央区磯上通7丁目1番30号)のフロア情報

三宮フコク生命のビル詳細を見る
空室状況はお電話一本でスムーズにご案内!まずはお気軽に0120-939-204へどうぞ。
でお問い合わせ(無料メール 簡単1
※上記の写真は人物等が映っている場合、修正・加工が施されています。
物件情報更新日: 2026/03/04

三宮フコク生命の物件概要

ビル名
三宮フコク生命
物件番号/物件ID 18812
住所 兵庫県神戸市中央区磯上通7丁目1番30号 面積(平米) 136.69㎡
最寄り駅
【最寄り駅1】

夢かもめ 三宮・花時計前駅  徒歩2分

【最寄り駅2】

阪神本線 神戸三宮駅  徒歩4分

【最寄り駅3】

JR東海道本線 三ノ宮駅  徒歩6分

【最寄り駅4】

阪神本線 神戸三宮駅  徒歩5分

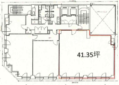
坪数 41.35坪
実行面積 100.00%
空調 個別
竣工 1991年09月01日
構造 SRC地上9階建
エレベーター基数 2 荷物用エレベーター基数
階数 地上 3階 退去日 退去日の詳細につきましては、お問い合わせください。
備考 商談中
共用部リニューアル済、喫煙ルーム有
ビル名
三宮フコク生命
住所 18812
最寄り駅
【最寄り駅1】

夢かもめ 三宮・花時計前駅  徒歩2分

【最寄り駅2】

阪神本線 神戸三宮駅  徒歩4分

【最寄り駅3】

JR東海道本線 三ノ宮駅  徒歩6分

【最寄り駅4】

阪神本線 神戸三宮駅  徒歩5分

エレベーター基数 2
階数 3階
物件番号/物件ID 18812
面積(平米) 136.69㎡
坪数 41.35坪
実行面積 100.00%
空調 個別
竣工 1991年09月01日
構造 SRC地上9階建
荷物用エレベーター基数
退去日 退去日の詳細につきましては、お問い合わせください。
備考 商談中
共用部リニューアル済、喫煙ルーム有

三宮フコク生命の募集価格

総額 坪単価
賃料 非公開 賃料 非公開
共益費 非公開 共益費 非公開
月額合計 非公開 月額合計 非公開
保証金/敷金 非公開 保証金/敷金 非公開
礼金 非公開 礼金 非公開
賃料条件補足事項
総額
賃料 非公開
共益費 非公開
月額合計 非公開
保証金/敷金 非公開
礼金 非公開
坪単価
賃料 非公開
共益費 非公開
月額合計 非公開
保証金/敷金 非公開
礼金 非公開
賃料条件補足事項
空室情報や物件見学などお気軽にお問い合わせください。
ESTATE AGENCY
株式会社エステートエージェンシー
定休日:日曜日・祝日 営業時間:09:00~19:00
でお問い合わせ(無料メール 簡単1 電話でお問い合わせ(無料)

三宮フコク生命の基本情報

インフォメーション
この三宮フコク生命ビルは住所兵庫県神戸市中央区磯上通1番30号の1991年竣工、地上9階建の賃貸オフィスビルです。最寄駅は、夢かもめ三宮・花時計前駅徒歩2分のアクセス。是非一度ご内覧下さいませ! その他、事務所、オフィス移転、不動産の事なら何でもお気軽にご相談下さい。
※貸主様からのご要望の為、条件を未公開としている場合がございます。詳しくお聞きになりたい場合は、弊社までご連絡ください。
※賃料、共益費、礼金、その他費用には別途消費税が掛かります。
※上記金額は募集条件です。条件交渉などについてはお気軽にお問い合わせください。
※確認時点での情報のため、リアルタイム情報はお問合せください。

三宮フコク生命の施設情報カテゴリ

1棟貸可能
駅直結
大型EV
大型駐車場
大通り沿い
傘いらず
貸会議室
空中店舗相談
ヴィンテージ・レトロ
シャワートイレ
セキュリティ
SOHO(住居兼事務所)
デザイナーズ・個性派
トイレ男女別
荷物EVあり
ハイグレードオフィス
ネット回線引込可
ビル内貸倉庫
免振・制振構造
有人警備
ランドマーク
リニューアル
フリースペース
レンタルオフィス
新耐震
駅近(出口
築浅
川沿い、公園沿い
自転車置場

自転車置場料金: ー 円

三宮フコク生命のアクセスマップ

空室情報や物件見学などお気軽にお問い合わせください。
ESTATE AGENCY
株式会社エステートエージェンシー
定休日:日曜日・祝日 営業時間:09:00~19:00
でお問い合わせ(無料メール 簡単1 電話でお問い合わせ(無料)

最近チェックした物件