フロア詳細情報

M.VOLANTE UMEDA(大阪府大阪市北区曾根崎2丁目7番4号)のフロア情報

空室状況はお電話一本でスムーズにご案内!まずはお気軽に0120-939-204へどうぞ。
でお問い合わせ(無料メール 簡単1
※上記の写真は人物等が映っている場合、修正・加工が施されています。
物件情報更新日: 2025/12/04

M.VOLANTE UMEDAの物件概要

ビル名
M.VOLANTE UMEDA
物件番号/物件ID 21559
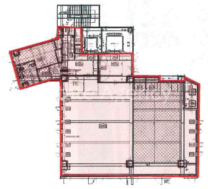
住所 大阪府大阪市北区曾根崎2丁目7番4号 面積(平米) 204.33㎡
最寄り駅
【最寄り駅1】

大阪メトロ谷町線 東梅田駅  徒歩2分

【最寄り駅2】

阪神本線 大阪梅田駅  徒歩5分

【最寄り駅3】

JR東西線 北新地駅  徒歩5分

【最寄り駅4】

大阪メトロ四つ橋線 西梅田駅  徒歩6分

坪数 61.81坪
実行面積
空調
竣工 2024年05月31日
構造 鉄骨地上12階建
エレベーター基数 荷物用エレベーター基数
階数 地上 2階 退去日 退去日の詳細につきましては、お問い合わせください。
備考 スケルトン,クリニック(診療所用途)
ビル名
M.VOLANTE UMEDA
住所 21559
最寄り駅
【最寄り駅1】

大阪メトロ谷町線 東梅田駅  徒歩2分

【最寄り駅2】

阪神本線 大阪梅田駅  徒歩5分

【最寄り駅3】

JR東西線 北新地駅  徒歩5分

【最寄り駅4】

大阪メトロ四つ橋線 西梅田駅  徒歩6分

エレベーター基数
階数 2階
物件番号/物件ID 21559
面積(平米) 204.33㎡
坪数 61.81坪
実行面積
空調
竣工 2024年05月31日
構造 鉄骨地上12階建
荷物用エレベーター基数
退去日 退去日の詳細につきましては、お問い合わせください。
備考 スケルトン,クリニック(診療所用途)

M.VOLANTE UMEDAの募集価格

総額 坪単価
賃料 非公開 賃料 非公開
共益費 非公開 共益費 非公開
月額合計 非公開 月額合計 非公開
保証金/敷金 非公開 保証金/敷金 非公開
礼金 非公開 礼金 非公開
賃料条件補足事項 定借(期間相談)
総額
賃料 非公開
共益費 非公開
月額合計 非公開
保証金/敷金 非公開
礼金 非公開
坪単価
賃料 非公開
共益費 非公開
月額合計 非公開
保証金/敷金 非公開
礼金 非公開
賃料条件補足事項 定借(期間相談)
空室情報や物件見学などお気軽にお問い合わせください。
ESTATE AGENCY
株式会社エステートエージェンシー
定休日:日曜日・祝日 営業時間:09:00~19:00
でお問い合わせ(無料メール 簡単1 電話でお問い合わせ(無料)
※貸主様からのご要望の為、条件を未公開としている場合がございます。詳しくお聞きになりたい場合は、弊社までご連絡ください。
※賃料、共益費、礼金、その他費用には別途消費税が掛かります。
※上記金額は募集条件です。条件交渉などについてはお気軽にお問い合わせください。

M.VOLANTE UMEDAの施設情報カテゴリ

1棟貸可能
駅直結
大型EV
大型駐車場
大通り沿い
傘いらず
貸会議室
空中店舗相談
ヴィンテージ・レトロ
シャワートイレ
セキュリティ
SOHO(住居兼事務所)
デザイナーズ・個性派
トイレ男女別
荷物EVあり
ハイグレードオフィス
ネット回線引込可
ビル内貸倉庫
免振・制振構造
有人警備
ランドマーク
リニューアル
フリースペース
レンタルオフィス
新耐震
駅近(出口
築浅
川沿い、公園沿い
自転車置場

自転車置場料金: ー 円

M.VOLANTE UMEDAのアクセスマップ

空室情報や物件見学などお気軽にお問い合わせください。
ESTATE AGENCY
株式会社エステートエージェンシー
定休日:日曜日・祝日 営業時間:09:00~19:00
でお問い合わせ(無料メール 簡単1 電話でお問い合わせ(無料)