フロア詳細情報

日生ビル東館(大阪府大阪市北区芝田2丁目2番13号)のフロア情報

日生ビル東館のビル詳細を見る
空室状況はお電話一本でスムーズにご案内!まずはお気軽に0120-939-204へどうぞ。
でお問い合わせ(無料メール 簡単1
※上記の写真は人物等が映っている場合、修正・加工が施されています。
物件情報更新日: 2026/05/01

日生ビル東館の物件概要

ビル名
日生ビル東館
物件番号/物件ID 14624
住所 大阪府大阪市北区芝田2丁目2番13号 面積(平米) 69.58㎡
最寄り駅
【最寄り駅1】

JR大阪環状線 大阪駅  徒歩6分

【最寄り駅2】

大阪メトロ御堂筋線 梅田駅  徒歩3分

【最寄り駅3】

阪急京都本線 大阪梅田駅  徒歩4分

坪数 21.05坪
実行面積 80.00%
空調 個別
竣工 1965年07月30日
構造 RC造地上8階建地下1階
エレベーター基数 2 荷物用エレベーター基数
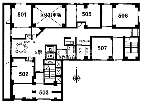
階数 地上 5階 退去日 退去日の詳細につきましては、お問い合わせください。
備考
ビル名
日生ビル東館
住所 14624
最寄り駅
【最寄り駅1】

JR大阪環状線 大阪駅  徒歩6分

【最寄り駅2】

大阪メトロ御堂筋線 梅田駅  徒歩3分

【最寄り駅3】

阪急京都本線 大阪梅田駅  徒歩4分

エレベーター基数 2
階数 5階
物件番号/物件ID 14624
面積(平米) 69.58㎡
坪数 21.05坪
実行面積 80.00%
空調 個別
竣工 1965年07月30日
構造 RC造地上8階建地下1階
荷物用エレベーター基数
退去日 退去日の詳細につきましては、お問い合わせください。
備考

日生ビル東館の募集価格

総額 坪単価
賃料 378,900円 賃料 18,000円
共益費 63,150円 共益費 3,000円
月額合計 442,050円 月額合計 21,000円
保証金/敷金 0円 保証金/敷金 0円
礼金 757,800円 礼金 36,000円
賃料条件補足事項 OAフロア、光回線の空配管が貸室内まで通っている 家賃保証会社と契約締結の場合敷金0円、定期借家契約5年(中途解約可) 契約当初2年未満で解約の場合、早期解約違約金あり(税込賃料2ヶ月分)
総額
賃料 378,900円
共益費 63,150円
月額合計 442,050円
保証金/敷金 0円
礼金 757,800円
坪単価
賃料 18,000円
共益費 3,000円
月額合計 21,000円
保証金/敷金 0円
礼金 36,000円
賃料条件補足事項 OAフロア、光回線の空配管が貸室内まで通っている 家賃保証会社と契約締結の場合敷金0円、定期借家契約5年(中途解約可) 契約当初2年未満で解約の場合、早期解約違約金あり(税込賃料2ヶ月分)
空室情報や物件見学などお気軽にお問い合わせください。
ESTATE AGENCY
株式会社エステートエージェンシー
定休日:日曜日・祝日 営業時間:09:00~19:00
でお問い合わせ(無料メール 簡単1 電話でお問い合わせ(無料)

日生ビル東館の基本情報

インフォメーション
日生ビル東館は、北区エリア(大阪市北区芝田2丁目)にある、1965年竣工、地上8階地下1階建の賃貸オフィスビルです。最寄駅は、大阪メトロ御堂筋線 梅田駅 徒歩2分のアクセス。グランフロント大阪近隣の人気エリア。是非一度ご内覧下さいませ!その他、事務所、オフィス移転の事なら何でもご相談下さい。
※貸主様からのご要望の為、条件を未公開としている場合がございます。詳しくお聞きになりたい場合は、弊社までご連絡ください。
※賃料、共益費、礼金、その他費用には別途消費税が掛かります。
※上記金額は募集条件です。条件交渉などについてはお気軽にお問い合わせください。
※確認時点での情報のため、リアルタイム情報はお問合せください。

日生ビル東館の施設情報カテゴリ

1棟貸可能
駅直結
大型EV
大型駐車場
大通り沿い
傘いらず
貸会議室
空中店舗相談
ヴィンテージ・レトロ
シャワートイレ
セキュリティ
SOHO(住居兼事務所)
デザイナーズ・個性派
トイレ男女別
荷物EVあり
ハイグレードオフィス
ネット回線引込可
ビル内貸倉庫
免振・制振構造
有人警備
ランドマーク
リニューアル
フリースペース
レンタルオフィス
新耐震
駅近(出口
築浅
川沿い、公園沿い
自転車置場

自転車置場料金: ー 円

日生ビル東館のアクセスマップ

空室情報や物件見学などお気軽にお問い合わせください。
ESTATE AGENCY
株式会社エステートエージェンシー
定休日:日曜日・祝日 営業時間:09:00~19:00
でお問い合わせ(無料メール 簡単1 電話でお問い合わせ(無料)

申し訳ございません。
会員登録をお願い致します。

会員登録のメリット

  • 1、非公開物件情報のご紹介が可能です!
  • 2、ご希望条件をいただきましたら新着物件情報等を定期的に配信いたします!
  • 3、会員登録されたお客様にはご契約時に特別なプレゼントをご用意しております!
会員登録

※会員登録は同業者不可、メールアドレスは企業ドメインのみ
※GmailやYahooなどのフリーメールでは会員登録できないこともありますのでご了承ください。