フロア詳細情報

ユニシオ西天満(大阪府大阪市北区西天満2丁目2番3号)のフロア情報

ユニシオ西天満のビル詳細を見る
空室状況はお電話一本でスムーズにご案内!まずはお気軽に0120-939-204へどうぞ。
でお問い合わせ(無料メール 簡単1
※上記の写真は人物等が映っている場合、修正・加工が施されています。
物件情報更新日: 2026/04/23

ユニシオ西天満の物件概要

ビル名
ユニシオ西天満
物件番号/物件ID 13719
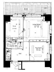
住所 大阪府大阪市北区西天満2丁目2番3号 面積(平米) 62.77㎡
最寄り駅
【最寄り駅1】

大阪メトロ御堂筋線 淀屋橋駅  徒歩6分

【最寄り駅2】

大阪メトロ谷町線 東梅田駅  徒歩8分

【最寄り駅3】

大阪メトロ堺筋線 北浜駅  徒歩8分

【最寄り駅4】

大阪メトロ谷町線 南森町駅  徒歩9分

坪数 18.99坪
実行面積 100.00%
空調 個別
竣工 2012年03月01日
構造 RC地上10階建地下0階
エレベーター基数 1 荷物用エレベーター基数
階数 地上 1階 退去日 退去日の詳細につきましては、お問い合わせください。
備考
ビル名
ユニシオ西天満
住所 13719
最寄り駅
【最寄り駅1】

大阪メトロ御堂筋線 淀屋橋駅  徒歩6分

【最寄り駅2】

大阪メトロ谷町線 東梅田駅  徒歩8分

【最寄り駅3】

大阪メトロ堺筋線 北浜駅  徒歩8分

【最寄り駅4】

大阪メトロ谷町線 南森町駅  徒歩9分

エレベーター基数 1
階数 1階
物件番号/物件ID 13719
面積(平米) 62.77㎡
坪数 18.99坪
実行面積 100.00%
空調 個別
竣工 2012年03月01日
構造 RC地上10階建地下0階
荷物用エレベーター基数
退去日 退去日の詳細につきましては、お問い合わせください。
備考

ユニシオ西天満の募集価格

総額 坪単価
賃料 237,455円 賃料 12,505円
共益費 0円 共益費 0円
月額合計 237,455円 月額合計 12,505円
保証金/敷金 237,470円 保証金/敷金 12,505円
礼金 474,910円 礼金 25,009円
賃料条件補足事項
総額
賃料 237,455円
共益費 0円
月額合計 237,455円
保証金/敷金 237,470円
礼金 474,910円
坪単価
賃料 12,505円
共益費 0円
月額合計 12,505円
保証金/敷金 12,505円
礼金 25,009円
賃料条件補足事項
空室情報や物件見学などお気軽にお問い合わせください。
ESTATE AGENCY
株式会社エステートエージェンシー
定休日:日曜日・祝日 営業時間:09:00~19:00
でお問い合わせ(無料メール 簡単1 電話でお問い合わせ(無料)

ユニシオ西天満の基本情報

インフォメーション
ユニシオ西天満ビルは、北区エリア(大阪市北区西天満2丁目)にある、2012年竣工、地上10階建の賃貸オフィスビルです。最寄駅は、京阪中之島線 大江橋駅 徒歩6分のアクセス。是非一度ご内覧下さいませ!その他、事務所、オフィス移転の事なら何でもご相談下さい。
※貸主様からのご要望の為、条件を未公開としている場合がございます。詳しくお聞きになりたい場合は、弊社までご連絡ください。
※賃料、共益費、礼金、その他費用には別途消費税が掛かります。
※上記金額は募集条件です。条件交渉などについてはお気軽にお問い合わせください。
※確認時点での情報のため、リアルタイム情報はお問合せください。

ユニシオ西天満の施設情報カテゴリ

1棟貸可能
駅直結
大型EV
大型駐車場
大通り沿い
傘いらず
貸会議室
空中店舗相談
ヴィンテージ・レトロ
シャワートイレ
セキュリティ
SOHO(住居兼事務所)
デザイナーズ・個性派
トイレ男女別
荷物EVあり
ハイグレードオフィス
ネット回線引込可
ビル内貸倉庫
免振・制振構造
有人警備
ランドマーク
リニューアル
フリースペース
レンタルオフィス
新耐震
駅近(出口
築浅
川沿い、公園沿い
自転車置場

自転車置場料金: ー 円

ユニシオ西天満のアクセスマップ

空室情報や物件見学などお気軽にお問い合わせください。
ESTATE AGENCY
株式会社エステートエージェンシー
定休日:日曜日・祝日 営業時間:09:00~19:00
でお問い合わせ(無料メール 簡単1 電話でお問い合わせ(無料)

よく似た物件