フロア詳細情報

IPSX BASE(兵庫県神戸市中央区御幸通4丁目2番12号)のフロア情報

空室状況はお電話一本でスムーズにご案内!まずはお気軽に0120-939-204へどうぞ。
でお問い合わせ(無料メール 簡単1
※上記の写真は人物等が映っている場合、修正・加工が施されています。
物件情報更新日: 2026/04/20

IPSX BASEの物件概要

ビル名
IPSX BASE
物件番号/物件ID 18480
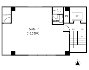
住所 兵庫県神戸市中央区御幸通4丁目2番12号 面積(平米) 54.01㎡
最寄り駅
【最寄り駅1】

阪神本線 神戸三宮駅  徒歩5分

【最寄り駅2】

夢かもめ 三宮・花時計前駅  徒歩5分

【最寄り駅3】

ポートアイランド線 三宮駅  徒歩5分

【最寄り駅4】

JR東海道本線 三ノ宮駅  徒歩5分

坪数 16.34坪
実行面積
空調 個別
竣工 1990年06月01日
構造 S造地上9階建
エレベーター基数 1 荷物用エレベーター基数
階数 地上 9階 退去日 退去日の詳細につきましては、お問い合わせください。
備考
ビル名
IPSX BASE
住所 18480
最寄り駅
【最寄り駅1】

阪神本線 神戸三宮駅  徒歩5分

【最寄り駅2】

夢かもめ 三宮・花時計前駅  徒歩5分

【最寄り駅3】

ポートアイランド線 三宮駅  徒歩5分

【最寄り駅4】

JR東海道本線 三ノ宮駅  徒歩5分

エレベーター基数 1
階数 9階
物件番号/物件ID 18480
面積(平米) 54.01㎡
坪数 16.34坪
実行面積
空調 個別
竣工 1990年06月01日
構造 S造地上9階建
荷物用エレベーター基数
退去日 退去日の詳細につきましては、お問い合わせください。
備考

IPSX BASEの募集価格

総額 坪単価
賃料 142,300円 賃料 8,709円
共益費 32,700円 共益費 2,001円
月額合計 175,000円 月額合計 10,710円
保証金/敷金 530,000円 保証金/敷金 32,436円
礼金 0円 礼金 0円
賃料条件補足事項
総額
賃料 142,300円
共益費 32,700円
月額合計 175,000円
保証金/敷金 530,000円
礼金 0円
坪単価
賃料 8,709円
共益費 2,001円
月額合計 10,710円
保証金/敷金 32,436円
礼金 0円
賃料条件補足事項
空室情報や物件見学などお気軽にお問い合わせください。
ESTATE AGENCY
株式会社エステートエージェンシー
定休日:日曜日・祝日 営業時間:09:00~19:00
でお問い合わせ(無料メール 簡単1 電話でお問い合わせ(無料)
※貸主様からのご要望の為、条件を未公開としている場合がございます。詳しくお聞きになりたい場合は、弊社までご連絡ください。
※賃料、共益費、礼金、その他費用には別途消費税が掛かります。
※上記金額は募集条件です。条件交渉などについてはお気軽にお問い合わせください。
※確認時点での情報のため、リアルタイム情報はお問合せください。

IPSX BASEの施設情報カテゴリ

1棟貸可能
駅直結
大型EV
大型駐車場
大通り沿い
傘いらず
貸会議室
空中店舗相談
ヴィンテージ・レトロ
シャワートイレ
セキュリティ
SOHO(住居兼事務所)
デザイナーズ・個性派
トイレ男女別
荷物EVあり
ハイグレードオフィス
ネット回線引込可
ビル内貸倉庫
免振・制振構造
有人警備
ランドマーク
リニューアル
フリースペース
レンタルオフィス
新耐震
駅近(出口
築浅
川沿い、公園沿い
自転車置場

自転車置場料金: ー 円

IPSX BASEのアクセスマップ

空室情報や物件見学などお気軽にお問い合わせください。
ESTATE AGENCY
株式会社エステートエージェンシー
定休日:日曜日・祝日 営業時間:09:00~19:00
でお問い合わせ(無料メール 簡単1 電話でお問い合わせ(無料)

申し訳ございません。
会員登録をお願い致します。

会員登録のメリット

  • 1、非公開物件情報のご紹介が可能です!
  • 2、ご希望条件をいただきましたら新着物件情報等を定期的に配信いたします!
  • 3、会員登録されたお客様にはご契約時に特別なプレゼントをご用意しております!
会員登録

※会員登録は同業者不可、メールアドレスは企業ドメインのみ
※GmailやYahooなどのフリーメールでは会員登録できないこともありますのでご了承ください。