フロア詳細情報

プロジェクト(大阪府大阪市淀川区西中島3丁目1番4号)のフロア情報

プロジェクトのビル詳細を見る
空室状況はお電話一本でスムーズにご案内!まずはお気軽に0120-939-204へどうぞ。
でお問い合わせ(無料メール 簡単1
※上記の写真は人物等が映っている場合、修正・加工が施されています。
物件情報更新日: 2025/10/17

プロジェクトの物件概要

ビル名
プロジェクト
物件番号/物件ID 14708
住所 大阪府大阪市淀川区西中島3丁目1番4号 面積(平米) 56.95㎡
最寄り駅
【最寄り駅1】

阪急京都本線 南方駅  徒歩2分

【最寄り駅2】

大阪メトロ御堂筋線 西中島南方駅  徒歩4分

【最寄り駅3】

大阪メトロ御堂筋線 新大阪駅  徒歩10分

【最寄り駅4】

JRおおさか東線 新大阪駅  徒歩11分

坪数 17.23坪
実行面積 100.00%
空調 個別
竣工 1991年01月01日
構造 鉄骨地上8階建地下0階
エレベーター基数 1 荷物用エレベーター基数
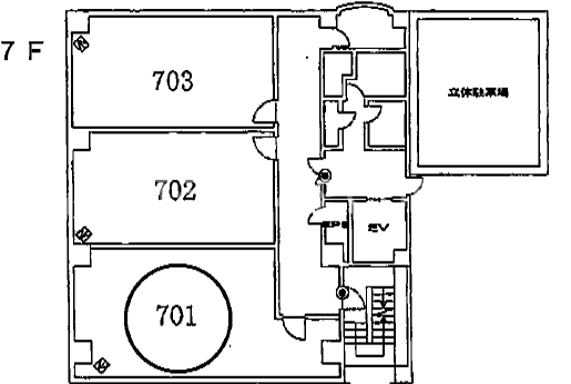
階数 地上 7階 退去日 退去日の詳細につきましては、お問い合わせください。
備考
ビル名
プロジェクト
住所 14708
最寄り駅
【最寄り駅1】

阪急京都本線 南方駅  徒歩2分

【最寄り駅2】

大阪メトロ御堂筋線 西中島南方駅  徒歩4分

【最寄り駅3】

大阪メトロ御堂筋線 新大阪駅  徒歩10分

【最寄り駅4】

JRおおさか東線 新大阪駅  徒歩11分

エレベーター基数 1
階数 7階
物件番号/物件ID 14708
面積(平米) 56.95㎡
坪数 17.23坪
実行面積 100.00%
空調 個別
竣工 1991年01月01日
構造 鉄骨地上8階建地下0階
荷物用エレベーター基数
退去日 退去日の詳細につきましては、お問い合わせください。
備考

プロジェクトの募集価格

総額 坪単価
賃料 155,070円 賃料 9,000円
共益費 0円 共益費 0円
月額合計 155,070円 月額合計 9,000円
保証金/敷金 930,420円 保証金/敷金 54,000円
礼金 0円 礼金 0円
賃料条件補足事項 敷引:~1年未満100%、~2年80%、~3年60%、~4年40%、~5年20%、5年以上全額返還
総額
賃料 155,070円
共益費 0円
月額合計 155,070円
保証金/敷金 930,420円
礼金 0円
坪単価
賃料 9,000円
共益費 0円
月額合計 9,000円
保証金/敷金 54,000円
礼金 0円
賃料条件補足事項 敷引:~1年未満100%、~2年80%、~3年60%、~4年40%、~5年20%、5年以上全額返還

プロジェクトのその他空室情報

階数 広さ 賃料合計(税別) 坪単価 保証金・敷金 礼金
3F 33.44坪 300,960円 9,000円 1,805,760円 0円
フロア詳細
フロア詳細
3F 14.95坪 134,550円 9,000円 807,300円 0円
フロア詳細
フロア詳細
1F 26.90坪 338,940円 12,600円 2,033,640円 0円
フロア詳細
フロア詳細
空室情報や物件見学などお気軽にお問い合わせください。
ESTATE AGENCY
株式会社エステートエージェンシー
定休日:日曜日・祝日 営業時間:09:00~19:00
でお問い合わせ(無料メール 簡単1 電話でお問い合わせ(無料)

プロジェクトの基本情報

インフォメーション
このプロジェクトビルは住所大阪府大阪市淀川区西中島3丁目1番4号の1991年竣工、地上8階建の賃貸オフィスビルです。最寄駅は、阪急京都本線南方駅徒歩2分のアクセス。設備情報はセキュリティ、24時間利用可能、光回線、部屋セキュリティ。是非一度ご内覧下さいませ! その他、事務所、オフィス移転、不動産の事なら何でもお気軽にご相談下さい。
※貸主様からのご要望の為、条件を未公開としている場合がございます。詳しくお聞きになりたい場合は、弊社までご連絡ください。
※賃料、共益費、礼金、その他費用には別途消費税が掛かります。
※上記金額は募集条件です。条件交渉などについてはお気軽にお問い合わせください。

プロジェクトの施設情報カテゴリ

1棟貸可能
駅直結
大型EV
大型駐車場
大通り沿い
傘いらず
貸会議室
空中店舗相談
ヴィンテージ・レトロ
シャワートイレ
セキュリティ
SOHO(住居兼事務所)
デザイナーズ・個性派
トイレ男女別
荷物EVあり
ハイグレードオフィス
ネット回線引込可
ビル内貸倉庫
免振・制振構造
有人警備
ランドマーク
リニューアル
フリースペース
レンタルオフィス
新耐震
駅近(出口
築浅
川沿い、公園沿い
自転車置場

自転車置場料金: ー 円

プロジェクトのアクセスマップ

空室情報や物件見学などお気軽にお問い合わせください。
ESTATE AGENCY
株式会社エステートエージェンシー
定休日:日曜日・祝日 営業時間:09:00~19:00
でお問い合わせ(無料メール 簡単1 電話でお問い合わせ(無料)

よく似た物件