フロア詳細情報

大磯箕面第1・2(大阪府箕面市船場東3丁目6番13号)のフロア情報

大磯箕面第1・2のビル詳細を見る
空室状況はお電話一本でスムーズにご案内!まずはお気軽に0120-939-204へどうぞ。
でお問い合わせ(無料メール 簡単1
※上記の写真は人物等が映っている場合、修正・加工が施されています。
物件情報更新日: 2025/12/16

大磯箕面第1・2の物件概要

ビル名
大磯箕面第1・2
物件番号/物件ID 24442
住所 大阪府箕面市船場東3丁目6番13号 面積(平米) 6971.47㎡
最寄り駅
【最寄り駅1】

阪急千里線 北千里駅  徒歩20分

【最寄り駅2】

北大阪急行電鉄 千里中央駅  徒歩21分

【最寄り駅3】

大阪モノレール線 千里中央駅  徒歩23分

【最寄り駅4】

阪急箕面線 牧落駅  徒歩32分

坪数 2108.87坪
実行面積
空調
竣工 1973年11月01日
構造 RC地上5階建地下2階
エレベーター基数 4 荷物用エレベーター基数
階数 地上 1階 退去日 退去日の詳細につきましては、お問い合わせください。
備考
ビル名
大磯箕面第1・2
住所 24442
最寄り駅
【最寄り駅1】

阪急千里線 北千里駅  徒歩20分

【最寄り駅2】

北大阪急行電鉄 千里中央駅  徒歩21分

【最寄り駅3】

大阪モノレール線 千里中央駅  徒歩23分

【最寄り駅4】

阪急箕面線 牧落駅  徒歩32分

エレベーター基数 4
階数 1階
物件番号/物件ID 24442
面積(平米) 6971.47㎡
坪数 2108.87坪
実行面積
空調
竣工 1973年11月01日
構造 RC地上5階建地下2階
荷物用エレベーター基数
退去日 退去日の詳細につきましては、お問い合わせください。
備考

大磯箕面第1・2の募集価格

総額 坪単価
賃料 非公開 賃料 非公開
共益費 非公開 共益費 非公開
月額合計 非公開 月額合計 非公開
保証金/敷金 非公開 保証金/敷金 非公開
礼金 非公開 礼金 非公開
賃料条件補足事項
総額
賃料 非公開
共益費 非公開
月額合計 非公開
保証金/敷金 非公開
礼金 非公開
坪単価
賃料 非公開
共益費 非公開
月額合計 非公開
保証金/敷金 非公開
礼金 非公開
賃料条件補足事項

大磯箕面第1・2のその他空室情報

階数 広さ 賃料合計(税別) 坪単価 保証金・敷金 礼金
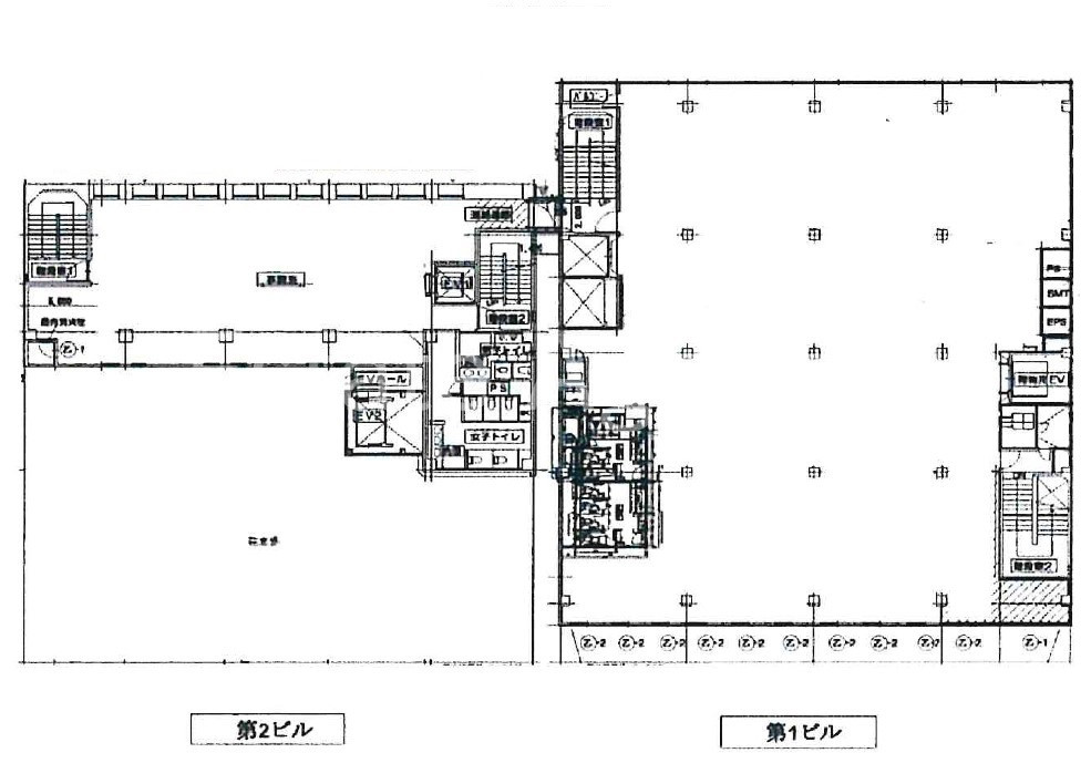
1F 1533.96坪 非公開 非公開 非公開 非公開
フロア詳細
フロア詳細
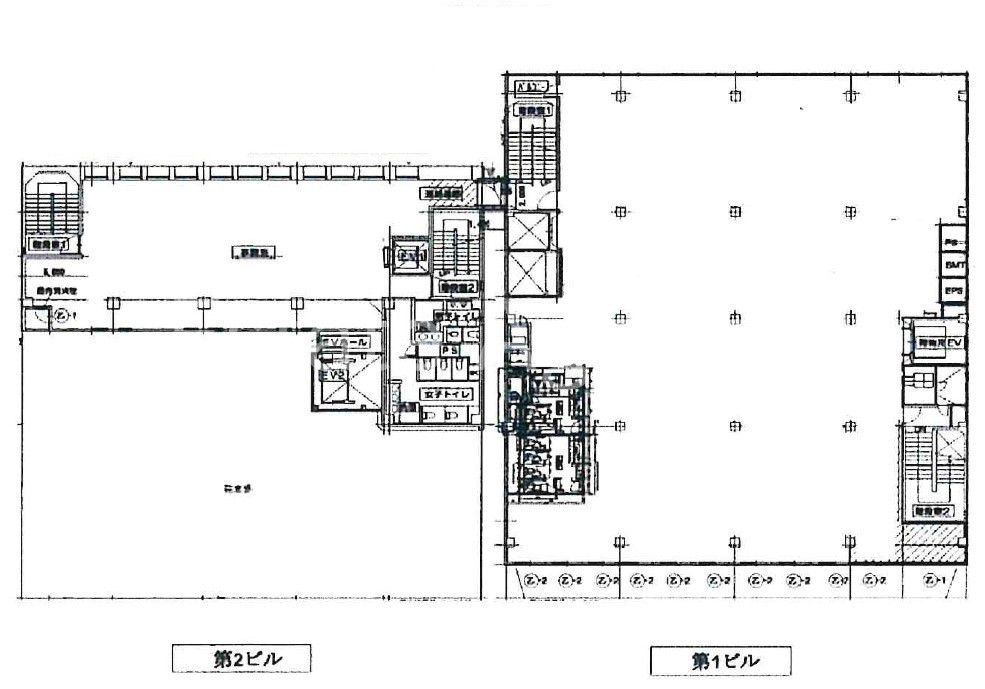
1F 569.47坪 非公開 非公開 非公開 非公開
フロア詳細
フロア詳細
1F 5.44坪 非公開 非公開 非公開 非公開
フロア詳細
フロア詳細
空室情報や物件見学などお気軽にお問い合わせください。
ESTATE AGENCY
株式会社エステートエージェンシー
定休日:日曜日・祝日 営業時間:09:00~19:00
でお問い合わせ(無料メール 簡単1 電話でお問い合わせ(無料)
※貸主様からのご要望の為、条件を未公開としている場合がございます。詳しくお聞きになりたい場合は、弊社までご連絡ください。
※賃料、共益費、礼金、その他費用には別途消費税が掛かります。
※上記金額は募集条件です。条件交渉などについてはお気軽にお問い合わせください。

大磯箕面第1・2の施設情報カテゴリ

1棟貸可能
駅直結
大型EV
大型駐車場
大通り沿い
傘いらず
貸会議室
空中店舗相談
ヴィンテージ・レトロ
シャワートイレ
セキュリティ
SOHO(住居兼事務所)
デザイナーズ・個性派
トイレ男女別
荷物EVあり
ハイグレードオフィス
ネット回線引込可
ビル内貸倉庫
免振・制振構造
有人警備
ランドマーク
リニューアル
フリースペース
レンタルオフィス
新耐震
駅近(出口
築浅
川沿い、公園沿い
自転車置場

自転車置場料金: ー 円

大磯箕面第1・2のアクセスマップ

空室情報や物件見学などお気軽にお問い合わせください。
ESTATE AGENCY
株式会社エステートエージェンシー
定休日:日曜日・祝日 営業時間:09:00~19:00
でお問い合わせ(無料メール 簡単1 電話でお問い合わせ(無料)

最近チェックした物件