フロア詳細情報

コンパーノ(大阪府吹田市江の木町丁目なし17番1号)のフロア情報

コンパーノのビル詳細を見る
空室状況はお電話一本でスムーズにご案内!まずはお気軽に0120-939-204へどうぞ。
でお問い合わせ(無料メール 簡単1
※上記の写真は人物等が映っている場合、修正・加工が施されています。
物件情報更新日: 2026/03/02

コンパーノの物件概要

ビル名
コンパーノ
物件番号/物件ID 15650
住所 大阪府吹田市江の木町丁目なし17番1号 面積(平米) 128.59㎡
最寄り駅
【最寄り駅1】

北大阪急行電鉄 江坂駅  徒歩4分

【最寄り駅2】

大阪メトロ御堂筋線 江坂駅  徒歩4分

【最寄り駅3】

阪急千里線 豊津駅  徒歩19分

【最寄り駅4】

JRおおさか東線 南吹田駅  徒歩19分

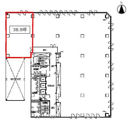
坪数 38.90坪
実行面積 100.00%
空調 個別
竣工 1993年08月01日
構造 RC地上8階建地下0階
エレベーター基数 3 荷物用エレベーター基数 1
階数 地上 5階 退去日 退去日の詳細につきましては、お問い合わせください。
備考
ビル名
コンパーノ
住所 15650
最寄り駅
【最寄り駅1】

北大阪急行電鉄 江坂駅  徒歩4分

【最寄り駅2】

大阪メトロ御堂筋線 江坂駅  徒歩4分

【最寄り駅3】

阪急千里線 豊津駅  徒歩19分

【最寄り駅4】

JRおおさか東線 南吹田駅  徒歩19分

エレベーター基数 3
階数 5階
物件番号/物件ID 15650
面積(平米) 128.59㎡
坪数 38.90坪
実行面積 100.00%
空調 個別
竣工 1993年08月01日
構造 RC地上8階建地下0階
荷物用エレベーター基数 1
退去日 退去日の詳細につきましては、お問い合わせください。
備考

コンパーノの募集価格

総額 坪単価
賃料 非公開 賃料 非公開
共益費 非公開 共益費 非公開
月額合計 非公開 月額合計 非公開
保証金/敷金 非公開 保証金/敷金 非公開
礼金 非公開 礼金 非公開
賃料条件補足事項
総額
賃料 非公開
共益費 非公開
月額合計 非公開
保証金/敷金 非公開
礼金 非公開
坪単価
賃料 非公開
共益費 非公開
月額合計 非公開
保証金/敷金 非公開
礼金 非公開
賃料条件補足事項

コンパーノのその他空室情報

階数 広さ 賃料合計(税別) 坪単価 保証金・敷金 礼金
3F 37.20坪 非公開 非公開 非公開 非公開
フロア詳細
フロア詳細
空室情報や物件見学などお気軽にお問い合わせください。
ESTATE AGENCY
株式会社エステートエージェンシー
定休日:日曜日・祝日 営業時間:09:00~19:00
でお問い合わせ(無料メール 簡単1 電話でお問い合わせ(無料)

コンパーノの基本情報

インフォメーション
コンパーノビルは、吹田市エリア(大阪府吹田市江の木町)にある、1993年竣工、地上8階建の賃貸オフィスビルです。最寄駅は、北大阪急行電鉄 江坂駅 徒歩3分のアクセス。外観はグレー御影石仕様となっております。厳かな雰囲気のエントランスフロア、黒と白を基調にしたシックなデザインが魅力的な事務所物件です。オフィスビルには機械式駐車場が併設されています。江坂駅から徒歩4分のアクセス環境にあり、新御堂筋に面した立地となっております。駅近、新御堂筋沿いの大型角物件。エントランス等、共用部も広くストレスを感じさせないランドマーク物件。是非一度ご内覧下さいませ!その他、事務所、オフィス移転の事なら何でもご相談下さい。
※貸主様からのご要望の為、条件を未公開としている場合がございます。詳しくお聞きになりたい場合は、弊社までご連絡ください。
※賃料、共益費、礼金、その他費用には別途消費税が掛かります。
※上記金額は募集条件です。条件交渉などについてはお気軽にお問い合わせください。
※確認時点での情報のため、リアルタイム情報はお問合せください。

コンパーノの施設情報カテゴリ

1棟貸可能
駅直結
大型EV
大型駐車場
大通り沿い
傘いらず
貸会議室
空中店舗相談
ヴィンテージ・レトロ
シャワートイレ
セキュリティ
SOHO(住居兼事務所)
デザイナーズ・個性派
トイレ男女別
荷物EVあり
ハイグレードオフィス
ネット回線引込可
ビル内貸倉庫
免振・制振構造
有人警備
ランドマーク
リニューアル
フリースペース
レンタルオフィス
新耐震
駅近(出口
築浅
川沿い、公園沿い
自転車置場

自転車置場料金: ー 円

コンパーノのアクセスマップ

空室情報や物件見学などお気軽にお問い合わせください。
ESTATE AGENCY
株式会社エステートエージェンシー
定休日:日曜日・祝日 営業時間:09:00~19:00
でお問い合わせ(無料メール 簡単1 電話でお問い合わせ(無料)

よく似た物件