フロア詳細情報

平野町中央(大阪府大阪市中央区平野町3丁目2番13号)のフロア情報

平野町中央のビル詳細を見る
空室状況はお電話一本でスムーズにご案内!まずはお気軽に0120-939-204へどうぞ。
でお問い合わせ(無料メール 簡単1
※上記の写真は人物等が映っている場合、修正・加工が施されています。
物件情報更新日: 2025/12/16

平野町中央の物件概要

ビル名
平野町中央
物件番号/物件ID 9907
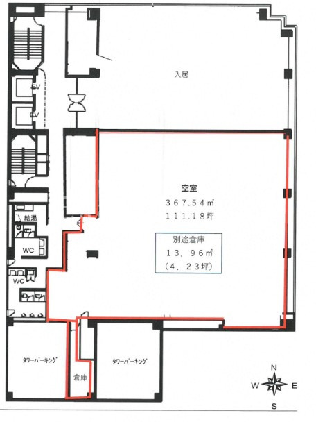
住所 大阪府大阪市中央区平野町3丁目2番13号 面積(平米) 367.53㎡
最寄り駅
【最寄り駅1】

大阪メトロ御堂筋線 淀屋橋駅  徒歩5分

【最寄り駅2】

大阪メトロ堺筋線 北浜駅  徒歩6分

【最寄り駅3】

大阪メトロ四つ橋線 肥後橋駅  徒歩8分

【最寄り駅4】

大阪メトロ御堂筋線 本町駅  徒歩8分

坪数 111.18坪
実行面積 100.00%
空調 個別
竣工 1990年05月01日
構造 SRC地上8階建地下1階
エレベーター基数 2 荷物用エレベーター基数
階数 地上 3階 退去日 退去日の詳細につきましては、お問い合わせください。
備考 倉庫4.23坪付き
ビル名
平野町中央
住所 9907
最寄り駅
【最寄り駅1】

大阪メトロ御堂筋線 淀屋橋駅  徒歩5分

【最寄り駅2】

大阪メトロ堺筋線 北浜駅  徒歩6分

【最寄り駅3】

大阪メトロ四つ橋線 肥後橋駅  徒歩8分

【最寄り駅4】

大阪メトロ御堂筋線 本町駅  徒歩8分

エレベーター基数 2
階数 3階
物件番号/物件ID 9907
面積(平米) 367.53㎡
坪数 111.18坪
実行面積 100.00%
空調 個別
竣工 1990年05月01日
構造 SRC地上8階建地下1階
荷物用エレベーター基数
退去日 退去日の詳細につきましては、お問い合わせください。
備考 倉庫4.23坪付き

平野町中央の募集価格

総額 坪単価
賃料 1,056,210円 賃料 9,500円
共益費 389,130円 共益費 3,500円
月額合計 1,445,340円 月額合計 13,000円
保証金/敷金 10,562,100円 保証金/敷金 95,000円
礼金 0円 礼金 0円
賃料条件補足事項
総額
賃料 1,056,210円
共益費 389,130円
月額合計 1,445,340円
保証金/敷金 10,562,100円
礼金 0円
坪単価
賃料 9,500円
共益費 3,500円
月額合計 13,000円
保証金/敷金 95,000円
礼金 0円
賃料条件補足事項

平野町中央のその他空室情報

階数 広さ 賃料合計(税別) 坪単価 保証金・敷金 礼金
7F 36.82坪 478,660円 13,000円 3,497,900円 0円
フロア詳細
フロア詳細
空室情報や物件見学などお気軽にお問い合わせください。
ESTATE AGENCY
株式会社エステートエージェンシー
定休日:日曜日・祝日 営業時間:09:00~19:00
でお問い合わせ(無料メール 簡単1 電話でお問い合わせ(無料)

平野町中央の基本情報

インフォメーション
平野町中央ビルは、中央区エリア(大阪市中央区平野町3丁目)にある、1990年竣工、地上8階地下1階建の賃貸オフィスビルです。最寄駅は大阪メトロ御堂筋線 淀屋橋駅 徒歩5分のアクセス。三休橋筋に面す交差点角ビルで採光充分。高級感あるグレーのパネルと大理石調の外観。是非一度ご内覧下さいませ!その他、事務所、オフィス移転の事なら何でもご相談下さい。
※貸主様からのご要望の為、条件を未公開としている場合がございます。詳しくお聞きになりたい場合は、弊社までご連絡ください。
※賃料、共益費、礼金、その他費用には別途消費税が掛かります。
※上記金額は募集条件です。条件交渉などについてはお気軽にお問い合わせください。

平野町中央の施設情報カテゴリ

1棟貸可能
駅直結
大型EV
大型駐車場
大通り沿い
傘いらず
貸会議室
空中店舗相談
ヴィンテージ・レトロ
シャワートイレ
セキュリティ
SOHO(住居兼事務所)
デザイナーズ・個性派
トイレ男女別
荷物EVあり
ハイグレードオフィス
ネット回線引込可
ビル内貸倉庫
免振・制振構造
有人警備
ランドマーク
リニューアル
フリースペース
レンタルオフィス
新耐震
駅近(出口
築浅
川沿い、公園沿い
自転車置場

自転車置場料金: ー 円

平野町中央のアクセスマップ

空室情報や物件見学などお気軽にお問い合わせください。
ESTATE AGENCY
株式会社エステートエージェンシー
定休日:日曜日・祝日 営業時間:09:00~19:00
でお問い合わせ(無料メール 簡単1 電話でお問い合わせ(無料)

最近チェックした物件