フロア詳細情報

TAG北心斎橋(大阪府大阪市中央区博労町3丁目6番14号)のフロア情報

TAG北心斎橋のビル詳細を見る
空室状況はお電話一本でスムーズにご案内!まずはお気軽に0120-939-204へどうぞ。
でお問い合わせ(無料メール 簡単1
※上記の写真は人物等が映っている場合、修正・加工が施されています。
物件情報更新日: 2026/03/03

TAG北心斎橋の物件概要

ビル名
TAG北心斎橋
物件番号/物件ID 10627
住所 大阪府大阪市中央区博労町3丁目6番14号 面積(平米) 43.33㎡
最寄り駅
【最寄り駅1】

大阪メトロ御堂筋線 心斎橋駅  徒歩5分

【最寄り駅2】

大阪メトロ御堂筋線 本町駅  徒歩6分

【最寄り駅3】

大阪メトロ堺筋線 長堀橋駅  徒歩7分

【最寄り駅4】

大阪メトロ堺筋線 堺筋本町駅  徒歩8分

坪数 13.11坪
実行面積 100.00%
空調 個別
竣工 1977年05月31日
構造 RC造地上6階建地下0階
エレベーター基数 1 荷物用エレベーター基数
階数 地上 5階 退去日 退去日の詳細につきましては、お問い合わせください。
備考
ビル名
TAG北心斎橋
住所 10627
最寄り駅
【最寄り駅1】

大阪メトロ御堂筋線 心斎橋駅  徒歩5分

【最寄り駅2】

大阪メトロ御堂筋線 本町駅  徒歩6分

【最寄り駅3】

大阪メトロ堺筋線 長堀橋駅  徒歩7分

【最寄り駅4】

大阪メトロ堺筋線 堺筋本町駅  徒歩8分

エレベーター基数 1
階数 5階
物件番号/物件ID 10627
面積(平米) 43.33㎡
坪数 13.11坪
実行面積 100.00%
空調 個別
竣工 1977年05月31日
構造 RC造地上6階建地下0階
荷物用エレベーター基数
退去日 退去日の詳細につきましては、お問い合わせください。
備考

TAG北心斎橋の募集価格

総額 坪単価
賃料 104,880円 賃料 8,000円
共益費 39,330円 共益費 3,000円
月額合計 144,210円 月額合計 11,000円
保証金/敷金 1,442,100円 保証金/敷金 110,000円
礼金 0円 礼金 0円
賃料条件補足事項 スライド引
総額
賃料 104,880円
共益費 39,330円
月額合計 144,210円
保証金/敷金 1,442,100円
礼金 0円
坪単価
賃料 8,000円
共益費 3,000円
月額合計 11,000円
保証金/敷金 110,000円
礼金 0円
賃料条件補足事項 スライド引

TAG北心斎橋のその他空室情報

階数 広さ 賃料合計(税別) 坪単価 保証金・敷金 礼金
2F 13.11坪 144,210円 11,000円 1,442,100円 0円
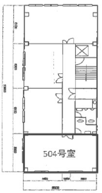
フロア詳細
フロア詳細
空室情報や物件見学などお気軽にお問い合わせください。
ESTATE AGENCY
株式会社エステートエージェンシー
定休日:日曜日・祝日 営業時間:09:00~19:00
でお問い合わせ(無料メール 簡単1 電話でお問い合わせ(無料)

TAG北心斎橋の基本情報

インフォメーション
TAG北心斎橋ビルは、中央区エリア(大阪市中央区博労町3丁目)にある、1976年竣工、地上7階建の賃貸オフィスビルです。最寄駅は、大阪メトロ御堂筋線心斎橋駅徒歩5分のアクセス。是非一度ご内覧下さいませ!その他、事務所、オフィス移転の事なら何でもご相談下さい。
※貸主様からのご要望の為、条件を未公開としている場合がございます。詳しくお聞きになりたい場合は、弊社までご連絡ください。
※賃料、共益費、礼金、その他費用には別途消費税が掛かります。
※上記金額は募集条件です。条件交渉などについてはお気軽にお問い合わせください。
※確認時点での情報のため、リアルタイム情報はお問合せください。

TAG北心斎橋の施設情報カテゴリ

1棟貸可能
駅直結
大型EV
大型駐車場
大通り沿い
傘いらず
貸会議室
空中店舗相談
ヴィンテージ・レトロ
シャワートイレ
セキュリティ
SOHO(住居兼事務所)
デザイナーズ・個性派
トイレ男女別
荷物EVあり
ハイグレードオフィス
ネット回線引込可
ビル内貸倉庫
免振・制振構造
有人警備
ランドマーク
リニューアル
フリースペース
レンタルオフィス
新耐震
駅近(出口
築浅
川沿い、公園沿い
自転車置場

自転車置場料金: ー 円

TAG北心斎橋のアクセスマップ

空室情報や物件見学などお気軽にお問い合わせください。
ESTATE AGENCY
株式会社エステートエージェンシー
定休日:日曜日・祝日 営業時間:09:00~19:00
でお問い合わせ(無料メール 簡単1 電話でお問い合わせ(無料)

よく似た物件

最近チェックした物件

申し訳ございません。
会員登録をお願い致します。

会員登録のメリット

  • 1、非公開物件情報のご紹介が可能です!
  • 2、ご希望条件をいただきましたら新着物件情報等を定期的に配信いたします!
  • 3、会員登録されたお客様にはご契約時に特別なプレゼントをご用意しております!
会員登録

※会員登録は同業者不可、メールアドレスは企業ドメインのみ
※GmailやYahooなどのフリーメールでは会員登録できないこともありますのでご了承ください。