フロア詳細情報

淀屋橋ホワイト(大阪府大阪市中央区北浜3丁目5番19号)のフロア情報

淀屋橋ホワイトのビル詳細を見る
空室状況はお電話一本でスムーズにご案内!まずはお気軽に0120-939-204へどうぞ。
でお問い合わせ(無料メール 簡単1
※上記の写真は人物等が映っている場合、修正・加工が施されています。
物件情報更新日: 2026/03/04

淀屋橋ホワイトの物件概要

ビル名
淀屋橋ホワイト
物件番号/物件ID 9628
住所 大阪府大阪市中央区北浜3丁目5番19号 面積(平米) 35.63㎡
最寄り駅
【最寄り駅1】

大阪メトロ御堂筋線 淀屋橋駅  徒歩1分

【最寄り駅2】

大阪メトロ堺筋線 北浜駅  徒歩6分

【最寄り駅3】

大阪メトロ四つ橋線 肥後橋駅  徒歩7分

【最寄り駅4】

京阪中之島線 大江橋駅  徒歩4分

坪数 10.78坪
実行面積 100.00%
空調 個別
竣工 1982年02月26日
構造 SRC地上11階建地下1階
エレベーター基数 2 荷物用エレベーター基数
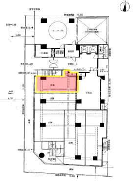
階数 地上 1階 退去日 退去日の詳細につきましては、お問い合わせください。
備考
ビル名
淀屋橋ホワイト
住所 9628
最寄り駅
【最寄り駅1】

大阪メトロ御堂筋線 淀屋橋駅  徒歩1分

【最寄り駅2】

大阪メトロ堺筋線 北浜駅  徒歩6分

【最寄り駅3】

大阪メトロ四つ橋線 肥後橋駅  徒歩7分

【最寄り駅4】

京阪中之島線 大江橋駅  徒歩4分

エレベーター基数 2
階数 1階
物件番号/物件ID 9628
面積(平米) 35.63㎡
坪数 10.78坪
実行面積 100.00%
空調 個別
竣工 1982年02月26日
構造 SRC地上11階建地下1階
荷物用エレベーター基数
退去日 退去日の詳細につきましては、お問い合わせください。
備考

淀屋橋ホワイトの募集価格

総額 坪単価
賃料 300,000円 賃料 27,830円
共益費 0円 共益費 0円
月額合計 300,000円 月額合計 27,830円
保証金/敷金 900,000円 保証金/敷金 83,488円
礼金 900,000円 礼金 83,490円
賃料条件補足事項 保証会社加入義務有
総額
賃料 300,000円
共益費 0円
月額合計 300,000円
保証金/敷金 900,000円
礼金 900,000円
坪単価
賃料 27,830円
共益費 0円
月額合計 27,830円
保証金/敷金 83,488円
礼金 83,490円
賃料条件補足事項 保証会社加入義務有

淀屋橋ホワイトのその他空室情報

階数 広さ 賃料合計(税別) 坪単価 保証金・敷金 礼金
4F 9.15坪 127,272円 13,911円 130,000円 236,364円
フロア詳細
フロア詳細
11F 5.08坪 80,000円 15,749円 80,000円 160,000円
フロア詳細
フロア詳細
1F 10.20坪 300,000円 29,412円 1,800,000円 600,000円
フロア詳細
フロア詳細
空室情報や物件見学などお気軽にお問い合わせください。
ESTATE AGENCY
株式会社エステートエージェンシー
定休日:日曜日・祝日 営業時間:09:00~19:00
でお問い合わせ(無料メール 簡単1 電話でお問い合わせ(無料)

淀屋橋ホワイトの基本情報

インフォメーション
淀屋橋ホワイトビルは、中央区エリア(大阪市中央区北浜3丁目)にある、1982年竣工、地上11階地下1階建の賃貸オフィスビルです。最寄駅は、大阪メトロ堺筋線 淀屋橋駅 徒歩1分のアクセス。淀屋橋では希少のコンパクトオフィスで、1階にはコーヒーショップ、地下には飲食店もあり大変利便性が高い物件です。是非一度ご内覧下さいませ!その他、事務所、オフィス移転の事なら何でもご相談下さい。
※貸主様からのご要望の為、条件を未公開としている場合がございます。詳しくお聞きになりたい場合は、弊社までご連絡ください。
※賃料、共益費、礼金、その他費用には別途消費税が掛かります。
※上記金額は募集条件です。条件交渉などについてはお気軽にお問い合わせください。
※確認時点での情報のため、リアルタイム情報はお問合せください。

淀屋橋ホワイトの施設情報カテゴリ

1棟貸可能
駅直結
大型EV
大型駐車場
大通り沿い
傘いらず
貸会議室
空中店舗相談
ヴィンテージ・レトロ
シャワートイレ
セキュリティ
SOHO(住居兼事務所)
デザイナーズ・個性派
トイレ男女別
荷物EVあり
ハイグレードオフィス
ネット回線引込可
ビル内貸倉庫
免振・制振構造
有人警備
ランドマーク
リニューアル
フリースペース
レンタルオフィス
新耐震
駅近(出口
築浅
川沿い、公園沿い
自転車置場

自転車置場料金: ー 円

淀屋橋ホワイトのアクセスマップ

空室情報や物件見学などお気軽にお問い合わせください。
ESTATE AGENCY
株式会社エステートエージェンシー
定休日:日曜日・祝日 営業時間:09:00~19:00
でお問い合わせ(無料メール 簡単1 電話でお問い合わせ(無料)

よく似た物件

最近チェックした物件