フロア詳細情報

船場ダイヤモンド(大阪府大阪市中央区久太郎町2丁目1番30号)のフロア情報

船場ダイヤモンドのビル詳細を見る
空室状況はお電話一本でスムーズにご案内!まずはお気軽に0120-939-204へどうぞ。
でお問い合わせ(無料メール 簡単1
※上記の写真は人物等が映っている場合、修正・加工が施されています。
物件情報更新日: 2025/12/01

船場ダイヤモンドの物件概要

ビル名
船場ダイヤモンド
物件番号/物件ID 10400
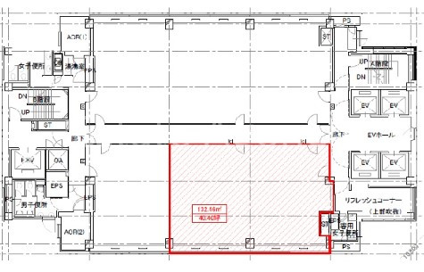
住所 大阪府大阪市中央区久太郎町2丁目1番30号 面積(平米) 132.42㎡
最寄り駅
【最寄り駅1】

大阪メトロ堺筋線 堺筋本町駅  徒歩1分

【最寄り駅2】

大阪メトロ御堂筋線 本町駅  徒歩7分

【最寄り駅3】

大阪メトロ堺筋線 長堀橋駅  徒歩8分

【最寄り駅4】

大阪メトロ中央線 堺筋本町駅  徒歩1分

坪数 40.06坪
実行面積 100.00%
空調 個別・集中
竣工 1995年05月01日
構造 SRC地上15階建地下2階
エレベーター基数 5 荷物用エレベーター基数 1
階数 地上 12階 退去日 退去日の詳細につきましては、お問い合わせください。
備考
ビル名
船場ダイヤモンド
住所 10400
最寄り駅
【最寄り駅1】

大阪メトロ堺筋線 堺筋本町駅  徒歩1分

【最寄り駅2】

大阪メトロ御堂筋線 本町駅  徒歩7分

【最寄り駅3】

大阪メトロ堺筋線 長堀橋駅  徒歩8分

【最寄り駅4】

大阪メトロ中央線 堺筋本町駅  徒歩1分

エレベーター基数 5
階数 12階
物件番号/物件ID 10400
面積(平米) 132.42㎡
坪数 40.06坪
実行面積 100.00%
空調 個別・集中
竣工 1995年05月01日
構造 SRC地上15階建地下2階
荷物用エレベーター基数 1
退去日 退去日の詳細につきましては、お問い合わせください。
備考

船場ダイヤモンドの募集価格

総額 坪単価
賃料 非公開 賃料 非公開
共益費 非公開 共益費 非公開
月額合計 非公開 月額合計 非公開
保証金/敷金 非公開 保証金/敷金 非公開
礼金 非公開 礼金 非公開
賃料条件補足事項
総額
賃料 非公開
共益費 非公開
月額合計 非公開
保証金/敷金 非公開
礼金 非公開
坪単価
賃料 非公開
共益費 非公開
月額合計 非公開
保証金/敷金 非公開
礼金 非公開
賃料条件補足事項
空室情報や物件見学などお気軽にお問い合わせください。
ESTATE AGENCY
株式会社エステートエージェンシー
定休日:日曜日・祝日 営業時間:09:00~19:00
でお問い合わせ(無料メール 簡単1 電話でお問い合わせ(無料)

船場ダイヤモンドの基本情報

インフォメーション
中央大通りと堺筋の角地大型ビル。駅前ビルリフレッシュコーナーも有り環境良好です。
※貸主様からのご要望の為、条件を未公開としている場合がございます。詳しくお聞きになりたい場合は、弊社までご連絡ください。
※賃料、共益費、礼金、その他費用には別途消費税が掛かります。
※上記金額は募集条件です。条件交渉などについてはお気軽にお問い合わせください。
※確認時点での情報のため、リアルタイム情報はお問合せください。

船場ダイヤモンドの施設情報カテゴリ

1棟貸可能
駅直結
大型EV
大型駐車場
大通り沿い
傘いらず
貸会議室
空中店舗相談
ヴィンテージ・レトロ
シャワートイレ
セキュリティ
SOHO(住居兼事務所)
デザイナーズ・個性派
トイレ男女別
荷物EVあり
ハイグレードオフィス
ネット回線引込可
ビル内貸倉庫
免振・制振構造
有人警備
ランドマーク
リニューアル
フリースペース
レンタルオフィス
新耐震
駅近(出口
築浅
川沿い、公園沿い
自転車置場

自転車置場料金: ー 円

船場ダイヤモンドのアクセスマップ

空室情報や物件見学などお気軽にお問い合わせください。
ESTATE AGENCY
株式会社エステートエージェンシー
定休日:日曜日・祝日 営業時間:09:00~19:00
でお問い合わせ(無料メール 簡単1 電話でお問い合わせ(無料)

よく似た物件

最近チェックした物件