フロア詳細情報

堺筋ウエストプレイス(大阪府大阪市中央区平野町2丁目2番13号)のフロア情報

空室状況はお電話一本でスムーズにご案内!まずはお気軽に0120-939-204へどうぞ。
でお問い合わせ(無料メール 簡単1
※上記の写真は人物等が映っている場合、修正・加工が施されています。
物件情報更新日: 2026/04/20

堺筋ウエストプレイスの物件概要

ビル名
堺筋ウエストプレイス
物件番号/物件ID 9870
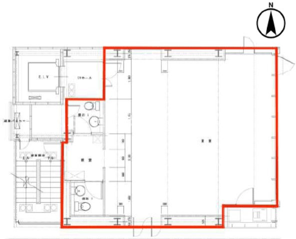
住所 大阪府大阪市中央区平野町2丁目2番13号 面積(平米) 79.17㎡
最寄り駅
【最寄り駅1】

大阪メトロ堺筋線 北浜駅  徒歩3分

【最寄り駅2】

大阪メトロ堺筋線 堺筋本町駅  徒歩7分

【最寄り駅3】

大阪メトロ御堂筋線 淀屋橋駅  徒歩8分

【最寄り駅4】

京阪中之島線 なにわ橋駅  徒歩8分

坪数 23.95坪
実行面積 90.00%
空調 個別
竣工 2007年10月30日
構造 SRC地上11階建地下0階
エレベーター基数 1 荷物用エレベーター基数
階数 地上 10階 退去日 退去日の詳細につきましては、お問い合わせください。
備考
ビル名
堺筋ウエストプレイス
住所 9870
最寄り駅
【最寄り駅1】

大阪メトロ堺筋線 北浜駅  徒歩3分

【最寄り駅2】

大阪メトロ堺筋線 堺筋本町駅  徒歩7分

【最寄り駅3】

大阪メトロ御堂筋線 淀屋橋駅  徒歩8分

【最寄り駅4】

京阪中之島線 なにわ橋駅  徒歩8分

エレベーター基数 1
階数 10階
物件番号/物件ID 9870
面積(平米) 79.17㎡
坪数 23.95坪
実行面積 90.00%
空調 個別
竣工 2007年10月30日
構造 SRC地上11階建地下0階
荷物用エレベーター基数
退去日 退去日の詳細につきましては、お問い合わせください。
備考

堺筋ウエストプレイスの募集価格

総額 坪単価
賃料 非公開 賃料 非公開
共益費 非公開 共益費 非公開
月額合計 非公開 月額合計 非公開
保証金/敷金 非公開 保証金/敷金 非公開
礼金 非公開 礼金 非公開
賃料条件補足事項
総額
賃料 非公開
共益費 非公開
月額合計 非公開
保証金/敷金 非公開
礼金 非公開
坪単価
賃料 非公開
共益費 非公開
月額合計 非公開
保証金/敷金 非公開
礼金 非公開
賃料条件補足事項

堺筋ウエストプレイスのその他空室情報

階数 広さ 賃料合計(税別) 坪単価 保証金・敷金 礼金
2F 22.87坪 非公開 非公開 非公開 非公開
フロア詳細
フロア詳細
11F 23.95坪 非公開 非公開 非公開 非公開
フロア詳細
フロア詳細
空室情報や物件見学などお気軽にお問い合わせください。
ESTATE AGENCY
株式会社エステートエージェンシー
定休日:日曜日・祝日 営業時間:09:00~19:00
でお問い合わせ(無料メール 簡単1 電話でお問い合わせ(無料)

堺筋ウエストプレイスの基本情報

インフォメーション
この堺筋ウエストプレイスビルは住所大阪府大阪市中央区平野町2丁目2番13号の2007年竣工、地上11階建の賃貸オフィスビルです。最寄駅は、大阪メトロ堺筋線北浜駅徒歩3分のアクセス。設備情報は大通り沿い、キャンペーン物件、士業向け、室内インターフォン、シャワートイレ、セキュリティ、専任・窓口物件、トイレ男女別、24時間利用可能、光回線、管理物件、OAフロア、天井高2.6以上、部屋セキュリティ、1フロア1テナント。デザイン性があり天井から床までの窓は開放感も抜群。是非一度ご内覧下さいませ! その他、事務所、オフィス移転、不動産の事なら何でもお気軽にご相談下さい。
※貸主様からのご要望の為、条件を未公開としている場合がございます。詳しくお聞きになりたい場合は、弊社までご連絡ください。
※賃料、共益費、礼金、その他費用には別途消費税が掛かります。
※上記金額は募集条件です。条件交渉などについてはお気軽にお問い合わせください。
※確認時点での情報のため、リアルタイム情報はお問合せください。

堺筋ウエストプレイスの施設情報カテゴリ

1棟貸可能
駅直結
大型EV
大型駐車場
大通り沿い
傘いらず
貸会議室
空中店舗相談
ヴィンテージ・レトロ
シャワートイレ
セキュリティ
SOHO(住居兼事務所)
デザイナーズ・個性派
トイレ男女別
荷物EVあり
ハイグレードオフィス
ネット回線引込可
ビル内貸倉庫
免振・制振構造
有人警備
ランドマーク
リニューアル
フリースペース
レンタルオフィス
新耐震
駅近(出口
築浅
川沿い、公園沿い
自転車置場

自転車置場料金: ー 円

堺筋ウエストプレイスのアクセスマップ

空室情報や物件見学などお気軽にお問い合わせください。
ESTATE AGENCY
株式会社エステートエージェンシー
定休日:日曜日・祝日 営業時間:09:00~19:00
でお問い合わせ(無料メール 簡単1 電話でお問い合わせ(無料)

最近チェックした物件