フロア詳細情報

オリックス淀屋橋(大阪府大阪市中央区北浜3丁目5番22号)のフロア情報

オリックス淀屋橋のビル詳細を見る
空室状況はお電話一本でスムーズにご案内!まずはお気軽に0120-939-204へどうぞ。
でお問い合わせ(無料メール 簡単1
※上記の写真は人物等が映っている場合、修正・加工が施されています。
物件情報更新日: 2026/05/01

オリックス淀屋橋の物件概要

ビル名
オリックス淀屋橋
物件番号/物件ID 9627
住所 大阪府大阪市中央区北浜3丁目5番22号 面積(平米) 106.57㎡
最寄り駅
【最寄り駅1】

大阪メトロ御堂筋線 淀屋橋駅  徒歩1分

【最寄り駅2】

大阪メトロ堺筋線 北浜駅  徒歩6分

【最寄り駅3】

大阪メトロ四つ橋線 肥後橋駅  徒歩7分

【最寄り駅4】

京阪中之島線 大江橋駅  徒歩4分

坪数 32.24坪
実行面積 100.00%
空調 個別
竣工 1991年03月01日
構造 SRC地上9階建地下2階
エレベーター基数 3 荷物用エレベーター基数 1
階数 地上 8階 退去日 退去日の詳細につきましては、お問い合わせください。
備考 商談中
ビル名
オリックス淀屋橋
住所 9627
最寄り駅
【最寄り駅1】

大阪メトロ御堂筋線 淀屋橋駅  徒歩1分

【最寄り駅2】

大阪メトロ堺筋線 北浜駅  徒歩6分

【最寄り駅3】

大阪メトロ四つ橋線 肥後橋駅  徒歩7分

【最寄り駅4】

京阪中之島線 大江橋駅  徒歩4分

エレベーター基数 3
階数 8階
物件番号/物件ID 9627
面積(平米) 106.57㎡
坪数 32.24坪
実行面積 100.00%
空調 個別
竣工 1991年03月01日
構造 SRC地上9階建地下2階
荷物用エレベーター基数 1
退去日 退去日の詳細につきましては、お問い合わせください。
備考 商談中

オリックス淀屋橋の募集価格

総額 坪単価
賃料 非公開 賃料 非公開
共益費 非公開 共益費 非公開
月額合計 非公開 月額合計 非公開
保証金/敷金 非公開 保証金/敷金 非公開
礼金 非公開 礼金 非公開
賃料条件補足事項
総額
賃料 非公開
共益費 非公開
月額合計 非公開
保証金/敷金 非公開
礼金 非公開
坪単価
賃料 非公開
共益費 非公開
月額合計 非公開
保証金/敷金 非公開
礼金 非公開
賃料条件補足事項

オリックス淀屋橋のその他空室情報

階数 広さ 賃料合計(税別) 坪単価 保証金・敷金 礼金
6F 19.52坪 非公開 非公開 非公開 非公開
フロア詳細
フロア詳細
6F 48.73坪 非公開 非公開 非公開 非公開
フロア詳細
フロア詳細
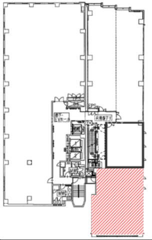
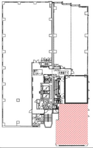
8F 33.81坪 非公開 非公開 非公開 非公開
フロア詳細
フロア詳細
7F 26.21坪 非公開 非公開 非公開 非公開
フロア詳細
フロア詳細
6F 19.56坪 非公開 非公開 非公開 非公開
フロア詳細
フロア詳細
空室情報や物件見学などお気軽にお問い合わせください。
ESTATE AGENCY
株式会社エステートエージェンシー
定休日:日曜日・祝日 営業時間:09:00~19:00
でお問い合わせ(無料メール 簡単1 電話でお問い合わせ(無料)

オリックス淀屋橋の基本情報

インフォメーション
オリックス淀屋橋は、中央区エリア(大阪市中央区北浜3丁目)にある、1991年竣工、地上9階地下2階建の賃貸オフィスビルです。最寄駅は、大阪メトロ御堂筋線 淀屋橋駅 徒歩1分のアクセス。御影石造りの大型の事務所物件で、窓面が大きく明るい雰囲気です。下層階には飲食店や文房具店などが入居。近隣にも飲食店や銀行といった施設が揃っており利便性が高いです。土佐堀通沿いの角地に位置し、交通量多くにぎやかなエリアです。屋上庭園や吹き抜けなどワーカーに配慮したハイグレードオフィスです。土佐堀通沿。東側約2/3は2006年増築。是非一度ご内覧下さい。
※貸主様からのご要望の為、条件を未公開としている場合がございます。詳しくお聞きになりたい場合は、弊社までご連絡ください。
※賃料、共益費、礼金、その他費用には別途消費税が掛かります。
※上記金額は募集条件です。条件交渉などについてはお気軽にお問い合わせください。
※確認時点での情報のため、リアルタイム情報はお問合せください。

オリックス淀屋橋の施設情報カテゴリ

1棟貸可能
駅直結
大型EV
大型駐車場
大通り沿い
傘いらず
貸会議室
空中店舗相談
ヴィンテージ・レトロ
シャワートイレ
セキュリティ
SOHO(住居兼事務所)
デザイナーズ・個性派
トイレ男女別
荷物EVあり
ハイグレードオフィス
ネット回線引込可
ビル内貸倉庫
免振・制振構造
有人警備
ランドマーク
リニューアル
フリースペース
レンタルオフィス
新耐震
駅近(出口
築浅
川沿い、公園沿い
自転車置場

自転車置場料金: ー 円

オリックス淀屋橋のアクセスマップ

空室情報や物件見学などお気軽にお問い合わせください。
ESTATE AGENCY
株式会社エステートエージェンシー
定休日:日曜日・祝日 営業時間:09:00~19:00
でお問い合わせ(無料メール 簡単1 電話でお問い合わせ(無料)

最近チェックした物件