フロア詳細情報

TSK(大阪府大阪市中央区内本町1丁目2番8号)のフロア情報

TSKのビル詳細を見る
空室状況はお電話一本でスムーズにご案内!まずはお気軽に0120-939-204へどうぞ。
でお問い合わせ(無料メール 簡単1
※上記の写真は人物等が映っている場合、修正・加工が施されています。
物件情報更新日: 0000/00/00

TSKの物件概要

ビル名
TSK
物件番号/物件ID 11322
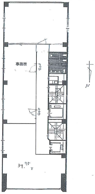
住所 大阪府大阪市中央区内本町1丁目2番8号 面積(平米) 128.92㎡
最寄り駅
【最寄り駅1】

大阪メトロ谷町線 谷町四丁目駅  徒歩1分

【最寄り駅2】

大阪メトロ谷町線 天満橋駅  徒歩9分

【最寄り駅3】

大阪メトロ堺筋線 堺筋本町駅  徒歩11分

【最寄り駅4】

大阪メトロ中央線 谷町四丁目駅  徒歩2分

坪数 39.00坪
実行面積 80.00%
空調 個別
竣工 1987年02月01日
構造 RC地上10階建地下0階
エレベーター基数 2 荷物用エレベーター基数 1
階数 地上 6階 退去日 退去日の詳細につきましては、お問い合わせください。
備考
ビル名
TSK
住所 11322
最寄り駅
【最寄り駅1】

大阪メトロ谷町線 谷町四丁目駅  徒歩1分

【最寄り駅2】

大阪メトロ谷町線 天満橋駅  徒歩9分

【最寄り駅3】

大阪メトロ堺筋線 堺筋本町駅  徒歩11分

【最寄り駅4】

大阪メトロ中央線 谷町四丁目駅  徒歩2分

エレベーター基数 2
階数 6階
物件番号/物件ID 11322
面積(平米) 128.92㎡
坪数 39.00坪
実行面積 80.00%
空調 個別
竣工 1987年02月01日
構造 RC地上10階建地下0階
荷物用エレベーター基数 1
退去日 退去日の詳細につきましては、お問い合わせください。
備考

TSKの募集価格

総額 坪単価
賃料 312,000円 賃料 8,000円
共益費 58,500円 共益費 1,500円
月額合計 370,500円 月額合計 9,500円
保証金/敷金 1,950,000円 保証金/敷金 50,000円
礼金 0円 礼金 0円
賃料条件補足事項 保証金・2年以内70%、5年以内85%、20年以内90%、以降全額返金
総額
賃料 312,000円
共益費 58,500円
月額合計 370,500円
保証金/敷金 1,950,000円
礼金 0円
坪単価
賃料 8,000円
共益費 1,500円
月額合計 9,500円
保証金/敷金 50,000円
礼金 0円
賃料条件補足事項 保証金・2年以内70%、5年以内85%、20年以内90%、以降全額返金

TSKのその他空室情報

階数 広さ 賃料合計(税別) 坪単価 保証金・敷金 礼金
6F 33.60坪 302,400円 9,000円 1,680,000円 0円
フロア詳細
フロア詳細
空室情報や物件見学などお気軽にお問い合わせください。
ESTATE AGENCY
株式会社エステートエージェンシー
定休日:日曜日・祝日 営業時間:09:00~19:00
でお問い合わせ(無料メール 簡単1 電話でお問い合わせ(無料)

TSKの基本情報

インフォメーション
TSKビルは、中央区エリア(大阪市中央区内本町1丁目)にある、1987年竣工、地上10階建の賃貸オフィスビルです。最寄駅は、大阪メトロ谷町線谷町四丁目駅徒歩1分のアクセス。是非一度ご内覧下さいませ!その他、事務所、オフィス移転の事なら何でもご相談下さい。
※貸主様からのご要望の為、条件を未公開としている場合がございます。詳しくお聞きになりたい場合は、弊社までご連絡ください。
※賃料、共益費、礼金、その他費用には別途消費税が掛かります。
※上記金額は募集条件です。条件交渉などについてはお気軽にお問い合わせください。
※確認時点での情報のため、リアルタイム情報はお問合せください。

TSKの施設情報カテゴリ

1棟貸可能
駅直結
大型EV
大型駐車場
大通り沿い
傘いらず
貸会議室
空中店舗相談
ヴィンテージ・レトロ
シャワートイレ
セキュリティ
SOHO(住居兼事務所)
デザイナーズ・個性派
トイレ男女別
荷物EVあり
ハイグレードオフィス
ネット回線引込可
ビル内貸倉庫
免振・制振構造
有人警備
ランドマーク
リニューアル
フリースペース
レンタルオフィス
新耐震
駅近(出口
築浅
川沿い、公園沿い
自転車置場

自転車置場料金: ー 円

TSKのアクセスマップ

空室情報や物件見学などお気軽にお問い合わせください。
ESTATE AGENCY
株式会社エステートエージェンシー
定休日:日曜日・祝日 営業時間:09:00~19:00
でお問い合わせ(無料メール 簡単1 電話でお問い合わせ(無料)