フロア詳細情報

イトヨシ(大阪府大阪市中央区道修町2丁目5番9号)のフロア情報

イトヨシのビル詳細を見る
空室状況はお電話一本でスムーズにご案内!まずはお気軽に0120-939-204へどうぞ。
でお問い合わせ(無料メール 簡単1
※上記の写真は人物等が映っている場合、修正・加工が施されています。
物件情報更新日: 2025/11/18

イトヨシの物件概要

ビル名
イトヨシ
物件番号/物件ID 9801
住所 大阪府大阪市中央区道修町2丁目5番9号 面積(平米) 118.71㎡
最寄り駅
【最寄り駅1】

大阪メトロ堺筋線 北浜駅  徒歩3分

【最寄り駅2】

大阪メトロ御堂筋線 淀屋橋駅  徒歩5分

【最寄り駅3】

大阪メトロ堺筋線 堺筋本町駅  徒歩9分

【最寄り駅4】

大阪メトロ四つ橋線 肥後橋駅  徒歩9分

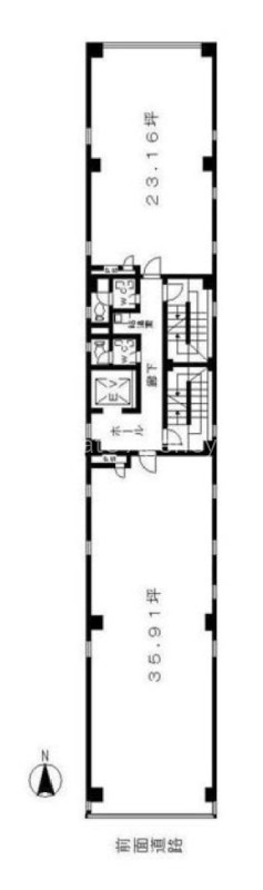
坪数 35.91坪
実行面積 75.00%
空調 個別
竣工 1986年08月01日
構造 鉄骨地上8階建地下0階
エレベーター基数 1 荷物用エレベーター基数
階数 地上 5階 退去日 退去日の詳細につきましては、お問い合わせください。
備考 ご内覧後に条件交渉させて頂きます。
ビル名
イトヨシ
住所 9801
最寄り駅
【最寄り駅1】

大阪メトロ堺筋線 北浜駅  徒歩3分

【最寄り駅2】

大阪メトロ御堂筋線 淀屋橋駅  徒歩5分

【最寄り駅3】

大阪メトロ堺筋線 堺筋本町駅  徒歩9分

【最寄り駅4】

大阪メトロ四つ橋線 肥後橋駅  徒歩9分

エレベーター基数 1
階数 5階
物件番号/物件ID 9801
面積(平米) 118.71㎡
坪数 35.91坪
実行面積 75.00%
空調 個別
竣工 1986年08月01日
構造 鉄骨地上8階建地下0階
荷物用エレベーター基数
退去日 退去日の詳細につきましては、お問い合わせください。
備考 ご内覧後に条件交渉させて頂きます。

イトヨシの募集価格

総額 坪単価
賃料 359,100円 賃料 10,001円
共益費 0円 共益費 0円
月額合計 359,100円 月額合計 10,001円
保証金/敷金 2,154,600円 保証金/敷金 60,001円
礼金 非公開 礼金 非公開
賃料条件補足事項 解約予告6ヶ月前、引スライド:~5年未満80%、5~10年未満85%、10~20未満90%、20年超全額返還
総額
賃料 359,100円
共益費 0円
月額合計 359,100円
保証金/敷金 2,154,600円
礼金 非公開
坪単価
賃料 10,001円
共益費 0円
月額合計 10,001円
保証金/敷金 60,001円
礼金 非公開
賃料条件補足事項 解約予告6ヶ月前、引スライド:~5年未満80%、5~10年未満85%、10~20未満90%、20年超全額返還

イトヨシのその他空室情報

階数 広さ 賃料合計(税別) 坪単価 保証金・敷金 礼金
6F 23.16坪 231,600円 10,000円 1,389,600円 0円
フロア詳細
フロア詳細
空室情報や物件見学などお気軽にお問い合わせください。
ESTATE AGENCY
株式会社エステートエージェンシー
定休日:日曜日・祝日 営業時間:09:00~19:00
でお問い合わせ(無料メール 簡単1 電話でお問い合わせ(無料)

イトヨシの基本情報

インフォメーション
イトヨシビルは、中央区エリア(大阪市中央区道修町2丁目)にある、1986年竣工、地上8階建の賃貸オフィスビルです。最寄駅は、大阪メトロ堺筋線 北浜駅 徒歩3分のアクセス。女性オーナーらしい心配りの行き届いた快適オフィス。アイスもなかゼー六が有名です。是非一度ご内覧下さいませ!その他、事務所、オフィス移転の事なら何でもご相談下さい。
※貸主様からのご要望の為、条件を未公開としている場合がございます。詳しくお聞きになりたい場合は、弊社までご連絡ください。
※賃料、共益費、礼金、その他費用には別途消費税が掛かります。
※上記金額は募集条件です。条件交渉などについてはお気軽にお問い合わせください。

イトヨシの施設情報カテゴリ

1棟貸可能
駅直結
大型EV
大型駐車場
大通り沿い
傘いらず
貸会議室
空中店舗相談
ヴィンテージ・レトロ
シャワートイレ
セキュリティ
SOHO(住居兼事務所)
デザイナーズ・個性派
トイレ男女別
荷物EVあり
ハイグレードオフィス
ネット回線引込可
ビル内貸倉庫
免振・制振構造
有人警備
ランドマーク
リニューアル
フリースペース
レンタルオフィス
新耐震
駅近(出口
築浅
川沿い、公園沿い
自転車置場

自転車置場料金: ー 円

イトヨシのアクセスマップ

空室情報や物件見学などお気軽にお問い合わせください。
ESTATE AGENCY
株式会社エステートエージェンシー
定休日:日曜日・祝日 営業時間:09:00~19:00
でお問い合わせ(無料メール 簡単1 電話でお問い合わせ(無料)

よく似た物件

最近チェックした物件