フロア詳細情報

淀屋橋PREX(大阪府大阪市中央区平野町2丁目4番9号)のフロア情報

淀屋橋PREXのビル詳細を見る
空室状況はお電話一本でスムーズにご案内!まずはお気軽に0120-939-204へどうぞ。
でお問い合わせ(無料メール 簡単1
※上記の写真は人物等が映っている場合、修正・加工が施されています。
物件情報更新日: 2025/12/10

淀屋橋PREXの物件概要

ビル名
淀屋橋PREX
物件番号/物件ID 9875
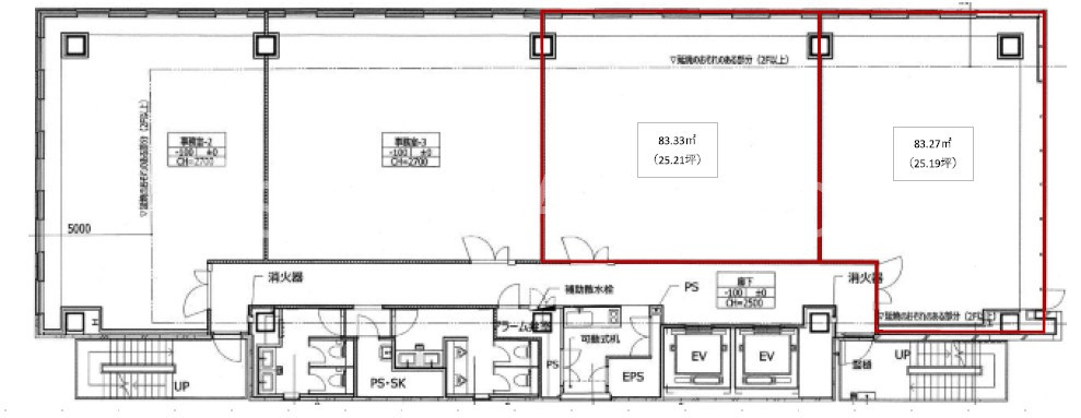
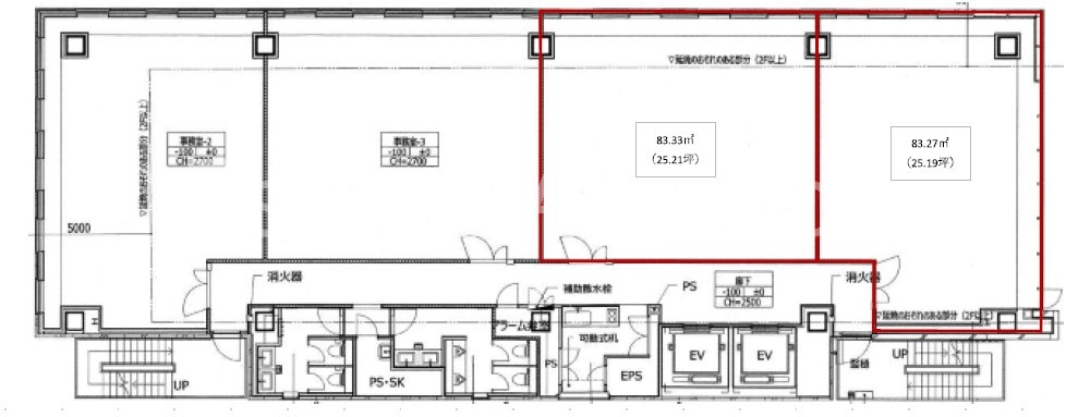
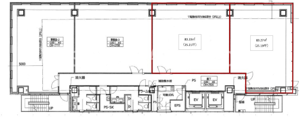
住所 大阪府大阪市中央区平野町2丁目4番9号 面積(平米) 83.33㎡
最寄り駅
【最寄り駅1】

大阪メトロ堺筋線 北浜駅  徒歩3分

【最寄り駅2】

大阪メトロ御堂筋線 淀屋橋駅  徒歩6分

【最寄り駅3】

京阪本線 北浜駅  徒歩5分

【最寄り駅4】

京阪本線 淀屋橋駅  徒歩7分

坪数 25.21坪
実行面積
空調 個別
竣工 2021年09月01日
構造 鉄骨地上12階建地下0階
エレベーター基数 2 荷物用エレベーター基数
階数 地上 12階 退去日 退去日の詳細につきましては、お問い合わせください。
備考 屋上庭園有り
ビル名
淀屋橋PREX
住所 9875
最寄り駅
【最寄り駅1】

大阪メトロ堺筋線 北浜駅  徒歩3分

【最寄り駅2】

大阪メトロ御堂筋線 淀屋橋駅  徒歩6分

【最寄り駅3】

京阪本線 北浜駅  徒歩5分

【最寄り駅4】

京阪本線 淀屋橋駅  徒歩7分

エレベーター基数 2
階数 12階
物件番号/物件ID 9875
面積(平米) 83.33㎡
坪数 25.21坪
実行面積
空調 個別
竣工 2021年09月01日
構造 鉄骨地上12階建地下0階
荷物用エレベーター基数
退去日 退去日の詳細につきましては、お問い合わせください。
備考 屋上庭園有り

淀屋橋PREXの募集価格

総額 坪単価
賃料 非公開 賃料 非公開
共益費 非公開 共益費 非公開
月額合計 非公開 月額合計 非公開
保証金/敷金 非公開 保証金/敷金 非公開
礼金 非公開 礼金 非公開
賃料条件補足事項 OAフロア100mm、LED照明、普通借3年
総額
賃料 非公開
共益費 非公開
月額合計 非公開
保証金/敷金 非公開
礼金 非公開
坪単価
賃料 非公開
共益費 非公開
月額合計 非公開
保証金/敷金 非公開
礼金 非公開
賃料条件補足事項 OAフロア100mm、LED照明、普通借3年

淀屋橋PREXのその他空室情報

階数 広さ 賃料合計(税別) 坪単価 保証金・敷金 礼金
12F 25.19坪 非公開 非公開 非公開 非公開
フロア詳細
フロア詳細
11F 25.19坪 非公開 非公開 非公開 非公開
フロア詳細
フロア詳細
4F 127.29坪 非公開 非公開 非公開 非公開
フロア詳細
フロア詳細
空室情報や物件見学などお気軽にお問い合わせください。
ESTATE AGENCY
株式会社エステートエージェンシー
定休日:日曜日・祝日 営業時間:09:00~19:00
でお問い合わせ(無料メール 簡単1 電話でお問い合わせ(無料)

淀屋橋PREXの基本情報

インフォメーション
淀屋橋PREXビルは中央区エリア(大阪市中央区平野町2丁目)にある2021年9月竣工の賃貸オフィスビルです。最寄駅は大阪メトロ堺筋線 北浜駅 徒歩4分のアクセス。是非一度ご内覧下さいませ!、その他、事務所、オフィス移転、不動産の事なら何でもお気軽にご相談下さい。
※貸主様からのご要望の為、条件を未公開としている場合がございます。詳しくお聞きになりたい場合は、弊社までご連絡ください。
※賃料、共益費、礼金、その他費用には別途消費税が掛かります。
※上記金額は募集条件です。条件交渉などについてはお気軽にお問い合わせください。

淀屋橋PREXの施設情報カテゴリ

1棟貸可能
駅直結
大型EV
大型駐車場
大通り沿い
傘いらず
貸会議室
空中店舗相談
ヴィンテージ・レトロ
シャワートイレ
セキュリティ
SOHO(住居兼事務所)
デザイナーズ・個性派
トイレ男女別
荷物EVあり
ハイグレードオフィス
ネット回線引込可
ビル内貸倉庫
免振・制振構造
有人警備
ランドマーク
リニューアル
フリースペース
レンタルオフィス
新耐震
駅近(出口
築浅
川沿い、公園沿い
自転車置場

自転車置場料金: ー 円

淀屋橋PREXのアクセスマップ

空室情報や物件見学などお気軽にお問い合わせください。
ESTATE AGENCY
株式会社エステートエージェンシー
定休日:日曜日・祝日 営業時間:09:00~19:00
でお問い合わせ(無料メール 簡単1 電話でお問い合わせ(無料)