フロア詳細情報

大明(大阪府大阪市中央区平野町4丁目6番3号)のフロア情報

大明のビル詳細を見る
空室状況はお電話一本でスムーズにご案内!まずはお気軽に0120-939-204へどうぞ。
でお問い合わせ(無料メール 簡単1
※上記の写真は人物等が映っている場合、修正・加工が施されています。
物件情報更新日: 2026/05/11

大明の物件概要

ビル名
大明
物件番号/物件ID 9917
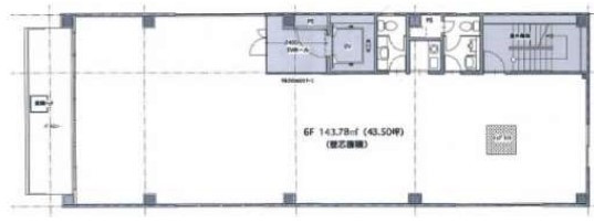
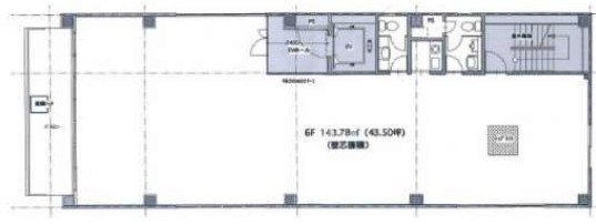
住所 大阪府大阪市中央区平野町4丁目6番3号 面積(平米) 143.76㎡
最寄り駅
【最寄り駅1】

大阪メトロ四つ橋線 肥後橋駅  徒歩5分

【最寄り駅2】

大阪メトロ御堂筋線 淀屋橋駅  徒歩5分

【最寄り駅3】

大阪メトロ御堂筋線 本町駅  徒歩7分

【最寄り駅4】

大阪メトロ四つ橋線 本町駅  徒歩7分

坪数 43.49坪
実行面積 95.00%
空調 個別
竣工 2003年01月01日
構造 鉄骨地上6階建地下0階
エレベーター基数 1 荷物用エレベーター基数
階数 地上 6階 退去日 退去日の詳細につきましては、お問い合わせください。
備考
ビル名
大明
住所 9917
最寄り駅
【最寄り駅1】

大阪メトロ四つ橋線 肥後橋駅  徒歩5分

【最寄り駅2】

大阪メトロ御堂筋線 淀屋橋駅  徒歩5分

【最寄り駅3】

大阪メトロ御堂筋線 本町駅  徒歩7分

【最寄り駅4】

大阪メトロ四つ橋線 本町駅  徒歩7分

エレベーター基数 1
階数 6階
物件番号/物件ID 9917
面積(平米) 143.76㎡
坪数 43.49坪
実行面積 95.00%
空調 個別
竣工 2003年01月01日
構造 鉄骨地上6階建地下0階
荷物用エレベーター基数
退去日 退去日の詳細につきましては、お問い合わせください。
備考

大明の募集価格

総額 坪単価
賃料 非公開 賃料 非公開
共益費 非公開 共益費 非公開
月額合計 非公開 月額合計 非公開
保証金/敷金 非公開 保証金/敷金 非公開
礼金 非公開 礼金 非公開
賃料条件補足事項
総額
賃料 非公開
共益費 非公開
月額合計 非公開
保証金/敷金 非公開
礼金 非公開
坪単価
賃料 非公開
共益費 非公開
月額合計 非公開
保証金/敷金 非公開
礼金 非公開
賃料条件補足事項

大明のその他空室情報

階数 広さ 賃料合計(税別) 坪単価 保証金・敷金 礼金
5F 48.05坪 非公開 非公開 非公開 非公開
フロア詳細
フロア詳細
空室情報や物件見学などお気軽にお問い合わせください。
ESTATE AGENCY
株式会社エステートエージェンシー
定休日:日曜日・祝日 営業時間:09:00~19:00
でお問い合わせ(無料メール 簡単1 電話でお問い合わせ(無料)

大明の基本情報

インフォメーション
大明ビルは、中央区エリア(大阪市中央区平野町4丁目)にある、2003年竣工、地上6階建の賃貸オフィスビルです。最寄駅は、大阪メトロ御堂筋線 淀屋橋駅 徒歩5分のアクセス。共用部、貸室フルリノベーションで気持ち良いオフィス。貸室内の天井部には調湿・有害物質除去、脱臭効果のある竹炭パネル(カルボボード)を使用、省エネ効果もあるとの事。オフィス街の中心にあるため、各沿線のアクセスも良いためフットワークの軽い物件となっております。是非一度ご内覧下さいませ!その他、事務所、オフィス移転の事なら何でもご相談下さい。
※貸主様からのご要望の為、条件を未公開としている場合がございます。詳しくお聞きになりたい場合は、弊社までご連絡ください。
※賃料、共益費、礼金、その他費用には別途消費税が掛かります。
※上記金額は募集条件です。条件交渉などについてはお気軽にお問い合わせください。
※確認時点での情報のため、リアルタイム情報はお問合せください。

大明の施設情報カテゴリ

1棟貸可能
駅直結
大型EV
大型駐車場
大通り沿い
傘いらず
貸会議室
空中店舗相談
ヴィンテージ・レトロ
シャワートイレ
セキュリティ
SOHO(住居兼事務所)
デザイナーズ・個性派
トイレ男女別
荷物EVあり
ハイグレードオフィス
ネット回線引込可
ビル内貸倉庫
免振・制振構造
有人警備
ランドマーク
リニューアル
フリースペース
レンタルオフィス
新耐震
駅近(出口
築浅
川沿い、公園沿い
自転車置場

自転車置場料金: ー 円

大明のアクセスマップ

空室情報や物件見学などお気軽にお問い合わせください。
ESTATE AGENCY
株式会社エステートエージェンシー
定休日:日曜日・祝日 営業時間:09:00~19:00
でお問い合わせ(無料メール 簡単1 電話でお問い合わせ(無料)

申し訳ございません。
会員登録をお願い致します。

会員登録のメリット

  • 1、非公開物件情報のご紹介が可能です!
  • 2、ご希望条件をいただきましたら新着物件情報等を定期的に配信いたします!
  • 3、会員登録されたお客様にはご契約時に特別なプレゼントをご用意しております!
会員登録

※会員登録は同業者不可、メールアドレスは企業ドメインのみ
※GmailやYahooなどのフリーメールでは会員登録できないこともありますのでご了承ください。