フロア詳細情報

第3エーシー(大阪府大阪市中央区淡路町2丁目4番6号)のフロア情報

第3エーシーのビル詳細を見る
空室状況はお電話一本でスムーズにご案内!まずはお気軽に0120-939-204へどうぞ。
でお問い合わせ(無料メール 簡単1
※上記の写真は人物等が映っている場合、修正・加工が施されています。
物件情報更新日: 2025/07/18

第3エーシーの物件概要

ビル名
第3エーシー
物件番号/物件ID 9962
住所 大阪府大阪市中央区淡路町2丁目4番6号 面積(平米) 52.33㎡
最寄り駅
【最寄り駅1】

大阪メトロ堺筋線 北浜駅  徒歩7分

【最寄り駅2】

京阪本線 北浜駅  徒歩7分

【最寄り駅3】

大阪メトロ堺筋線 堺筋本町駅  徒歩7分

【最寄り駅4】

大阪メトロ中央線 堺筋本町駅  徒歩7分

坪数 15.83坪
実行面積 100.00%
空調 個別
竣工 1959年01月01日
構造 RC地上4階建地下0階
エレベーター基数 荷物用エレベーター基数
階数 地上 4階 退去日 退去日の詳細につきましては、お問い合わせください。
備考
ビル名
第3エーシー
住所 9962
最寄り駅
【最寄り駅1】

大阪メトロ堺筋線 北浜駅  徒歩7分

【最寄り駅2】

京阪本線 北浜駅  徒歩7分

【最寄り駅3】

大阪メトロ堺筋線 堺筋本町駅  徒歩7分

【最寄り駅4】

大阪メトロ中央線 堺筋本町駅  徒歩7分

エレベーター基数
階数 4階
物件番号/物件ID 9962
面積(平米) 52.33㎡
坪数 15.83坪
実行面積 100.00%
空調 個別
竣工 1959年01月01日
構造 RC地上4階建地下0階
荷物用エレベーター基数
退去日 退去日の詳細につきましては、お問い合わせください。
備考

第3エーシーの募集価格

総額 坪単価
賃料 79,150円 賃料 5,000円
共益費 31,660円 共益費 2,000円
月額合計 110,810円 月額合計 7,000円
保証金/敷金 0円 保証金/敷金 0円
礼金 237,450円 礼金 15,000円
賃料条件補足事項
総額
賃料 79,150円
共益費 31,660円
月額合計 110,810円
保証金/敷金 0円
礼金 237,450円
坪単価
賃料 5,000円
共益費 2,000円
月額合計 7,000円
保証金/敷金 0円
礼金 15,000円
賃料条件補足事項

第3エーシーのその他空室情報

階数 広さ 賃料合計(税別) 坪単価 保証金・敷金 礼金
4F 40.29坪 282,030円 7,000円 0円 604,350円
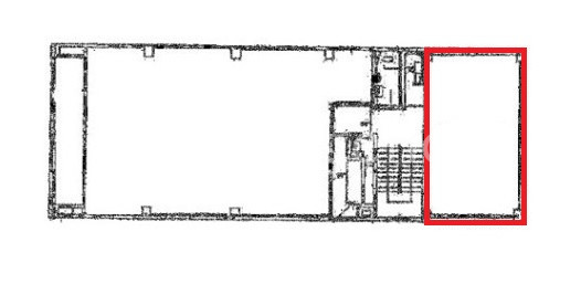
フロア詳細
フロア詳細
空室情報や物件見学などお気軽にお問い合わせください。
ESTATE AGENCY
株式会社エステートエージェンシー
定休日:日曜日・祝日 営業時間:09:00~19:00
でお問い合わせ(無料メール 簡単1 電話でお問い合わせ(無料)

第3エーシーの基本情報

インフォメーション
第3エーシービルは、中央区エリア(大阪市中央区淡路町2丁目)にある、1959年竣工、地上4階建の賃貸オフィスビルです。最寄駅は大阪メトロ堺筋線 堺筋本町駅 徒歩5分のアクセス。是非一度ご内覧下さいませ!その他、事務所、オフィス移転の事なら何でもご相談下さい。
※貸主様からのご要望の為、条件を未公開としている場合がございます。詳しくお聞きになりたい場合は、弊社までご連絡ください。
※賃料、共益費、礼金、その他費用には別途消費税が掛かります。
※上記金額は募集条件です。条件交渉などについてはお気軽にお問い合わせください。
※確認時点での情報のため、リアルタイム情報はお問合せください。

第3エーシーの施設情報カテゴリ

1棟貸可能
駅直結
大型EV
大型駐車場
大通り沿い
傘いらず
貸会議室
空中店舗相談
ヴィンテージ・レトロ
シャワートイレ
セキュリティ
SOHO(住居兼事務所)
デザイナーズ・個性派
トイレ男女別
荷物EVあり
ハイグレードオフィス
ネット回線引込可
ビル内貸倉庫
免振・制振構造
有人警備
ランドマーク
リニューアル
フリースペース
レンタルオフィス
新耐震
駅近(出口
築浅
川沿い、公園沿い
自転車置場

自転車置場料金: ー 円

第3エーシーのアクセスマップ

空室情報や物件見学などお気軽にお問い合わせください。
ESTATE AGENCY
株式会社エステートエージェンシー
定休日:日曜日・祝日 営業時間:09:00~19:00
でお問い合わせ(無料メール 簡単1 電話でお問い合わせ(無料)

よく似た物件

最近チェックした物件