フロア詳細情報

ナビタ灯阪(表示灯)(大阪府大阪市中央区備後町4丁目2番10号)のフロア情報

空室状況はお電話一本でスムーズにご案内!まずはお気軽に0120-939-204へどうぞ。
でお問い合わせ(無料メール 簡単1
※上記の写真は人物等が映っている場合、修正・加工が施されています。
物件情報更新日: 2026/03/13

ナビタ灯阪(表示灯)の物件概要

ビル名
ナビタ灯阪(表示灯)
物件番号/物件ID 10139
住所 大阪府大阪市中央区備後町4丁目2番10号 面積(平米) 96.03㎡
最寄り駅
【最寄り駅1】

大阪メトロ御堂筋線 本町駅  徒歩2分

【最寄り駅2】

大阪メトロ四つ橋線 本町駅  徒歩3分

【最寄り駅3】

大阪メトロ中央線 本町駅  徒歩3分

坪数 29.05坪
実行面積 100.00%
空調 個別
竣工 1978-07
構造 地上5階建地下0階
エレベーター基数 1 荷物用エレベーター基数
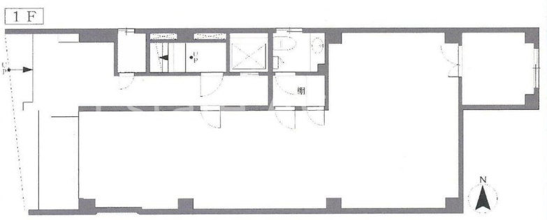
階数 地上 1階 退去日 退去日の詳細につきましては、お問い合わせください。
備考
ビル名
ナビタ灯阪(表示灯)
住所 10139
最寄り駅
【最寄り駅1】

大阪メトロ御堂筋線 本町駅  徒歩2分

【最寄り駅2】

大阪メトロ四つ橋線 本町駅  徒歩3分

【最寄り駅3】

大阪メトロ中央線 本町駅  徒歩3分

エレベーター基数 1
階数 1階
物件番号/物件ID 10139
面積(平米) 96.03㎡
坪数 29.05坪
実行面積 100.00%
空調 個別
竣工 1978-07
構造 地上5階建地下0階
荷物用エレベーター基数
退去日 退去日の詳細につきましては、お問い合わせください。
備考

ナビタ灯阪(表示灯)の募集価格

総額 坪単価
賃料 395,455円 賃料 13,613円
共益費 0円 共益費 0円
月額合計 395,455円 月額合計 13,613円
保証金/敷金 1,186,365円 保証金/敷金 40,839円
礼金 0円 礼金 0円
賃料条件補足事項
総額
賃料 395,455円
共益費 0円
月額合計 395,455円
保証金/敷金 1,186,365円
礼金 0円
坪単価
賃料 13,613円
共益費 0円
月額合計 13,613円
保証金/敷金 40,839円
礼金 0円
賃料条件補足事項

ナビタ灯阪(表示灯)のその他空室情報

階数 広さ 賃料合計(税別) 坪単価 保証金・敷金 礼金
2F 21.97坪 307,363円 13,991円 922,089円 0円
フロア詳細
フロア詳細
空室情報や物件見学などお気軽にお問い合わせください。
ESTATE AGENCY
株式会社エステートエージェンシー
定休日:日曜日・祝日 営業時間:09:00~19:00
でお問い合わせ(無料メール 簡単1 電話でお問い合わせ(無料)

ナビタ灯阪(表示灯)の基本情報

インフォメーション
表示灯ビスは、中央区エリア(大阪市中央区備後町4丁目)にある、1978年竣工、地上5階建の賃貸オフィスビルです。最寄駅は、大阪メトロ御堂筋線 本町駅 徒歩2分のアクセス。是非一度ご内覧下さいませ!その他、事務所、オフィス移転の事なら何でもご相談下さい。
※貸主様からのご要望の為、条件を未公開としている場合がございます。詳しくお聞きになりたい場合は、弊社までご連絡ください。
※賃料、共益費、礼金、その他費用には別途消費税が掛かります。
※上記金額は募集条件です。条件交渉などについてはお気軽にお問い合わせください。
※確認時点での情報のため、リアルタイム情報はお問合せください。

ナビタ灯阪(表示灯)の施設情報カテゴリ

1棟貸可能
駅直結
大型EV
大型駐車場
大通り沿い
傘いらず
貸会議室
空中店舗相談
ヴィンテージ・レトロ
シャワートイレ
セキュリティ
SOHO(住居兼事務所)
デザイナーズ・個性派
トイレ男女別
荷物EVあり
ハイグレードオフィス
ネット回線引込可
ビル内貸倉庫
免振・制振構造
有人警備
ランドマーク
リニューアル
フリースペース
レンタルオフィス
新耐震
駅近(出口
築浅
川沿い、公園沿い
自転車置場

自転車置場料金: ー 円

ナビタ灯阪(表示灯)のアクセスマップ

空室情報や物件見学などお気軽にお問い合わせください。
ESTATE AGENCY
株式会社エステートエージェンシー
定休日:日曜日・祝日 営業時間:09:00~19:00
でお問い合わせ(無料メール 簡単1 電話でお問い合わせ(無料)

よく似た物件