フロア詳細情報

中博(大阪府大阪市中央区博労町2丁目4番11号)のフロア情報

中博のビル詳細を見る
空室状況はお電話一本でスムーズにご案内!まずはお気軽に0120-939-204へどうぞ。
でお問い合わせ(無料メール 簡単1
※上記の写真は人物等が映っている場合、修正・加工が施されています。
物件情報更新日: 2025/10/28

中博の物件概要

ビル名
中博
物件番号/物件ID 10612
住所 大阪府大阪市中央区博労町2丁目4番11号 面積(平米) 196.06㎡
最寄り駅
【最寄り駅1】

大阪メトロ堺筋線 堺筋本町駅  徒歩5分

【最寄り駅2】

大阪メトロ中央線 堺筋本町駅  徒歩5分

【最寄り駅3】

大阪メトロ堺筋線 長堀橋駅  徒歩6分

【最寄り駅4】

大阪メトロ長堀鶴見緑地線 長堀橋駅  徒歩6分

坪数 59.31坪
実行面積 80.00%
空調 個別
竣工 1969年04月01日
構造 RC地上7階建地下1階
エレベーター基数 1 荷物用エレベーター基数
階数 地上 4階 退去日 退去日の詳細につきましては、お問い合わせください。
備考
ビル名
中博
住所 10612
最寄り駅
【最寄り駅1】

大阪メトロ堺筋線 堺筋本町駅  徒歩5分

【最寄り駅2】

大阪メトロ中央線 堺筋本町駅  徒歩5分

【最寄り駅3】

大阪メトロ堺筋線 長堀橋駅  徒歩6分

【最寄り駅4】

大阪メトロ長堀鶴見緑地線 長堀橋駅  徒歩6分

エレベーター基数 1
階数 4階
物件番号/物件ID 10612
面積(平米) 196.06㎡
坪数 59.31坪
実行面積 80.00%
空調 個別
竣工 1969年04月01日
構造 RC地上7階建地下1階
荷物用エレベーター基数
退去日 退去日の詳細につきましては、お問い合わせください。
備考

中博の募集価格

総額 坪単価
賃料 770,900円 賃料 12,998円
共益費 0円 共益費 0円
月額合計 770,900円 月額合計 12,998円
保証金/敷金 非公開 保証金/敷金 非公開
礼金 0円 礼金 0円
賃料条件補足事項 敷引きあり:1年未満30%、1年以上~2年未満20%、2年以上5年未満15%、5年以上10%引き(2025.9.26戸田)
総額
賃料 770,900円
共益費 0円
月額合計 770,900円
保証金/敷金 非公開
礼金 0円
坪単価
賃料 12,998円
共益費 0円
月額合計 12,998円
保証金/敷金 非公開
礼金 0円
賃料条件補足事項 敷引きあり:1年未満30%、1年以上~2年未満20%、2年以上5年未満15%、5年以上10%引き(2025.9.26戸田)

中博のその他空室情報

階数 広さ 賃料合計(税別) 坪単価 保証金・敷金 礼金
5F 19.84坪 257,920円 13,000円 非公開 0円
フロア詳細
フロア詳細
3F 22.50坪 292,500円 13,000円 非公開 0円
フロア詳細
フロア詳細
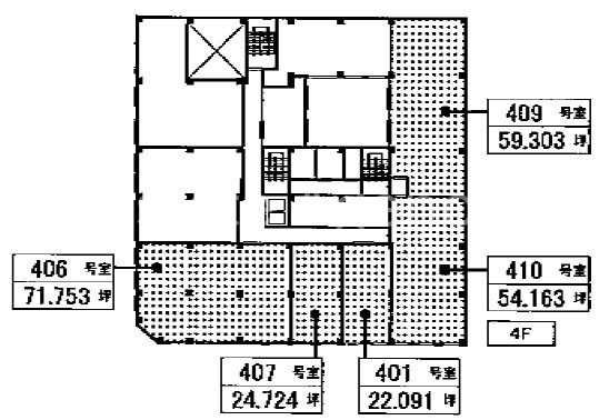
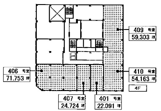
4F 54.16坪 704,080円 13,000円 非公開 0円
フロア詳細
フロア詳細
4F 24.72坪 321,360円 13,000円 1,928,160円 0円
フロア詳細
フロア詳細
3F 45.54坪 592,020円 13,000円 非公開 0円
フロア詳細
フロア詳細
3F 23.41坪 304,330円 13,000円 非公開 0円
フロア詳細
フロア詳細
3F 22.83坪 296,790円 13,000円 非公開 0円
フロア詳細
フロア詳細
6F 11.95坪 191,206円 16,000円 非公開 0円
フロア詳細
フロア詳細
6F 15.38坪 199,940円 13,000円 非公開 0円
フロア詳細
フロア詳細
3F 43.56坪 566,280円 13,000円 非公開 0円
フロア詳細
フロア詳細
5F 46.89坪 609,570円 13,000円 非公開 0円
フロア詳細
フロア詳細
3F 18.84坪 244,920円 13,000円 非公開 0円
フロア詳細
フロア詳細
4F 22.09坪 287,170円 13,000円 非公開 0円
フロア詳細
フロア詳細
2F 46.89坪 609,570円 13,000円 非公開 0円
フロア詳細
フロア詳細
2F 54.16坪 704,080円 13,000円 非公開 0円
フロア詳細
フロア詳細
7F 6.90坪 89,700円 13,000円 非公開 0円
フロア詳細
フロア詳細
7F 11.95坪 155,350円 13,000円 非公開 0円
フロア詳細
フロア詳細
3F 18.88坪 245,367円 12,997円 1,132,362円 0円
フロア詳細
フロア詳細
7F 6.90坪 89,700円 13,000円 非公開 0円
フロア詳細
フロア詳細
空室情報や物件見学などお気軽にお問い合わせください。
ESTATE AGENCY
株式会社エステートエージェンシー
定休日:日曜日・祝日 営業時間:09:00~19:00
でお問い合わせ(無料メール 簡単1 電話でお問い合わせ(無料)

中博の基本情報

インフォメーション
中博ビルは、中央区エリア(大阪市中央区博労町2丁目)にある、1969年竣工、地上7階地下1階建の賃貸オフィスビルです。最寄駅は、大阪メトロ堺筋線「長堀橋」徒歩6分のアクセス。2005年に大幅リニューアルをし、新築物件に劣らぬ付加価値をそなえた賃貸オフィスビル。ビル内には中庭があり、リフレッシュスペースとして活用できます。実はこちらには商売繁盛の神様がまつられており、縁起の良いオフィスビルです。個別空調や駐車場併設はもちろんのこと、貸会議室や貸自転車などのアメニティもあり、テナント様の使い勝手に存分に配慮されたオフィスといえます。是非一度ご内覧下さいませ!その他、事務所、オフィス移転の事なら何でもご相談下さい。
※貸主様からのご要望の為、条件を未公開としている場合がございます。詳しくお聞きになりたい場合は、弊社までご連絡ください。
※賃料、共益費、礼金、その他費用には別途消費税が掛かります。
※上記金額は募集条件です。条件交渉などについてはお気軽にお問い合わせください。

中博の施設情報カテゴリ

1棟貸可能
駅直結
大型EV
大型駐車場
大通り沿い
傘いらず
貸会議室
空中店舗相談
ヴィンテージ・レトロ
シャワートイレ
セキュリティ
SOHO(住居兼事務所)
デザイナーズ・個性派
トイレ男女別
荷物EVあり
ハイグレードオフィス
ネット回線引込可
ビル内貸倉庫
免振・制振構造
有人警備
ランドマーク
リニューアル
フリースペース
レンタルオフィス
新耐震
駅近(出口
築浅
川沿い、公園沿い
自転車置場

自転車置場料金: ー 円

中博のアクセスマップ

空室情報や物件見学などお気軽にお問い合わせください。
ESTATE AGENCY
株式会社エステートエージェンシー
定休日:日曜日・祝日 営業時間:09:00~19:00
でお問い合わせ(無料メール 簡単1 電話でお問い合わせ(無料)