フロア詳細情報

心斎橋コラムナー(大阪府大阪市中央区南船場4丁目11番16号)のフロア情報

心斎橋コラムナーのビル詳細を見る
空室状況はお電話一本でスムーズにご案内!まずはお気軽に0120-939-204へどうぞ。
でお問い合わせ(無料メール 簡単1
※上記の写真は人物等が映っている場合、修正・加工が施されています。
物件情報更新日: 2026/05/11

心斎橋コラムナーの物件概要

ビル名
心斎橋コラムナー
物件番号/物件ID 10936
住所 大阪府大阪市中央区南船場4丁目11番16号 面積(平米) 115.76㎡
最寄り駅
【最寄り駅1】

大阪メトロ御堂筋線 心斎橋駅  徒歩2分

【最寄り駅2】

大阪メトロ長堀鶴見緑地線 心斎橋駅  徒歩2分

【最寄り駅3】

大阪メトロ四つ橋線 四ツ橋駅  徒歩3分

【最寄り駅4】

大阪メトロ長堀鶴見緑地線 西大橋駅  徒歩5分

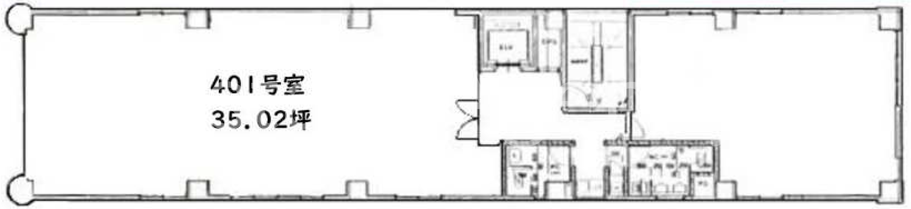
坪数 35.02坪
実行面積 90.00%
空調 個別
竣工 1987年03月01日
構造 SRC造地上9階建地下0階
エレベーター基数 1 荷物用エレベーター基数
階数 地上 4階 退去日 退去日の詳細につきましては、お問い合わせください。
備考
ビル名
心斎橋コラムナー
住所 10936
最寄り駅
【最寄り駅1】

大阪メトロ御堂筋線 心斎橋駅  徒歩2分

【最寄り駅2】

大阪メトロ長堀鶴見緑地線 心斎橋駅  徒歩2分

【最寄り駅3】

大阪メトロ四つ橋線 四ツ橋駅  徒歩3分

【最寄り駅4】

大阪メトロ長堀鶴見緑地線 西大橋駅  徒歩5分

エレベーター基数 1
階数 4階
物件番号/物件ID 10936
面積(平米) 115.76㎡
坪数 35.02坪
実行面積 90.00%
空調 個別
竣工 1987年03月01日
構造 SRC造地上9階建地下0階
荷物用エレベーター基数
退去日 退去日の詳細につきましては、お問い合わせください。
備考

心斎橋コラムナーの募集価格

総額 坪単価
賃料 385,221円 賃料 11,000円
共益費 0円 共益費 0円
月額合計 385,221円 月額合計 11,000円
保証金/敷金 2,311,326円 保証金/敷金 66,000円
礼金 0円 礼金 0円
賃料条件補足事項
総額
賃料 385,221円
共益費 0円
月額合計 385,221円
保証金/敷金 2,311,326円
礼金 0円
坪単価
賃料 11,000円
共益費 0円
月額合計 11,000円
保証金/敷金 66,000円
礼金 0円
賃料条件補足事項

心斎橋コラムナーのその他空室情報

階数 広さ 賃料合計(税別) 坪単価 保証金・敷金 礼金
3F 18.54坪 203,940円 11,000円 1,223,640円 0円
フロア詳細
フロア詳細
空室情報や物件見学などお気軽にお問い合わせください。
ESTATE AGENCY
株式会社エステートエージェンシー
定休日:日曜日・祝日 営業時間:09:00~19:00
でお問い合わせ(無料メール 簡単1 電話でお問い合わせ(無料)

心斎橋コラムナーの基本情報

インフォメーション
心斎橋コラムナービルは、中央区エリア(大阪市中央区南船場4丁目)にある、1987年竣工、地上9階建の賃貸オフィスビルです。最寄駅は、大阪メトロ御堂筋線 心斎橋駅 徒歩4分のアクセス。是非一度ご内覧下さいませ!その他、事務所、オフィス移転の事なら何でもご相談下さい。
※貸主様からのご要望の為、条件を未公開としている場合がございます。詳しくお聞きになりたい場合は、弊社までご連絡ください。
※賃料、共益費、礼金、その他費用には別途消費税が掛かります。
※上記金額は募集条件です。条件交渉などについてはお気軽にお問い合わせください。
※確認時点での情報のため、リアルタイム情報はお問合せください。

心斎橋コラムナーの施設情報カテゴリ

1棟貸可能
駅直結
大型EV
大型駐車場
大通り沿い
傘いらず
貸会議室
空中店舗相談
ヴィンテージ・レトロ
シャワートイレ
セキュリティ
SOHO(住居兼事務所)
デザイナーズ・個性派
トイレ男女別
荷物EVあり
ハイグレードオフィス
ネット回線引込可
ビル内貸倉庫
免振・制振構造
有人警備
ランドマーク
リニューアル
フリースペース
レンタルオフィス
新耐震
駅近(出口
築浅
川沿い、公園沿い
自転車置場

自転車置場料金: ー 円

心斎橋コラムナーのアクセスマップ

空室情報や物件見学などお気軽にお問い合わせください。
ESTATE AGENCY
株式会社エステートエージェンシー
定休日:日曜日・祝日 営業時間:09:00~19:00
でお問い合わせ(無料メール 簡単1 電話でお問い合わせ(無料)

よく似た物件

申し訳ございません。
会員登録をお願い致します。

会員登録のメリット

  • 1、非公開物件情報のご紹介が可能です!
  • 2、ご希望条件をいただきましたら新着物件情報等を定期的に配信いたします!
  • 3、会員登録されたお客様にはご契約時に特別なプレゼントをご用意しております!
会員登録

※会員登録は同業者不可、メールアドレスは企業ドメインのみ
※GmailやYahooなどのフリーメールでは会員登録できないこともありますのでご了承ください。