フロア詳細情報

MF天満橋(大阪府大阪市中央区谷町1丁目7番4号)のフロア情報

MF天満橋のビル詳細を見る
空室状況はお電話一本でスムーズにご案内!まずはお気軽に0120-939-204へどうぞ。
でお問い合わせ(無料メール 簡単1
※上記の写真は人物等が映っている場合、修正・加工が施されています。
物件情報更新日: 2026/03/05

MF天満橋の物件概要

ビル名
MF天満橋
物件番号/物件ID 10997
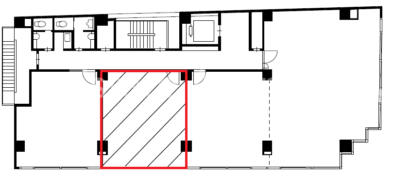
住所 大阪府大阪市中央区谷町1丁目7番4号 面積(平米) 43.30㎡
最寄り駅
【最寄り駅1】

大阪メトロ谷町線 天満橋駅  徒歩1分

【最寄り駅2】

大阪メトロ谷町線 谷町四丁目駅  徒歩10分

【最寄り駅3】

京阪本線 天満橋駅  徒歩1分

【最寄り駅4】

大阪メトロ中央線 谷町四丁目駅  徒歩10分

坪数 13.10坪
実行面積 100.00%
空調 個別
竣工 1992年01月01日
構造 SRC地上10階建地下1階
エレベーター基数 1 荷物用エレベーター基数
階数 地上 4階 退去日 退去日の詳細につきましては、お問い合わせください。
備考
ビル名
MF天満橋
住所 10997
最寄り駅
【最寄り駅1】

大阪メトロ谷町線 天満橋駅  徒歩1分

【最寄り駅2】

大阪メトロ谷町線 谷町四丁目駅  徒歩10分

【最寄り駅3】

京阪本線 天満橋駅  徒歩1分

【最寄り駅4】

大阪メトロ中央線 谷町四丁目駅  徒歩10分

エレベーター基数 1
階数 4階
物件番号/物件ID 10997
面積(平米) 43.30㎡
坪数 13.10坪
実行面積 100.00%
空調 個別
竣工 1992年01月01日
構造 SRC地上10階建地下1階
荷物用エレベーター基数
退去日 退去日の詳細につきましては、お問い合わせください。
備考

MF天満橋の募集価格

総額 坪単価
賃料 非公開 賃料 非公開
共益費 非公開 共益費 非公開
月額合計 非公開 月額合計 非公開
保証金/敷金 非公開 保証金/敷金 非公開
礼金 非公開 礼金 非公開
賃料条件補足事項 定借期間要確認、保証会社加入要、OA敷設+@500円
総額
賃料 非公開
共益費 非公開
月額合計 非公開
保証金/敷金 非公開
礼金 非公開
坪単価
賃料 非公開
共益費 非公開
月額合計 非公開
保証金/敷金 非公開
礼金 非公開
賃料条件補足事項 定借期間要確認、保証会社加入要、OA敷設+@500円
空室情報や物件見学などお気軽にお問い合わせください。
ESTATE AGENCY
株式会社エステートエージェンシー
定休日:日曜日・祝日 営業時間:09:00~19:00
でお問い合わせ(無料メール 簡単1 電話でお問い合わせ(無料)

MF天満橋の基本情報

インフォメーション
MF天満橋ビルは、中央区エリア(大阪市中央区谷町1丁目)にある、天満橋筋に面する1992年竣工、10階建ての賃貸オフィスビルです。個別空調方式を採用したことによる、優れた快適性が魅力で、各階EPS内光ケーブル敷設した高速通信に対応する、現代ニーズをとらえたオフィスビルです。最寄駅は、大阪メトロ谷町線 天満橋駅から徒歩1分でアクセス可能と立地にも大変恵まれ、駐車場も併設しております。管理人常駐のハイグレードオフィスです。是非一度ご内覧下さいませ!その他、事務所、オフィス移転の事なら何でもご相談下さい。
※貸主様からのご要望の為、条件を未公開としている場合がございます。詳しくお聞きになりたい場合は、弊社までご連絡ください。
※賃料、共益費、礼金、その他費用には別途消費税が掛かります。
※上記金額は募集条件です。条件交渉などについてはお気軽にお問い合わせください。
※確認時点での情報のため、リアルタイム情報はお問合せください。

MF天満橋の施設情報カテゴリ

1棟貸可能
駅直結
大型EV
大型駐車場
大通り沿い
傘いらず
貸会議室
空中店舗相談
ヴィンテージ・レトロ
シャワートイレ
セキュリティ
SOHO(住居兼事務所)
デザイナーズ・個性派
トイレ男女別
荷物EVあり
ハイグレードオフィス
ネット回線引込可
ビル内貸倉庫
免振・制振構造
有人警備
ランドマーク
リニューアル
フリースペース
レンタルオフィス
新耐震
駅近(出口
築浅
川沿い、公園沿い
自転車置場

自転車置場料金: ー 円

MF天満橋のアクセスマップ

空室情報や物件見学などお気軽にお問い合わせください。
ESTATE AGENCY
株式会社エステートエージェンシー
定休日:日曜日・祝日 営業時間:09:00~19:00
でお問い合わせ(無料メール 簡単1 電話でお問い合わせ(無料)

よく似た物件

最近チェックした物件