フロア詳細情報

瓦町スクエア(大阪府大阪市中央区瓦町2丁目5番8号)のフロア情報

瓦町スクエアのビル詳細を見る
空室状況はお電話一本でスムーズにご案内!まずはお気軽に0120-939-204へどうぞ。
でお問い合わせ(無料メール 簡単1
※上記の写真は人物等が映っている場合、修正・加工が施されています。
物件情報更新日: 2026/01/30

瓦町スクエアの物件概要

ビル名
瓦町スクエア
物件番号/物件ID 16595
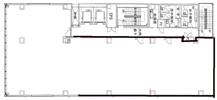
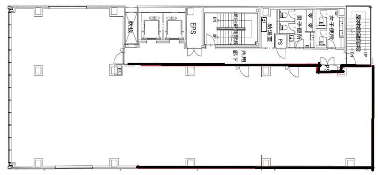
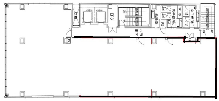
住所 大阪府大阪市中央区瓦町2丁目5番8号 面積(平米) 339.20㎡
最寄り駅
【最寄り駅1】

大阪メトロ堺筋線 堺筋本町駅  徒歩5分

【最寄り駅2】

大阪メトロ御堂筋線 本町駅  徒歩7分

【最寄り駅3】

大阪メトロ堺筋線 北浜駅  徒歩7分

【最寄り駅4】

大阪メトロ中央線 堺筋本町駅  徒歩6分

坪数 102.61坪
実行面積 100.00%
空調 個別
竣工 2020年07月30日
構造 鉄骨地上10階建地下0階
エレベーター基数 2 荷物用エレベーター基数
階数 地上 4階 退去日 退去日の詳細につきましては、お問い合わせください。
備考 2021.11共用部リニューアル
ビル名
瓦町スクエア
住所 16595
最寄り駅
【最寄り駅1】

大阪メトロ堺筋線 堺筋本町駅  徒歩5分

【最寄り駅2】

大阪メトロ御堂筋線 本町駅  徒歩7分

【最寄り駅3】

大阪メトロ堺筋線 北浜駅  徒歩7分

【最寄り駅4】

大阪メトロ中央線 堺筋本町駅  徒歩6分

エレベーター基数 2
階数 4階
物件番号/物件ID 16595
面積(平米) 339.20㎡
坪数 102.61坪
実行面積 100.00%
空調 個別
竣工 2020年07月30日
構造 鉄骨地上10階建地下0階
荷物用エレベーター基数
退去日 退去日の詳細につきましては、お問い合わせください。
備考 2021.11共用部リニューアル

瓦町スクエアの募集価格

総額 坪単価
賃料 非公開 賃料 非公開
共益費 非公開 共益費 非公開
月額合計 非公開 月額合計 非公開
保証金/敷金 非公開 保証金/敷金 非公開
礼金 非公開 礼金 非公開
賃料条件補足事項
総額
賃料 非公開
共益費 非公開
月額合計 非公開
保証金/敷金 非公開
礼金 非公開
坪単価
賃料 非公開
共益費 非公開
月額合計 非公開
保証金/敷金 非公開
礼金 非公開
賃料条件補足事項

瓦町スクエアのその他空室情報

階数 広さ 賃料合計(税別) 坪単価 保証金・敷金 礼金
5F 102.61坪 非公開 非公開 非公開 非公開
フロア詳細
フロア詳細
3F 25.35坪 非公開 非公開 非公開 非公開
フロア詳細
フロア詳細
3F 47.05坪 非公開 非公開 非公開 非公開
フロア詳細
フロア詳細
空室情報や物件見学などお気軽にお問い合わせください。
ESTATE AGENCY
株式会社エステートエージェンシー
定休日:日曜日・祝日 営業時間:09:00~19:00
でお問い合わせ(無料メール 簡単1 電話でお問い合わせ(無料)

瓦町スクエアの基本情報

インフォメーション
瓦町スクエアビルは、中央区エリア(大阪市中央区瓦町2丁目)にある、2020年竣工、地上10階建の賃貸オフィスビルです。、最寄駅は、御堂筋線本町駅徒歩6分のアクセス。オフィス街の中心地に位置する物件です。築浅ならではの充実した設備、基準階94坪~102坪(10階のみ53坪)のまとまった坪数。周辺金融機関、ホテル、貸会議室などの施設も多く、ビジネス拠点としては非常におすすめです。一等地に位置しているだけに、周辺企業様も大手企業が多いエリア。本社、支店の移転にどうでしょうか?是非一度ご内覧下さいませ!、その他、事務所、オフィス移転、不動産の事なら何でもお気軽にご相談下さい。
※貸主様からのご要望の為、条件を未公開としている場合がございます。詳しくお聞きになりたい場合は、弊社までご連絡ください。
※賃料、共益費、礼金、その他費用には別途消費税が掛かります。
※上記金額は募集条件です。条件交渉などについてはお気軽にお問い合わせください。
※確認時点での情報のため、リアルタイム情報はお問合せください。

瓦町スクエアの施設情報カテゴリ

1棟貸可能
駅直結
大型EV
大型駐車場
大通り沿い
傘いらず
貸会議室
空中店舗相談
ヴィンテージ・レトロ
シャワートイレ
セキュリティ
SOHO(住居兼事務所)
デザイナーズ・個性派
トイレ男女別
荷物EVあり
ハイグレードオフィス
ネット回線引込可
ビル内貸倉庫
免振・制振構造
有人警備
ランドマーク
リニューアル
フリースペース
レンタルオフィス
新耐震
駅近(出口
築浅
川沿い、公園沿い
自転車置場

自転車置場料金: ー 円

瓦町スクエアのアクセスマップ

空室情報や物件見学などお気軽にお問い合わせください。
ESTATE AGENCY
株式会社エステートエージェンシー
定休日:日曜日・祝日 営業時間:09:00~19:00
でお問い合わせ(無料メール 簡単1 電話でお問い合わせ(無料)