フロア詳細情報

瓦町浪速(大阪府大阪市中央区瓦町4丁目6番15号)のフロア情報

瓦町浪速のビル詳細を見る
空室状況はお電話一本でスムーズにご案内!まずはお気軽に0120-939-204へどうぞ。
でお問い合わせ(無料メール 簡単1
※上記の写真は人物等が映っている場合、修正・加工が施されています。
物件情報更新日: 2025/08/18

瓦町浪速の物件概要

ビル名
瓦町浪速
物件番号/物件ID 10078
住所 大阪府大阪市中央区瓦町4丁目6番15号 面積(平米) 49.58㎡
最寄り駅
【最寄り駅1】

大阪メトロ御堂筋線 本町駅  徒歩4分

【最寄り駅2】

大阪メトロ御堂筋線 淀屋橋駅  徒歩8分

【最寄り駅3】

大阪メトロ四つ橋線 本町駅  徒歩4分

【最寄り駅4】

大阪メトロ四つ橋線 肥後橋駅  徒歩8分

坪数 15.00坪
実行面積 85.00%
空調 個別
竣工 1970年01月01日
構造 SRC地上8階建地下1階
エレベーター基数 1 荷物用エレベーター基数
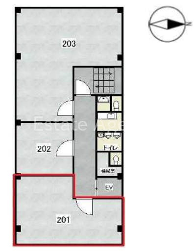
階数 地上 2階 退去日 退去日の詳細につきましては、お問い合わせください。
備考
ビル名
瓦町浪速
住所 10078
最寄り駅
【最寄り駅1】

大阪メトロ御堂筋線 本町駅  徒歩4分

【最寄り駅2】

大阪メトロ御堂筋線 淀屋橋駅  徒歩8分

【最寄り駅3】

大阪メトロ四つ橋線 本町駅  徒歩4分

【最寄り駅4】

大阪メトロ四つ橋線 肥後橋駅  徒歩8分

エレベーター基数 1
階数 2階
物件番号/物件ID 10078
面積(平米) 49.58㎡
坪数 15.00坪
実行面積 85.00%
空調 個別
竣工 1970年01月01日
構造 SRC地上8階建地下1階
荷物用エレベーター基数
退去日 退去日の詳細につきましては、お問い合わせください。
備考

瓦町浪速の募集価格

総額 坪単価
賃料 110,000円 賃料 7,334円
共益費 25,000円 共益費 1,667円
月額合計 135,000円 月額合計 9,001円
保証金/敷金 135,000円 保証金/敷金 9,000円
礼金 135,000円 礼金 9,000円
賃料条件補足事項 預かり金は2ヵ月分の電気代に充当(解約月)
総額
賃料 110,000円
共益費 25,000円
月額合計 135,000円
保証金/敷金 135,000円
礼金 135,000円
坪単価
賃料 7,334円
共益費 1,667円
月額合計 9,001円
保証金/敷金 9,000円
礼金 9,000円
賃料条件補足事項 預かり金は2ヵ月分の電気代に充当(解約月)

瓦町浪速のその他空室情報

階数 広さ 賃料合計(税別) 坪単価 保証金・敷金 礼金
6F 13.13坪 118,000円 8,988円 118,000円 118,000円
フロア詳細
フロア詳細
2F 14.97坪 135,454円 9,050円 0円 非公開
フロア詳細
フロア詳細
空室情報や物件見学などお気軽にお問い合わせください。
ESTATE AGENCY
株式会社エステートエージェンシー
定休日:日曜日・祝日 営業時間:09:00~19:00
でお問い合わせ(無料メール 簡単1 電話でお問い合わせ(無料)

瓦町浪速の基本情報

インフォメーション
瓦町浪速ビルは、中央区エリア(大阪市中央区瓦町4丁目)にある、地上8階地下1階建の賃貸オフィスビルです。最寄駅は、大阪メトロ御堂筋線 本町駅 徒歩4分のアクセス。是非一度ご内覧下さいませ!その他、事務所、オフィス移転の事なら何でもご相談下さい。
※貸主様からのご要望の為、条件を未公開としている場合がございます。詳しくお聞きになりたい場合は、弊社までご連絡ください。
※賃料、共益費、礼金、その他費用には別途消費税が掛かります。
※上記金額は募集条件です。条件交渉などについてはお気軽にお問い合わせください。

瓦町浪速の施設情報カテゴリ

1棟貸可能
駅直結
大型EV
大型駐車場
大通り沿い
傘いらず
貸会議室
空中店舗相談
ヴィンテージ・レトロ
シャワートイレ
セキュリティ
SOHO(住居兼事務所)
デザイナーズ・個性派
トイレ男女別
荷物EVあり
ハイグレードオフィス
ネット回線引込可
ビル内貸倉庫
免振・制振構造
有人警備
ランドマーク
リニューアル
フリースペース
レンタルオフィス
新耐震
駅近(出口
築浅
川沿い、公園沿い
自転車置場

自転車置場料金: ー 円

瓦町浪速のアクセスマップ

空室情報や物件見学などお気軽にお問い合わせください。
ESTATE AGENCY
株式会社エステートエージェンシー
定休日:日曜日・祝日 営業時間:09:00~19:00
でお問い合わせ(無料メール 簡単1 電話でお問い合わせ(無料)

よく似た物件