フロア詳細情報

プロスパー平野町(大阪府大阪市中央区平野町3丁目1番8号)のフロア情報

プロスパー平野町のビル詳細を見る
空室状況はお電話一本でスムーズにご案内!まずはお気軽に0120-939-204へどうぞ。
でお問い合わせ(無料メール 簡単1
※上記の写真は人物等が映っている場合、修正・加工が施されています。
物件情報更新日: 2026/03/12

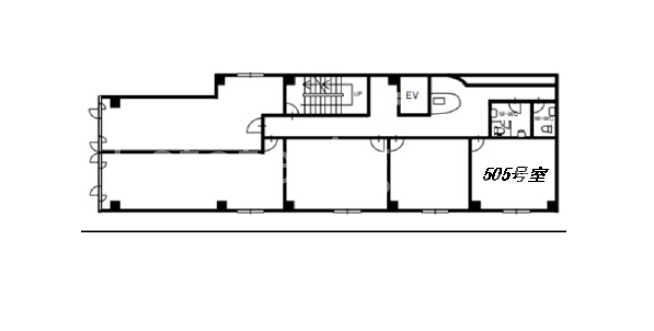
プロスパー平野町の物件概要

ビル名
プロスパー平野町
物件番号/物件ID 9894
住所 大阪府大阪市中央区平野町3丁目1番8号 面積(平米) 22.47㎡
最寄り駅
【最寄り駅1】

大阪メトロ御堂筋線 淀屋橋駅  徒歩5分

【最寄り駅2】

大阪メトロ堺筋線 北浜駅  徒歩6分

【最寄り駅3】

大阪メトロ御堂筋線 本町駅  徒歩8分

【最寄り駅4】

大阪メトロ四つ橋線 肥後橋駅  徒歩9分

坪数 6.80坪
実行面積 100.00%
空調 個別
竣工 1989年10月01日
構造 S造地上9階建地下1階
エレベーター基数 1 荷物用エレベーター基数
階数 地上 5階 退去日 退去日の詳細につきましては、お問い合わせください。
備考
ビル名
プロスパー平野町
住所 9894
最寄り駅
【最寄り駅1】

大阪メトロ御堂筋線 淀屋橋駅  徒歩5分

【最寄り駅2】

大阪メトロ堺筋線 北浜駅  徒歩6分

【最寄り駅3】

大阪メトロ御堂筋線 本町駅  徒歩8分

【最寄り駅4】

大阪メトロ四つ橋線 肥後橋駅  徒歩9分

エレベーター基数 1
階数 5階
物件番号/物件ID 9894
面積(平米) 22.47㎡
坪数 6.80坪
実行面積 100.00%
空調 個別
竣工 1989年10月01日
構造 S造地上9階建地下1階
荷物用エレベーター基数
退去日 退去日の詳細につきましては、お問い合わせください。
備考

プロスパー平野町の募集価格

総額 坪単価
賃料 85,680円 賃料 12,600円
共益費 0円 共益費 0円
月額合計 85,680円 月額合計 12,600円
保証金/敷金 771,120円 保証金/敷金 113,400円
礼金 0円 礼金 0円
賃料条件補足事項 保証会社加入で(賃料+共益費)×6ヶ月の減額可能(2025.2.19戸田)
総額
賃料 85,680円
共益費 0円
月額合計 85,680円
保証金/敷金 771,120円
礼金 0円
坪単価
賃料 12,600円
共益費 0円
月額合計 12,600円
保証金/敷金 113,400円
礼金 0円
賃料条件補足事項 保証会社加入で(賃料+共益費)×6ヶ月の減額可能(2025.2.19戸田)

プロスパー平野町のその他空室情報

階数 広さ 賃料合計(税別) 坪単価 保証金・敷金 礼金
3F 6.80坪 84,320円 12,400円 758,880円 0円
フロア詳細
フロア詳細
7F 23.79坪 371,150円 15,602円 2,542,378円 0円
フロア詳細
フロア詳細
6F 11.98坪 186,888円 15,600円 1,681,992円 0円
フロア詳細
フロア詳細
空室情報や物件見学などお気軽にお問い合わせください。
ESTATE AGENCY
株式会社エステートエージェンシー
定休日:日曜日・祝日 営業時間:09:00~19:00
でお問い合わせ(無料メール 簡単1 電話でお問い合わせ(無料)

プロスパー平野町の基本情報

インフォメーション
プロスパー平野町ビルは、中央区エリア(大阪市中央区平野町3丁目)にある、1989年竣工、地上9階地下1階建の賃貸オフィスビルです。最寄駅は大阪メトロ御堂筋線 淀屋橋駅 徒歩4分のアクセス。落ち着いた雰囲気があり、エントランスに応接ブースもあります。是非一度ご内覧下さいませ!その他、事務所、オフィス移転の事なら何でもご相談下さい。
※貸主様からのご要望の為、条件を未公開としている場合がございます。詳しくお聞きになりたい場合は、弊社までご連絡ください。
※賃料、共益費、礼金、その他費用には別途消費税が掛かります。
※上記金額は募集条件です。条件交渉などについてはお気軽にお問い合わせください。
※確認時点での情報のため、リアルタイム情報はお問合せください。

プロスパー平野町の施設情報カテゴリ

1棟貸可能
駅直結
大型EV
大型駐車場
大通り沿い
傘いらず
貸会議室
空中店舗相談
ヴィンテージ・レトロ
シャワートイレ
セキュリティ
SOHO(住居兼事務所)
デザイナーズ・個性派
トイレ男女別
荷物EVあり
ハイグレードオフィス
ネット回線引込可
ビル内貸倉庫
免振・制振構造
有人警備
ランドマーク
リニューアル
フリースペース
レンタルオフィス
新耐震
駅近(出口
築浅
川沿い、公園沿い
自転車置場

自転車置場料金: ー 円

プロスパー平野町のアクセスマップ

空室情報や物件見学などお気軽にお問い合わせください。
ESTATE AGENCY
株式会社エステートエージェンシー
定休日:日曜日・祝日 営業時間:09:00~19:00
でお問い合わせ(無料メール 簡単1 電話でお問い合わせ(無料)

よく似た物件

最近チェックした物件

申し訳ございません。
会員登録をお願い致します。

会員登録のメリット

  • 1、非公開物件情報のご紹介が可能です!
  • 2、ご希望条件をいただきましたら新着物件情報等を定期的に配信いたします!
  • 3、会員登録されたお客様にはご契約時に特別なプレゼントをご用意しております!
会員登録

※会員登録は同業者不可、メールアドレスは企業ドメインのみ
※GmailやYahooなどのフリーメールでは会員登録できないこともありますのでご了承ください。