フロア詳細情報

天満橋八千代ビル別館(大阪府大阪市中央区天満橋京町丁目なし2番6号)のフロア情報

空室状況はお電話一本でスムーズにご案内!まずはお気軽に0120-939-204へどうぞ。
でお問い合わせ(無料メール 簡単1
※上記の写真は人物等が映っている場合、修正・加工が施されています。
物件情報更新日: 2026/02/20

天満橋八千代ビル別館の物件概要

ビル名
天満橋八千代ビル別館
物件番号/物件ID 11088
住所 大阪府大阪市中央区天満橋京町丁目なし2番6号 面積(平米) 21.55㎡
最寄り駅
【最寄り駅1】

大阪メトロ谷町線 天満橋駅  徒歩2分

【最寄り駅2】

大阪メトロ堺筋線 北浜駅  徒歩10分

【最寄り駅3】

大阪メトロ谷町線 谷町四丁目駅  徒歩11分

【最寄り駅4】

京阪本線 天満橋駅  徒歩2分

坪数 6.52坪
実行面積 100.00%
空調 個別
竣工 1986年01月01日
構造 SRC地上10階建地下1階
エレベーター基数 1 荷物用エレベーター基数
階数 地上 1階 退去日 退去日の詳細につきましては、お問い合わせください。
備考
ビル名
天満橋八千代ビル別館
住所 11088
最寄り駅
【最寄り駅1】

大阪メトロ谷町線 天満橋駅  徒歩2分

【最寄り駅2】

大阪メトロ堺筋線 北浜駅  徒歩10分

【最寄り駅3】

大阪メトロ谷町線 谷町四丁目駅  徒歩11分

【最寄り駅4】

京阪本線 天満橋駅  徒歩2分

エレベーター基数 1
階数 1階
物件番号/物件ID 11088
面積(平米) 21.55㎡
坪数 6.52坪
実行面積 100.00%
空調 個別
竣工 1986年01月01日
構造 SRC地上10階建地下1階
荷物用エレベーター基数
退去日 退去日の詳細につきましては、お問い合わせください。
備考

天満橋八千代ビル別館の募集価格

総額 坪単価
賃料 非公開 賃料 非公開
共益費 非公開 共益費 非公開
月額合計 非公開 月額合計 非公開
保証金/敷金 非公開 保証金/敷金 非公開
礼金 非公開 礼金 非公開
賃料条件補足事項 定借期間要確認
総額
賃料 非公開
共益費 非公開
月額合計 非公開
保証金/敷金 非公開
礼金 非公開
坪単価
賃料 非公開
共益費 非公開
月額合計 非公開
保証金/敷金 非公開
礼金 非公開
賃料条件補足事項 定借期間要確認

天満橋八千代ビル別館のその他空室情報

階数 広さ 賃料合計(税別) 坪単価 保証金・敷金 礼金
1F 26.28坪 非公開 非公開 非公開 非公開
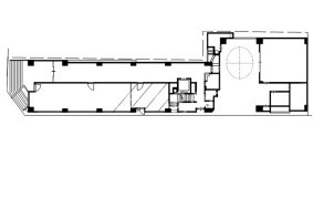
フロア詳細
フロア詳細
5F 15.52坪 非公開 非公開 非公開 非公開
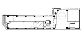
フロア詳細
フロア詳細
空室情報や物件見学などお気軽にお問い合わせください。
ESTATE AGENCY
株式会社エステートエージェンシー
定休日:日曜日・祝日 営業時間:09:00~19:00
でお問い合わせ(無料メール 簡単1 電話でお問い合わせ(無料)

天満橋八千代ビル別館の基本情報

インフォメーション
天満橋八千代ビル別館は、中央区エリア(大阪市中央区天満橋京町)にある、1986年竣工、地上10階地下1階建の賃貸オフィスビルです。最寄駅は、大阪メトロ谷町線 天満橋駅 徒歩2分のアクセス。管理の行き届いた清潔感あふれるオフィスです。是非一度ご内覧下さいませ!その他、事務所、オフィス移転の事なら何でもご相談下さい。
※貸主様からのご要望の為、条件を未公開としている場合がございます。詳しくお聞きになりたい場合は、弊社までご連絡ください。
※賃料、共益費、礼金、その他費用には別途消費税が掛かります。
※上記金額は募集条件です。条件交渉などについてはお気軽にお問い合わせください。
※確認時点での情報のため、リアルタイム情報はお問合せください。

天満橋八千代ビル別館の施設情報カテゴリ

1棟貸可能
駅直結
大型EV
大型駐車場
大通り沿い
傘いらず
貸会議室
空中店舗相談
ヴィンテージ・レトロ
シャワートイレ
セキュリティ
SOHO(住居兼事務所)
デザイナーズ・個性派
トイレ男女別
荷物EVあり
ハイグレードオフィス
ネット回線引込可
ビル内貸倉庫
免振・制振構造
有人警備
ランドマーク
リニューアル
フリースペース
レンタルオフィス
新耐震
駅近(出口
築浅
川沿い、公園沿い
自転車置場

自転車置場料金: ー 円

天満橋八千代ビル別館のアクセスマップ

空室情報や物件見学などお気軽にお問い合わせください。
ESTATE AGENCY
株式会社エステートエージェンシー
定休日:日曜日・祝日 営業時間:09:00~19:00
でお問い合わせ(無料メール 簡単1 電話でお問い合わせ(無料)

よく似た物件

最近チェックした物件