フロア詳細情報

クリスタルタワーSANKYO(大阪府大阪市天王寺区生玉前町丁目なし1番18号)のフロア情報

空室状況はお電話一本でスムーズにご案内!まずはお気軽に0120-939-204へどうぞ。
でお問い合わせ(無料メール 簡単1
※上記の写真は人物等が映っている場合、修正・加工が施されています。
物件情報更新日: 2026/02/01

クリスタルタワーSANKYOの物件概要

ビル名
クリスタルタワーSANKYO
物件番号/物件ID 15410
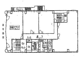
住所 大阪府大阪市天王寺区生玉前町丁目なし1番18号 面積(平米) 56.19㎡
最寄り駅
【最寄り駅1】

大阪メトロ谷町線 谷町九丁目駅  徒歩2分

【最寄り駅2】

近鉄難波・奈良線 大阪上本町駅  徒歩5分

【最寄り駅4】

近鉄難波・奈良線 大阪上本町駅  徒歩7分

坪数 17.00坪
実行面積 80.00%
空調 個別
竣工 1989年04月01日
構造 S造
エレベーター基数 1 荷物用エレベーター基数
階数 地上 7階 退去日 退去日の詳細につきましては、お問い合わせください。
備考
ビル名
クリスタルタワーSANKYO
住所 15410
最寄り駅
【最寄り駅1】

大阪メトロ谷町線 谷町九丁目駅  徒歩2分

【最寄り駅2】

近鉄難波・奈良線 大阪上本町駅  徒歩5分

【最寄り駅4】

近鉄難波・奈良線 大阪上本町駅  徒歩7分

エレベーター基数 1
階数 7階
物件番号/物件ID 15410
面積(平米) 56.19㎡
坪数 17.00坪
実行面積 80.00%
空調 個別
竣工 1989年04月01日
構造 S造
荷物用エレベーター基数
退去日 退去日の詳細につきましては、お問い合わせください。
備考

クリスタルタワーSANKYOの募集価格

総額 坪単価
賃料 153,000円 賃料 9,000円
共益費 0円 共益費 0円
月額合計 153,000円 月額合計 9,000円
保証金/敷金 0円 保証金/敷金 0円
礼金 306,000円 礼金 18,000円
賃料条件補足事項 水道・ガス使用料は賃料に含む、定期借家契約3年、保証会社加入 再契約時、定借期間1年あたり賃料の20%
総額
賃料 153,000円
共益費 0円
月額合計 153,000円
保証金/敷金 0円
礼金 306,000円
坪単価
賃料 9,000円
共益費 0円
月額合計 9,000円
保証金/敷金 0円
礼金 18,000円
賃料条件補足事項 水道・ガス使用料は賃料に含む、定期借家契約3年、保証会社加入 再契約時、定借期間1年あたり賃料の20%
空室情報や物件見学などお気軽にお問い合わせください。
ESTATE AGENCY
株式会社エステートエージェンシー
定休日:日曜日・祝日 営業時間:09:00~19:00
でお問い合わせ(無料メール 簡単1 電話でお問い合わせ(無料)

クリスタルタワーSANKYOの基本情報

インフォメーション
このクリスタルタワーSANKYOビルは住所大阪府大阪市天王寺区生玉前町1番18号の1989年竣工、地上10階建の賃貸オフィスビルです。最寄駅は、大阪メトロ千日前線谷町九丁目駅徒歩2分のアクセス。設備情報はシャワートイレ、トイレ男女別、24時間利用可能、光回線、管理物件。是非一度ご内覧下さいませ! その他、事務所、オフィス移転、不動産の事なら何でもお気軽にご相談下さい。
※貸主様からのご要望の為、条件を未公開としている場合がございます。詳しくお聞きになりたい場合は、弊社までご連絡ください。
※賃料、共益費、礼金、その他費用には別途消費税が掛かります。
※上記金額は募集条件です。条件交渉などについてはお気軽にお問い合わせください。
※確認時点での情報のため、リアルタイム情報はお問合せください。

クリスタルタワーSANKYOの施設情報カテゴリ

1棟貸可能
駅直結
大型EV
大型駐車場
大通り沿い
傘いらず
貸会議室
空中店舗相談
ヴィンテージ・レトロ
シャワートイレ
セキュリティ
SOHO(住居兼事務所)
デザイナーズ・個性派
トイレ男女別
荷物EVあり
ハイグレードオフィス
ネット回線引込可
ビル内貸倉庫
免振・制振構造
有人警備
ランドマーク
リニューアル
フリースペース
レンタルオフィス
新耐震
駅近(出口
築浅
川沿い、公園沿い
自転車置場

自転車置場料金: ー 円

クリスタルタワーSANKYOのアクセスマップ

空室情報や物件見学などお気軽にお問い合わせください。
ESTATE AGENCY
株式会社エステートエージェンシー
定休日:日曜日・祝日 営業時間:09:00~19:00
でお問い合わせ(無料メール 簡単1 電話でお問い合わせ(無料)

よく似た物件

最近チェックした物件

申し訳ございません。
会員登録をお願い致します。

会員登録のメリット

  • 1、非公開物件情報のご紹介が可能です!
  • 2、ご希望条件をいただきましたら新着物件情報等を定期的に配信いたします!
  • 3、会員登録されたお客様にはご契約時に特別なプレゼントをご用意しております!
会員登録

※会員登録は同業者不可、メールアドレスは企業ドメインのみ
※GmailやYahooなどのフリーメールでは会員登録できないこともありますのでご了承ください。