
ビル名:ダイゼンビル
住 所:大阪府大阪市中央区南船場2丁目12番10号
【ポイント】
クリスタ長堀の北5階段・エレベーターより徒歩1分!!
エントランス改修工事中で年内完了予定で、他各共用部についても順次改修予定!
【アクセス】
★大阪メトロ御堂筋線・長堀鶴見緑地線・・・【心斎橋】徒歩3分
★大阪メトロ堺筋線・長堀鶴見緑地線・・・【長堀橋】徒歩3分
★梅田駅まで・・・・・・・・・・・・電車で12分/車で13分
★新大阪駅まで・・・・・・・・・・・電車で19分/車で21分
★関西空港まで・・・・・・・・・・・電車で60分/車で42分
★大阪空港まで・・・・・・・・・・・電車で55分/車で27分
【MAP】

【ビルスペック】
▲ 竣工年月日 / 耐震基準・・・・・・1991年2月竣工/新耐震
▲ 構造・・・・・・・・・・・・・・1階:鉄骨鉄筋コンクリート、2階~10階:鉄骨構造
▲ ビル規模・・・・・・・・・・・・地上10階
▲ 建物用途/区分・・・・・・・・・事務所
【建物設備/施設】
▲エレベーター
→有(1基)
▲セキュリティ
→あり
▲ 空調
→個別空調
▲ トイレ
→共用部/洋式・シャワートイレ
▲シンク
→有(手洗い)
▲ 光ケーブル【電話線】
→引き込み可能
▲ 駐車場
→無し
▲ 駐輪場
→無し
【物件写真】

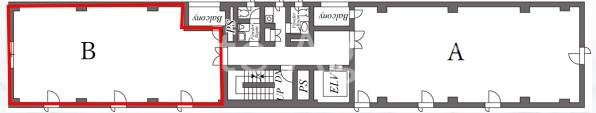
【募集区画】


VR内見はこちらから

【担当者コメント】
エステートエージェンシーの戸田です!
急に冷え込みが凄くて、冬がやってきたなと実感しております。
体調管理には気をつけていきたいものですね。
今回ですが、ダイゼンビル内覧会に行ってきました!
長堀通沿いに面している物件で、好立地な物件となります。
また、クリスタ長堀という地下街が通っているため、
通勤時天候が悪い場合も傘いらずなので利便性もGOODです!!
是非一度ご内覧ください。
お問い合わせお待ちしております。