フロア詳細情報

A・M京橋(東京都中央区京橋2丁目5番2号)のフロア情報

A・M京橋のビル詳細を見る
空室状況はお電話一本でスムーズにご案内!まずはお気軽に0120-939-204へどうぞ。
でお問い合わせ(無料メール 簡単1
※上記の写真は人物等が映っている場合、修正・加工が施されています。
物件情報更新日: 2025/10/18

A・M京橋の物件概要

ビル名
A・M京橋
物件番号/物件ID 2550
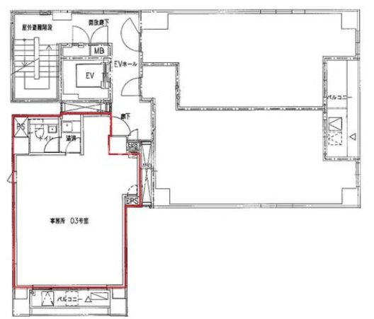
住所 東京都中央区京橋2丁目5番2号 面積(平米) 43.73㎡
最寄り駅
【最寄り駅1】

東京メトロ銀座線 京橋駅  徒歩1分

【最寄り駅2】

都営地下鉄浅草線 宝町駅  徒歩2分

【最寄り駅3】

東京メトロ有楽町線 銀座一丁目駅  徒歩5分

【最寄り駅4】

JR山手線 有楽町駅  徒歩7分

坪数 13.23坪
実行面積
空調 個別
竣工 2001年08月01日
構造 RC地上9階建地下0階
エレベーター基数 1 荷物用エレベーター基数
階数 地上 2階 退去日 退去日の詳細につきましては、お問い合わせください。
備考
ビル名
A・M京橋
住所 2550
最寄り駅
【最寄り駅1】

東京メトロ銀座線 京橋駅  徒歩1分

【最寄り駅2】

都営地下鉄浅草線 宝町駅  徒歩2分

【最寄り駅3】

東京メトロ有楽町線 銀座一丁目駅  徒歩5分

【最寄り駅4】

JR山手線 有楽町駅  徒歩7分

エレベーター基数 1
階数 2階
物件番号/物件ID 2550
面積(平米) 43.73㎡
坪数 13.23坪
実行面積
空調 個別
竣工 2001年08月01日
構造 RC地上9階建地下0階
荷物用エレベーター基数
退去日 退去日の詳細につきましては、お問い合わせください。
備考

A・M京橋の募集価格

総額 坪単価
賃料 330,818円 賃料 25,006円
共益費 0円 共益費 0円
月額合計 330,818円 月額合計 25,006円
保証金/敷金 1,654,090円 保証金/敷金 125,026円
礼金 0円 礼金 0円
賃料条件補足事項
総額
賃料 330,818円
共益費 0円
月額合計 330,818円
保証金/敷金 1,654,090円
礼金 0円
坪単価
賃料 25,006円
共益費 0円
月額合計 25,006円
保証金/敷金 125,026円
礼金 0円
賃料条件補足事項

A・M京橋のその他空室情報

階数 広さ 賃料合計(税別) 坪単価 保証金・敷金 礼金
5F 13.23坪 370,454円 28,002円 1,852,270円 0円
フロア詳細
フロア詳細
3F 13.23坪 330,818円 25,006円 1,654,090円 0円
フロア詳細
フロア詳細
空室情報や物件見学などお気軽にお問い合わせください。
ESTATE AGENCY
株式会社エステートエージェンシー
定休日:日曜日・祝日 営業時間:09:00~19:00
でお問い合わせ(無料メール 簡単1 電話でお問い合わせ(無料)
※貸主様からのご要望の為、条件を未公開としている場合がございます。詳しくお聞きになりたい場合は、弊社までご連絡ください。
※賃料、共益費、礼金、その他費用には別途消費税が掛かります。
※上記金額は募集条件です。条件交渉などについてはお気軽にお問い合わせください。

A・M京橋の施設情報カテゴリ

1棟貸可能
駅直結
大型EV
大型駐車場
大通り沿い
傘いらず
貸会議室
空中店舗相談
ヴィンテージ・レトロ
シャワートイレ
セキュリティ
SOHO(住居兼事務所)
デザイナーズ・個性派
トイレ男女別
荷物EVあり
ハイグレードオフィス
ネット回線引込可
ビル内貸倉庫
免振・制振構造
有人警備
ランドマーク
リニューアル
フリースペース
レンタルオフィス
新耐震
駅近(出口
築浅
川沿い、公園沿い
自転車置場

自転車置場料金: ー 円

A・M京橋のアクセスマップ

空室情報や物件見学などお気軽にお問い合わせください。
ESTATE AGENCY
株式会社エステートエージェンシー
定休日:日曜日・祝日 営業時間:09:00~19:00
でお問い合わせ(無料メール 簡単1 電話でお問い合わせ(無料)

最近チェックした物件