フロア詳細情報

NOVEL WORK Shibakoen(東京都港区芝2丁目6番3号)のフロア情報

空室状況はお電話一本でスムーズにご案内!まずはお気軽に0120-939-204へどうぞ。
でお問い合わせ(無料メール 簡単1
※上記の写真は人物等が映っている場合、修正・加工が施されています。
物件情報更新日: 2025/09/08

NOVEL WORK Shibakoenの物件概要

ビル名
NOVEL WORK Shibakoen
物件番号/物件ID 1804
住所 東京都港区芝2丁目6番3号 面積(平米) 101.38㎡
最寄り駅
【最寄り駅1】

都営地下鉄三田線 芝公園駅  徒歩2分

【最寄り駅2】

都営地下鉄浅草線 三田駅  徒歩7分

【最寄り駅3】

JR山手線 浜松町駅  徒歩8分

【最寄り駅4】

都営地下鉄大江戸線 大門駅  徒歩7分

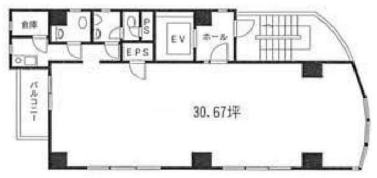
坪数 30.67坪
実行面積
空調 個別
竣工 1989年01月01日
構造 鉄骨地上7階建
エレベーター基数 1 荷物用エレベーター基数
階数 地上 4階 退去日 退去日の詳細につきましては、お問い合わせください。
備考 倉庫スペース有
ビル名
NOVEL WORK Shibakoen
住所 1804
最寄り駅
【最寄り駅1】

都営地下鉄三田線 芝公園駅  徒歩2分

【最寄り駅2】

都営地下鉄浅草線 三田駅  徒歩7分

【最寄り駅3】

JR山手線 浜松町駅  徒歩8分

【最寄り駅4】

都営地下鉄大江戸線 大門駅  徒歩7分

エレベーター基数 1
階数 4階
物件番号/物件ID 1804
面積(平米) 101.38㎡
坪数 30.67坪
実行面積
空調 個別
竣工 1989年01月01日
構造 鉄骨地上7階建
荷物用エレベーター基数
退去日 退去日の詳細につきましては、お問い合わせください。
備考 倉庫スペース有

NOVEL WORK Shibakoenの募集価格

総額 坪単価
賃料 889,430円 賃料 29,000円
共益費 0円 共益費 0円
月額合計 889,430円 月額合計 29,000円
保証金/敷金 5,336,580円 保証金/敷金 174,000円
礼金 0円 礼金 0円
賃料条件補足事項
総額
賃料 889,430円
共益費 0円
月額合計 889,430円
保証金/敷金 5,336,580円
礼金 0円
坪単価
賃料 29,000円
共益費 0円
月額合計 29,000円
保証金/敷金 174,000円
礼金 0円
賃料条件補足事項

NOVEL WORK Shibakoenのその他空室情報

階数 広さ 賃料合計(税別) 坪単価 保証金・敷金 礼金
2F 29.22坪 847,380円 29,000円 非公開 非公開
フロア詳細
フロア詳細
3F 30.67坪 889,430円 29,000円 非公開 非公開
フロア詳細
フロア詳細
6F 30.67坪 889,430円 29,000円 非公開 非公開
フロア詳細
フロア詳細
空室情報や物件見学などお気軽にお問い合わせください。
ESTATE AGENCY
株式会社エステートエージェンシー
定休日:日曜日・祝日 営業時間:09:00~19:00
でお問い合わせ(無料メール 簡単1 電話でお問い合わせ(無料)
※貸主様からのご要望の為、条件を未公開としている場合がございます。詳しくお聞きになりたい場合は、弊社までご連絡ください。
※賃料、共益費、礼金、その他費用には別途消費税が掛かります。
※上記金額は募集条件です。条件交渉などについてはお気軽にお問い合わせください。

NOVEL WORK Shibakoenの施設情報カテゴリ

1棟貸可能
駅直結
大型EV
大型駐車場
大通り沿い
傘いらず
貸会議室
空中店舗相談
ヴィンテージ・レトロ
シャワートイレ
セキュリティ
SOHO(住居兼事務所)
デザイナーズ・個性派
トイレ男女別
荷物EVあり
ハイグレードオフィス
ネット回線引込可
ビル内貸倉庫
免振・制振構造
有人警備
ランドマーク
リニューアル
フリースペース
レンタルオフィス
新耐震
駅近(出口
築浅
川沿い、公園沿い
自転車置場

自転車置場料金: ー 円

NOVEL WORK Shibakoenのアクセスマップ

空室情報や物件見学などお気軽にお問い合わせください。
ESTATE AGENCY
株式会社エステートエージェンシー
定休日:日曜日・祝日 営業時間:09:00~19:00
でお問い合わせ(無料メール 簡単1 電話でお問い合わせ(無料)

最近チェックした物件