フロア詳細情報

パシフィックマークス月島(東京都中央区月島1丁目15番7号)のフロア情報

空室状況はお電話一本でスムーズにご案内!まずはお気軽に0120-939-204へどうぞ。
でお問い合わせ(無料メール 簡単1
※上記の写真は人物等が映っている場合、修正・加工が施されています。
物件情報更新日: 2025/10/02

パシフィックマークス月島の物件概要

ビル名
パシフィックマークス月島
物件番号/物件ID 23138
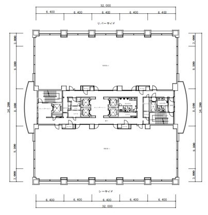
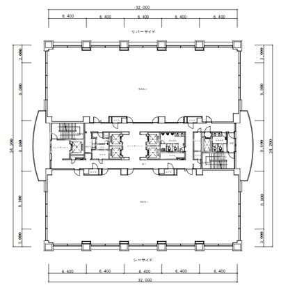
住所 東京都中央区月島1丁目15番7号 面積(平米) 900.56㎡
最寄り駅
【最寄り駅1】

東京メトロ有楽町線 月島駅  徒歩3分

【最寄り駅2】

東京メトロ日比谷線 築地駅  徒歩10分

【最寄り駅3】

都営地下鉄大江戸線 勝どき駅  徒歩11分

【最寄り駅4】

都営地下鉄大江戸線 月島駅  徒歩3分

坪数 272.42坪
実行面積
空調 個別
竣工 1990年03月01日
構造 SRC地上13階建地下2階
エレベーター基数 1 荷物用エレベーター基数
階数 地上 5階 退去日 退去日の詳細につきましては、お問い合わせください。
備考
ビル名
パシフィックマークス月島
住所 23138
最寄り駅
【最寄り駅1】

東京メトロ有楽町線 月島駅  徒歩3分

【最寄り駅2】

東京メトロ日比谷線 築地駅  徒歩10分

【最寄り駅3】

都営地下鉄大江戸線 勝どき駅  徒歩11分

【最寄り駅4】

都営地下鉄大江戸線 月島駅  徒歩3分

エレベーター基数 1
階数 5階
物件番号/物件ID 23138
面積(平米) 900.56㎡
坪数 272.42坪
実行面積
空調 個別
竣工 1990年03月01日
構造 SRC地上13階建地下2階
荷物用エレベーター基数
退去日 退去日の詳細につきましては、お問い合わせください。
備考

パシフィックマークス月島の募集価格

総額 坪単価
賃料 非公開 賃料 非公開
共益費 非公開 共益費 非公開
月額合計 非公開 月額合計 非公開
保証金/敷金 非公開 保証金/敷金 非公開
礼金 非公開 礼金 非公開
賃料条件補足事項 定借3年
総額
賃料 非公開
共益費 非公開
月額合計 非公開
保証金/敷金 非公開
礼金 非公開
坪単価
賃料 非公開
共益費 非公開
月額合計 非公開
保証金/敷金 非公開
礼金 非公開
賃料条件補足事項 定借3年

パシフィックマークス月島のその他空室情報

階数 広さ 賃料合計(税別) 坪単価 保証金・敷金 礼金
4F 272.42坪 非公開 非公開 非公開 非公開
フロア詳細
フロア詳細
6F 272.42坪 非公開 非公開 非公開 非公開
フロア詳細
フロア詳細
3F 272.34坪 非公開 非公開 非公開 非公開
フロア詳細
フロア詳細
4F 272.42坪 非公開 非公開 非公開 非公開
フロア詳細
フロア詳細
空室情報や物件見学などお気軽にお問い合わせください。
ESTATE AGENCY
株式会社エステートエージェンシー
定休日:日曜日・祝日 営業時間:09:00~19:00
でお問い合わせ(無料メール 簡単1 電話でお問い合わせ(無料)
※貸主様からのご要望の為、条件を未公開としている場合がございます。詳しくお聞きになりたい場合は、弊社までご連絡ください。
※賃料、共益費、礼金、その他費用には別途消費税が掛かります。
※上記金額は募集条件です。条件交渉などについてはお気軽にお問い合わせください。

パシフィックマークス月島の施設情報カテゴリ

1棟貸可能
駅直結
大型EV
大型駐車場
大通り沿い
傘いらず
貸会議室
空中店舗相談
ヴィンテージ・レトロ
シャワートイレ
セキュリティ
SOHO(住居兼事務所)
デザイナーズ・個性派
トイレ男女別
荷物EVあり
ハイグレードオフィス
ネット回線引込可
ビル内貸倉庫
免振・制振構造
有人警備
ランドマーク
リニューアル
フリースペース
レンタルオフィス
新耐震
駅近(出口
築浅
川沿い、公園沿い
自転車置場

自転車置場料金: ー 円

パシフィックマークス月島のアクセスマップ

空室情報や物件見学などお気軽にお問い合わせください。
ESTATE AGENCY
株式会社エステートエージェンシー
定休日:日曜日・祝日 営業時間:09:00~19:00
でお問い合わせ(無料メール 簡単1 電話でお問い合わせ(無料)