フロア詳細情報

mirio神保町(東京都千代田区神田神保町1丁目28番1号)のフロア情報

mirio神保町のビル詳細を見る
空室状況はお電話一本でスムーズにご案内!まずはお気軽に0120-939-204へどうぞ。
でお問い合わせ(無料メール 簡単1
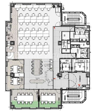
※上記の写真は人物等が映っている場合、修正・加工が施されています。
物件情報更新日: 2025/09/08

mirio神保町の物件概要

ビル名
mirio神保町
物件番号/物件ID 24396
住所 東京都千代田区神田神保町1丁目28番1号 面積(平米) 262.04㎡
最寄り駅
【最寄り駅1】

都営地下鉄新宿線 神保町駅  徒歩2分

【最寄り駅2】

東京メトロ半蔵門線 神保町駅  徒歩2分

【最寄り駅3】

都営地下鉄三田線 神保町駅  徒歩2分

【最寄り駅4】

東京メトロ丸ノ内線 御茶ノ水駅  徒歩8分

坪数 79.27坪
実行面積
空調
竣工 2023年08月01日
構造 鉄骨地上14階建
エレベーター基数 2 荷物用エレベーター基数
階数 地上 12階 退去日 退去日の詳細につきましては、お問い合わせください。
備考
ビル名
mirio神保町
住所 24396
最寄り駅
【最寄り駅1】

都営地下鉄新宿線 神保町駅  徒歩2分

【最寄り駅2】

東京メトロ半蔵門線 神保町駅  徒歩2分

【最寄り駅3】

都営地下鉄三田線 神保町駅  徒歩2分

【最寄り駅4】

東京メトロ丸ノ内線 御茶ノ水駅  徒歩8分

エレベーター基数 2
階数 12階
物件番号/物件ID 24396
面積(平米) 262.04㎡
坪数 79.27坪
実行面積
空調
竣工 2023年08月01日
構造 鉄骨地上14階建
荷物用エレベーター基数
退去日 退去日の詳細につきましては、お問い合わせください。
備考

mirio神保町の募集価格

総額 坪単価
賃料 非公開 賃料 非公開
共益費 非公開 共益費 非公開
月額合計 非公開 月額合計 非公開
保証金/敷金 非公開 保証金/敷金 非公開
礼金 非公開 礼金 非公開
賃料条件補足事項
総額
賃料 非公開
共益費 非公開
月額合計 非公開
保証金/敷金 非公開
礼金 非公開
坪単価
賃料 非公開
共益費 非公開
月額合計 非公開
保証金/敷金 非公開
礼金 非公開
賃料条件補足事項

mirio神保町のその他空室情報

階数 広さ 賃料合計(税別) 坪単価 保証金・敷金 礼金
2F 79.27坪 非公開 非公開 非公開 非公開
フロア詳細
フロア詳細
6F 79.27坪 非公開 非公開 非公開 非公開
フロア詳細
フロア詳細
空室情報や物件見学などお気軽にお問い合わせください。
ESTATE AGENCY
株式会社エステートエージェンシー
定休日:日曜日・祝日 営業時間:09:00~19:00
でお問い合わせ(無料メール 簡単1 電話でお問い合わせ(無料)
※貸主様からのご要望の為、条件を未公開としている場合がございます。詳しくお聞きになりたい場合は、弊社までご連絡ください。
※賃料、共益費、礼金、その他費用には別途消費税が掛かります。
※上記金額は募集条件です。条件交渉などについてはお気軽にお問い合わせください。

mirio神保町の施設情報カテゴリ

1棟貸可能
駅直結
大型EV
大型駐車場
大通り沿い
傘いらず
貸会議室
空中店舗相談
ヴィンテージ・レトロ
シャワートイレ
セキュリティ
SOHO(住居兼事務所)
デザイナーズ・個性派
トイレ男女別
荷物EVあり
ハイグレードオフィス
ネット回線引込可
ビル内貸倉庫
免振・制振構造
有人警備
ランドマーク
リニューアル
フリースペース
レンタルオフィス
新耐震
駅近(出口
築浅
川沿い、公園沿い
自転車置場

自転車置場料金: ー 円

mirio神保町のアクセスマップ

空室情報や物件見学などお気軽にお問い合わせください。
ESTATE AGENCY
株式会社エステートエージェンシー
定休日:日曜日・祝日 営業時間:09:00~19:00
でお問い合わせ(無料メール 簡単1 電話でお問い合わせ(無料)