フロア詳細情報

ノア大手町(東京都千代田区神田錦町1丁目21番3号)のフロア情報

ノア大手町のビル詳細を見る
空室状況はお電話一本でスムーズにご案内!まずはお気軽に0120-939-204へどうぞ。
でお問い合わせ(無料メール 簡単1
※上記の写真は人物等が映っている場合、修正・加工が施されています。
物件情報更新日: 2026/02/09

ノア大手町の物件概要

ビル名
ノア大手町
物件番号/物件ID 26028
住所 東京都千代田区神田錦町1丁目21番3号 面積(平米) 65.25㎡
最寄り駅
【最寄り駅1】

東京メトロ半蔵門線 大手町駅  徒歩5分

【最寄り駅2】

東京メトロ丸ノ内線 大手町駅  徒歩6分

【最寄り駅3】

東京メトロ丸ノ内線 淡路町駅  徒歩8分

【最寄り駅4】

JR中央線 神田駅  徒歩8分

坪数 19.74坪
実行面積
空調 個別
竣工 1992年11月01日
構造 SRC地上12階建地下0階
エレベーター基数 1 荷物用エレベーター基数
階数 地上 9階 退去日 退去日の詳細につきましては、お問い合わせください。
備考
ビル名
ノア大手町
住所 26028
最寄り駅
【最寄り駅1】

東京メトロ半蔵門線 大手町駅  徒歩5分

【最寄り駅2】

東京メトロ丸ノ内線 大手町駅  徒歩6分

【最寄り駅3】

東京メトロ丸ノ内線 淡路町駅  徒歩8分

【最寄り駅4】

JR中央線 神田駅  徒歩8分

エレベーター基数 1
階数 9階
物件番号/物件ID 26028
面積(平米) 65.25㎡
坪数 19.74坪
実行面積
空調 個別
竣工 1992年11月01日
構造 SRC地上12階建地下0階
荷物用エレベーター基数
退去日 退去日の詳細につきましては、お問い合わせください。
備考

ノア大手町の募集価格

総額 坪単価
賃料 500,000円 賃料 25,330円
共益費 0円 共益費 0円
月額合計 500,000円 月額合計 25,330円
保証金/敷金 1,500,000円 保証金/敷金 75,988円
礼金 0円 礼金 0円
賃料条件補足事項 償却:無 電気基本料金4,930円、電気料金15,000円
総額
賃料 500,000円
共益費 0円
月額合計 500,000円
保証金/敷金 1,500,000円
礼金 0円
坪単価
賃料 25,330円
共益費 0円
月額合計 25,330円
保証金/敷金 75,988円
礼金 0円
賃料条件補足事項 償却:無 電気基本料金4,930円、電気料金15,000円

ノア大手町のその他空室情報

階数 広さ 賃料合計(税別) 坪単価 保証金・敷金 礼金
4F 19.40坪 410,000円 21,135円 720,000円 0円
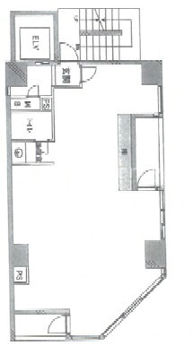
フロア詳細
フロア詳細
空室情報や物件見学などお気軽にお問い合わせください。
ESTATE AGENCY
株式会社エステートエージェンシー
定休日:日曜日・祝日 営業時間:09:00~19:00
でお問い合わせ(無料メール 簡単1 電話でお問い合わせ(無料)
※貸主様からのご要望の為、条件を未公開としている場合がございます。詳しくお聞きになりたい場合は、弊社までご連絡ください。
※賃料、共益費、礼金、その他費用には別途消費税が掛かります。
※上記金額は募集条件です。条件交渉などについてはお気軽にお問い合わせください。
※確認時点での情報のため、リアルタイム情報はお問合せください。

ノア大手町の施設情報カテゴリ

1棟貸可能
駅直結
大型EV
大型駐車場
大通り沿い
傘いらず
貸会議室
空中店舗相談
ヴィンテージ・レトロ
シャワートイレ
セキュリティ
SOHO(住居兼事務所)
デザイナーズ・個性派
トイレ男女別
荷物EVあり
ハイグレードオフィス
ネット回線引込可
ビル内貸倉庫
免振・制振構造
有人警備
ランドマーク
リニューアル
フリースペース
レンタルオフィス
新耐震
駅近(出口
築浅
川沿い、公園沿い
自転車置場

自転車置場料金: ー 円

ノア大手町のアクセスマップ

空室情報や物件見学などお気軽にお問い合わせください。
ESTATE AGENCY
株式会社エステートエージェンシー
定休日:日曜日・祝日 営業時間:09:00~19:00
でお問い合わせ(無料メール 簡単1 電話でお問い合わせ(無料)

最近チェックした物件