フロア詳細情報

紀尾井町(東京都千代田区紀尾井町丁目なし3番12号)のフロア情報

紀尾井町のビル詳細を見る
空室状況はお電話一本でスムーズにご案内!まずはお気軽に0120-939-204へどうぞ。
でお問い合わせ(無料メール 簡単1
※上記の写真は人物等が映っている場合、修正・加工が施されています。
物件情報更新日: 2026/04/01

紀尾井町の物件概要

ビル名
紀尾井町
物件番号/物件ID 7500
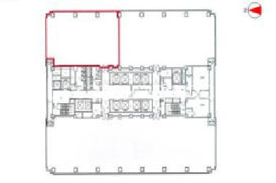
住所 東京都千代田区紀尾井町丁目なし3番12号 面積(平米) 271.00㎡
最寄り駅
【最寄り駅1】

東京メトロ有楽町線 麹町駅  徒歩3分

【最寄り駅2】

東京メトロ南北線 永田町駅  徒歩6分

【最寄り駅3】

東京メトロ丸ノ内線 赤坂見附駅  徒歩7分

【最寄り駅4】

東京メトロ銀座線 赤坂見附駅  徒歩7分

坪数 81.98坪
実行面積
空調 個別・集中
竣工 1989年11月01日
構造 鉄骨地上26階建地下4階
エレベーター基数 12 荷物用エレベーター基数 2
階数 地上 5階 退去日 退去日の詳細につきましては、お問い合わせください。
備考
ビル名
紀尾井町
住所 7500
最寄り駅
【最寄り駅1】

東京メトロ有楽町線 麹町駅  徒歩3分

【最寄り駅2】

東京メトロ南北線 永田町駅  徒歩6分

【最寄り駅3】

東京メトロ丸ノ内線 赤坂見附駅  徒歩7分

【最寄り駅4】

東京メトロ銀座線 赤坂見附駅  徒歩7分

エレベーター基数 12
階数 5階
物件番号/物件ID 7500
面積(平米) 271.00㎡
坪数 81.98坪
実行面積
空調 個別・集中
竣工 1989年11月01日
構造 鉄骨地上26階建地下4階
荷物用エレベーター基数 2
退去日 退去日の詳細につきましては、お問い合わせください。
備考

紀尾井町の募集価格

総額 坪単価
賃料 非公開 賃料 非公開
共益費 非公開 共益費 非公開
月額合計 非公開 月額合計 非公開
保証金/敷金 非公開 保証金/敷金 非公開
礼金 非公開 礼金 非公開
賃料条件補足事項
総額
賃料 非公開
共益費 非公開
月額合計 非公開
保証金/敷金 非公開
礼金 非公開
坪単価
賃料 非公開
共益費 非公開
月額合計 非公開
保証金/敷金 非公開
礼金 非公開
賃料条件補足事項

紀尾井町のその他空室情報

階数 広さ 賃料合計(税別) 坪単価 保証金・敷金 礼金
6F 58.84坪 非公開 非公開 非公開 非公開
フロア詳細
フロア詳細
8F 24.10坪 非公開 非公開 非公開 非公開
フロア詳細
フロア詳細
空室情報や物件見学などお気軽にお問い合わせください。
ESTATE AGENCY
株式会社エステートエージェンシー
定休日:日曜日・祝日 営業時間:09:00~19:00
でお問い合わせ(無料メール 簡単1 電話でお問い合わせ(無料)
※貸主様からのご要望の為、条件を未公開としている場合がございます。詳しくお聞きになりたい場合は、弊社までご連絡ください。
※賃料、共益費、礼金、その他費用には別途消費税が掛かります。
※上記金額は募集条件です。条件交渉などについてはお気軽にお問い合わせください。
※確認時点での情報のため、リアルタイム情報はお問合せください。

紀尾井町の施設情報カテゴリ

1棟貸可能
駅直結
大型EV
大型駐車場
大通り沿い
傘いらず
貸会議室
空中店舗相談
ヴィンテージ・レトロ
シャワートイレ
セキュリティ
SOHO(住居兼事務所)
デザイナーズ・個性派
トイレ男女別
荷物EVあり
ハイグレードオフィス
ネット回線引込可
ビル内貸倉庫
免振・制振構造
有人警備
ランドマーク
リニューアル
フリースペース
レンタルオフィス
新耐震
駅近(出口
築浅
川沿い、公園沿い
自転車置場

自転車置場料金: ー 円

紀尾井町のアクセスマップ

空室情報や物件見学などお気軽にお問い合わせください。
ESTATE AGENCY
株式会社エステートエージェンシー
定休日:日曜日・祝日 営業時間:09:00~19:00
でお問い合わせ(無料メール 簡単1 電話でお問い合わせ(無料)