フロア詳細情報

+SHIFT GINZA EAST(東京都中央区新富1丁目8番9号)のフロア情報

空室状況はお電話一本でスムーズにご案内!まずはお気軽に0120-939-204へどうぞ。
でお問い合わせ(無料メール 簡単1
※上記の写真は人物等が映っている場合、修正・加工が施されています。
物件情報更新日: 2025/12/16

+SHIFT GINZA EASTの物件概要

ビル名
+SHIFT GINZA EAST
物件番号/物件ID 2497
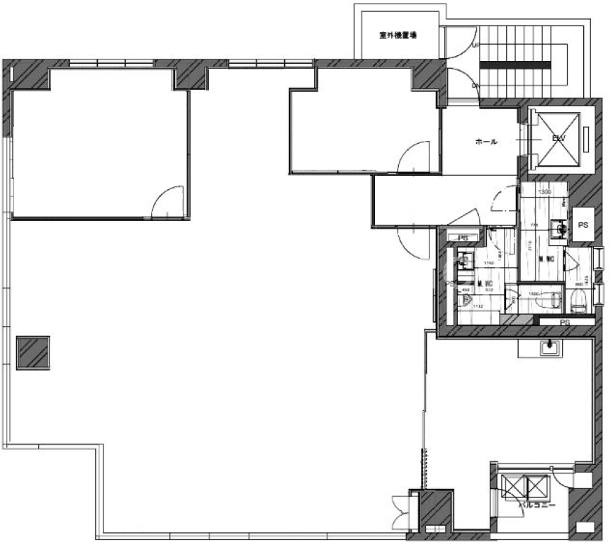
住所 東京都中央区新富1丁目8番9号 面積(平米) 184.62㎡
最寄り駅
【最寄り駅1】

東京メトロ有楽町線 新富町駅  徒歩3分

【最寄り駅2】

東京メトロ日比谷線 八丁堀駅  徒歩5分

【最寄り駅3】

都営地下鉄浅草線 宝町駅  徒歩5分

【最寄り駅4】

東京メトロ銀座線 京橋駅  徒歩8分

坪数 55.85坪
実行面積
空調 個別
竣工 1992年01月01日
構造 鉄骨地上9階建地下1階
エレベーター基数 1 荷物用エレベーター基数
階数 地上 3階 退去日 退去日の詳細につきましては、お問い合わせください。
備考
ビル名
+SHIFT GINZA EAST
住所 2497
最寄り駅
【最寄り駅1】

東京メトロ有楽町線 新富町駅  徒歩3分

【最寄り駅2】

東京メトロ日比谷線 八丁堀駅  徒歩5分

【最寄り駅3】

都営地下鉄浅草線 宝町駅  徒歩5分

【最寄り駅4】

東京メトロ銀座線 京橋駅  徒歩8分

エレベーター基数 1
階数 3階
物件番号/物件ID 2497
面積(平米) 184.62㎡
坪数 55.85坪
実行面積
空調 個別
竣工 1992年01月01日
構造 鉄骨地上9階建地下1階
荷物用エレベーター基数
退去日 退去日の詳細につきましては、お問い合わせください。
備考

+SHIFT GINZA EASTの募集価格

総額 坪単価
賃料 1,340,363円 賃料 24,000円
共益費 0円 共益費 0円
月額合計 1,340,363円 月額合計 24,000円
保証金/敷金 9,382,541円 保証金/敷金 167,996円
礼金 0円 礼金 0円
賃料条件補足事項 2年契約
総額
賃料 1,340,363円
共益費 0円
月額合計 1,340,363円
保証金/敷金 9,382,541円
礼金 0円
坪単価
賃料 24,000円
共益費 0円
月額合計 24,000円
保証金/敷金 167,996円
礼金 0円
賃料条件補足事項 2年契約

+SHIFT GINZA EASTのその他空室情報

階数 広さ 賃料合計(税別) 坪単価 保証金・敷金 礼金
5F 55.85坪 1,340,363円 24,000円 9,382,541円 0円
フロア詳細
フロア詳細
8F 55.85坪 1,340,363円 24,000円 9,382,541円 0円
フロア詳細
フロア詳細
空室情報や物件見学などお気軽にお問い合わせください。
ESTATE AGENCY
株式会社エステートエージェンシー
定休日:日曜日・祝日 営業時間:09:00~19:00
でお問い合わせ(無料メール 簡単1 電話でお問い合わせ(無料)
※貸主様からのご要望の為、条件を未公開としている場合がございます。詳しくお聞きになりたい場合は、弊社までご連絡ください。
※賃料、共益費、礼金、その他費用には別途消費税が掛かります。
※上記金額は募集条件です。条件交渉などについてはお気軽にお問い合わせください。
※確認時点での情報のため、リアルタイム情報はお問合せください。

+SHIFT GINZA EASTの施設情報カテゴリ

1棟貸可能
駅直結
大型EV
大型駐車場
大通り沿い
傘いらず
貸会議室
空中店舗相談
ヴィンテージ・レトロ
シャワートイレ
セキュリティ
SOHO(住居兼事務所)
デザイナーズ・個性派
トイレ男女別
荷物EVあり
ハイグレードオフィス
ネット回線引込可
ビル内貸倉庫
免振・制振構造
有人警備
ランドマーク
リニューアル
フリースペース
レンタルオフィス
新耐震
駅近(出口
築浅
川沿い、公園沿い
自転車置場

自転車置場料金: ー 円

+SHIFT GINZA EASTのアクセスマップ

空室情報や物件見学などお気軽にお問い合わせください。
ESTATE AGENCY
株式会社エステートエージェンシー
定休日:日曜日・祝日 営業時間:09:00~19:00
でお問い合わせ(無料メール 簡単1 電話でお問い合わせ(無料)

最近チェックした物件