フロア詳細情報

KI(東京都港区浜松町2丁目2番14号)のフロア情報

KIのビル詳細を見る
空室状況はお電話一本でスムーズにご案内!まずはお気軽に0120-939-204へどうぞ。
でお問い合わせ(無料メール 簡単1
※上記の写真は人物等が映っている場合、修正・加工が施されています。
物件情報更新日: 2026/05/28

KIの物件概要

ビル名
KI
物件番号/物件ID 1602
住所 東京都港区浜松町2丁目2番14号 面積(平米) 42.74㎡
最寄り駅
【最寄り駅1】

JR山手線 浜松町駅  徒歩3分

【最寄り駅2】

都営地下鉄大江戸線 大門駅  徒歩2分

【最寄り駅3】

都営地下鉄三田線 芝公園駅  徒歩6分

【最寄り駅4】

ゆりかもめ 竹芝駅  徒歩8分

坪数 12.93坪
実行面積
空調 個別
竣工 1981年03月01日
構造 SRC造地上11階建地下0階
エレベーター基数 1 荷物用エレベーター基数
階数 地上 8階 退去日 退去日の詳細につきましては、お問い合わせください。
備考
ビル名
KI
住所 1602
最寄り駅
【最寄り駅1】

JR山手線 浜松町駅  徒歩3分

【最寄り駅2】

都営地下鉄大江戸線 大門駅  徒歩2分

【最寄り駅3】

都営地下鉄三田線 芝公園駅  徒歩6分

【最寄り駅4】

ゆりかもめ 竹芝駅  徒歩8分

エレベーター基数 1
階数 8階
物件番号/物件ID 1602
面積(平米) 42.74㎡
坪数 12.93坪
実行面積
空調 個別
竣工 1981年03月01日
構造 SRC造地上11階建地下0階
荷物用エレベーター基数
退去日 退去日の詳細につきましては、お問い合わせください。
備考

KIの募集価格

総額 坪単価
賃料 193,910円 賃料 14,997円
共益費 38,790円 共益費 3,000円
月額合計 232,700円 月額合計 17,997円
保証金/敷金 1,163,460円 保証金/敷金 89,982円
礼金 0円 礼金 0円
賃料条件補足事項 更新料:1ヶ月・償却:2ヶ月
総額
賃料 193,910円
共益費 38,790円
月額合計 232,700円
保証金/敷金 1,163,460円
礼金 0円
坪単価
賃料 14,997円
共益費 3,000円
月額合計 17,997円
保証金/敷金 89,982円
礼金 0円
賃料条件補足事項 更新料:1ヶ月・償却:2ヶ月

KIのその他空室情報

階数 広さ 賃料合計(税別) 坪単価 保証金・敷金 礼金
8F 9.52坪 171,378円 18,002円 856,908円 非公開
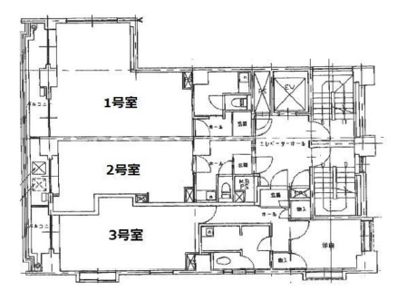
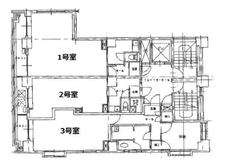
フロア詳細
フロア詳細
空室情報や物件見学などお気軽にお問い合わせください。
ESTATE AGENCY
株式会社エステートエージェンシー
定休日:日曜日・祝日 営業時間:09:00~19:00
でお問い合わせ(無料メール 簡単1 電話でお問い合わせ(無料)
※貸主様からのご要望の為、条件を未公開としている場合がございます。詳しくお聞きになりたい場合は、弊社までご連絡ください。
※賃料、共益費、礼金、その他費用には別途消費税が掛かります。
※上記金額は募集条件です。条件交渉などについてはお気軽にお問い合わせください。
※確認時点での情報のため、リアルタイム情報はお問合せください。

KIの施設情報カテゴリ

1棟貸可能
駅直結
大型EV
大型駐車場
大通り沿い
傘いらず
貸会議室
空中店舗相談
ヴィンテージ・レトロ
シャワートイレ
セキュリティ
SOHO(住居兼事務所)
デザイナーズ・個性派
トイレ男女別
荷物EVあり
ハイグレードオフィス
ネット回線引込可
ビル内貸倉庫
免振・制振構造
有人警備
ランドマーク
リニューアル
フリースペース
レンタルオフィス
新耐震
駅近(出口
築浅
川沿い、公園沿い
自転車置場

自転車置場料金: ー 円

KIのアクセスマップ

空室情報や物件見学などお気軽にお問い合わせください。
ESTATE AGENCY
株式会社エステートエージェンシー
定休日:日曜日・祝日 営業時間:09:00~19:00
でお問い合わせ(無料メール 簡単1 電話でお問い合わせ(無料)

よく似た物件

申し訳ございません。
会員登録をお願い致します。

会員登録のメリット

  • 1、非公開物件情報のご紹介が可能です!
  • 2、ご希望条件をいただきましたら新着物件情報等を定期的に配信いたします!
  • 3、会員登録されたお客様にはご契約時に特別なプレゼントをご用意しております!
会員登録

※会員登録は同業者不可、メールアドレスは企業ドメインのみ
※GmailやYahooなどのフリーメールでは会員登録できないこともありますのでご了承ください。