フロア詳細情報

楠本第2(東京都千代田区内神田1丁目2番8号)のフロア情報

楠本第2のビル詳細を見る
空室状況はお電話一本でスムーズにご案内!まずはお気軽に0120-939-204へどうぞ。
でお問い合わせ(無料メール 簡単1
※上記の写真は人物等が映っている場合、修正・加工が施されています。
物件情報更新日: 2025/08/20

楠本第2の物件概要

ビル名
楠本第2
物件番号/物件ID 1446
住所 東京都千代田区内神田1丁目2番8号 面積(平米) 169.25㎡
最寄り駅
【最寄り駅1】

JR山手線 神田駅  徒歩7分

【最寄り駅2】

東京メトロ半蔵門線 大手町駅  徒歩5分

【最寄り駅3】

東京メトロ丸ノ内線 大手町駅  徒歩6分

【最寄り駅4】

JR中央線 神田駅  徒歩7分

坪数 51.20坪
実行面積
空調 個別
竣工 1962年10月01日
構造 SRC地上11階建地下1階
エレベーター基数 1 荷物用エレベーター基数
階数 地上 7階 退去日 退去日の詳細につきましては、お問い合わせください。
備考
ビル名
楠本第2
住所 1446
最寄り駅
【最寄り駅1】

JR山手線 神田駅  徒歩7分

【最寄り駅2】

東京メトロ半蔵門線 大手町駅  徒歩5分

【最寄り駅3】

東京メトロ丸ノ内線 大手町駅  徒歩6分

【最寄り駅4】

JR中央線 神田駅  徒歩7分

エレベーター基数 1
階数 7階
物件番号/物件ID 1446
面積(平米) 169.25㎡
坪数 51.20坪
実行面積
空調 個別
竣工 1962年10月01日
構造 SRC地上11階建地下1階
荷物用エレベーター基数
退去日 退去日の詳細につきましては、お問い合わせください。
備考

楠本第2の募集価格

総額 坪単価
賃料 819,181円 賃料 16,000円
共益費 204,800円 共益費 4,000円
月額合計 1,023,981円 月額合計 20,000円
保証金/敷金 9,830,172円 保証金/敷金 191,996円
礼金 0円 礼金 0円
賃料条件補足事項 定借、更新料・償却無、保証会社要加入
総額
賃料 819,181円
共益費 204,800円
月額合計 1,023,981円
保証金/敷金 9,830,172円
礼金 0円
坪単価
賃料 16,000円
共益費 4,000円
月額合計 20,000円
保証金/敷金 191,996円
礼金 0円
賃料条件補足事項 定借、更新料・償却無、保証会社要加入

楠本第2のその他空室情報

階数 広さ 賃料合計(税別) 坪単価 保証金・敷金 礼金
8F 90.20坪 1,803,981円 20,000円 17,318,172円 0円
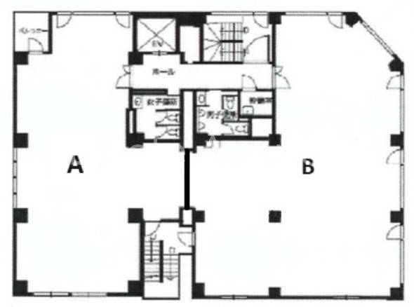
フロア詳細
フロア詳細
6F 90.20坪 1,803,981円 20,000円 17,318,172円 0円
フロア詳細
フロア詳細
2F 84.09坪 1,681,800円 20,000円 16,145,280円 0円
フロア詳細
フロア詳細
10F 38.83坪 776,600円 20,000円 7,455,360円 0円
フロア詳細
フロア詳細
10F 39.00坪 741,000円 19,000円 7,113,600円 0円
フロア詳細
フロア詳細
10F 36.83坪 736,592円 20,000円 7,071,264円 0円
フロア詳細
フロア詳細
2F 84.10坪 1,681,945円 20,001円 16,146,540円 0円
フロア詳細
フロア詳細
空室情報や物件見学などお気軽にお問い合わせください。
ESTATE AGENCY
株式会社エステートエージェンシー
定休日:日曜日・祝日 営業時間:09:00~19:00
でお問い合わせ(無料メール 簡単1 電話でお問い合わせ(無料)
※貸主様からのご要望の為、条件を未公開としている場合がございます。詳しくお聞きになりたい場合は、弊社までご連絡ください。
※賃料、共益費、礼金、その他費用には別途消費税が掛かります。
※上記金額は募集条件です。条件交渉などについてはお気軽にお問い合わせください。

楠本第2の施設情報カテゴリ

1棟貸可能
駅直結
大型EV
大型駐車場
大通り沿い
傘いらず
貸会議室
空中店舗相談
ヴィンテージ・レトロ
シャワートイレ
セキュリティ
SOHO(住居兼事務所)
デザイナーズ・個性派
トイレ男女別
荷物EVあり
ハイグレードオフィス
ネット回線引込可
ビル内貸倉庫
免振・制振構造
有人警備
ランドマーク
リニューアル
フリースペース
レンタルオフィス
新耐震
駅近(出口
築浅
川沿い、公園沿い
自転車置場

自転車置場料金: ー 円

楠本第2のアクセスマップ

空室情報や物件見学などお気軽にお問い合わせください。
ESTATE AGENCY
株式会社エステートエージェンシー
定休日:日曜日・祝日 営業時間:09:00~19:00
でお問い合わせ(無料メール 簡単1 電話でお問い合わせ(無料)

よく似た物件

最近チェックした物件