フロア詳細情報

新御茶ノ水アーバントリニティ(東京都千代田区神田駿河台3丁目2番1号)のフロア情報

空室状況はお電話一本でスムーズにご案内!まずはお気軽に0120-939-204へどうぞ。
でお問い合わせ(無料メール 簡単1
※上記の写真は人物等が映っている場合、修正・加工が施されています。
物件情報更新日: 2026/02/06

新御茶ノ水アーバントリニティの物件概要

ビル名
新御茶ノ水アーバントリニティ
物件番号/物件ID 7707
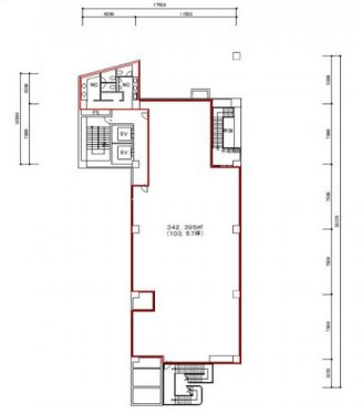
住所 東京都千代田区神田駿河台3丁目2番1号 面積(平米) 342.38㎡
最寄り駅
【最寄り駅1】

東京メトロ千代田線 新御茶ノ水駅  徒歩3分

【最寄り駅2】

都営地下鉄新宿線 小川町駅  徒歩3分

【最寄り駅3】

東京メトロ丸ノ内線 淡路町駅  徒歩3分

【最寄り駅4】

東京メトロ銀座線 神田駅  徒歩7分

坪数 103.57坪
実行面積
空調 個別
竣工 2002年11月01日
構造 SRC造地上12階建地下2階
エレベーター基数 2 荷物用エレベーター基数
階数 地上 2階 退去日 退去日の詳細につきましては、お問い合わせください。
備考
ビル名
新御茶ノ水アーバントリニティ
住所 7707
最寄り駅
【最寄り駅1】

東京メトロ千代田線 新御茶ノ水駅  徒歩3分

【最寄り駅2】

都営地下鉄新宿線 小川町駅  徒歩3分

【最寄り駅3】

東京メトロ丸ノ内線 淡路町駅  徒歩3分

【最寄り駅4】

東京メトロ銀座線 神田駅  徒歩7分

エレベーター基数 2
階数 2階
物件番号/物件ID 7707
面積(平米) 342.38㎡
坪数 103.57坪
実行面積
空調 個別
竣工 2002年11月01日
構造 SRC造地上12階建地下2階
荷物用エレベーター基数
退去日 退去日の詳細につきましては、お問い合わせください。
備考

新御茶ノ水アーバントリニティの募集価格

総額 坪単価
賃料 非公開 賃料 非公開
共益費 非公開 共益費 非公開
月額合計 非公開 月額合計 非公開
保証金/敷金 非公開 保証金/敷金 非公開
礼金 非公開 礼金 非公開
賃料条件補足事項 定借(年数応相談)更新料・償却なし
総額
賃料 非公開
共益費 非公開
月額合計 非公開
保証金/敷金 非公開
礼金 非公開
坪単価
賃料 非公開
共益費 非公開
月額合計 非公開
保証金/敷金 非公開
礼金 非公開
賃料条件補足事項 定借(年数応相談)更新料・償却なし
空室情報や物件見学などお気軽にお問い合わせください。
ESTATE AGENCY
株式会社エステートエージェンシー
定休日:日曜日・祝日 営業時間:09:00~19:00
でお問い合わせ(無料メール 簡単1 電話でお問い合わせ(無料)

新御茶ノ水アーバントリニティの基本情報

インフォメーション
この新御茶ノ水アーバントリニティビルは住所東京都千代田区神田駿河台3丁目2番の2002年竣工、地上12階建の賃貸オフィスビルです。最寄駅は、東京メトロ千代田線新御茶ノ水駅徒歩3分のアクセス。設備情報は大型ビル、大通り沿い、セキュリティ、トイレ男女別、24時間利用可能、光回線、部屋セキュリティ。是非一度ご内覧下さいませ! その他、事務所、オフィス移転、不動産の事なら何でもお気軽にご相談下さい。
※貸主様からのご要望の為、条件を未公開としている場合がございます。詳しくお聞きになりたい場合は、弊社までご連絡ください。
※賃料、共益費、礼金、その他費用には別途消費税が掛かります。
※上記金額は募集条件です。条件交渉などについてはお気軽にお問い合わせください。
※確認時点での情報のため、リアルタイム情報はお問合せください。

新御茶ノ水アーバントリニティの施設情報カテゴリ

1棟貸可能
駅直結
大型EV
大型駐車場
大通り沿い
傘いらず
貸会議室
空中店舗相談
ヴィンテージ・レトロ
シャワートイレ
セキュリティ
SOHO(住居兼事務所)
デザイナーズ・個性派
トイレ男女別
荷物EVあり
ハイグレードオフィス
ネット回線引込可
ビル内貸倉庫
免振・制振構造
有人警備
ランドマーク
リニューアル
フリースペース
レンタルオフィス
新耐震
駅近(出口
築浅
川沿い、公園沿い
自転車置場

自転車置場料金: ー 円

新御茶ノ水アーバントリニティのアクセスマップ

空室情報や物件見学などお気軽にお問い合わせください。
ESTATE AGENCY
株式会社エステートエージェンシー
定休日:日曜日・祝日 営業時間:09:00~19:00
でお問い合わせ(無料メール 簡単1 電話でお問い合わせ(無料)

最近チェックした物件

申し訳ございません。
会員登録をお願い致します。

会員登録のメリット

  • 1、非公開物件情報のご紹介が可能です!
  • 2、ご希望条件をいただきましたら新着物件情報等を定期的に配信いたします!
  • 3、会員登録されたお客様にはご契約時に特別なプレゼントをご用意しております!
会員登録

※会員登録は同業者不可、メールアドレスは企業ドメインのみ
※GmailやYahooなどのフリーメールでは会員登録できないこともありますのでご了承ください。