フロア詳細情報

千寿(東京都新宿区高田馬場1丁目30番5号)のフロア情報

千寿のビル詳細を見る
空室状況はお電話一本でスムーズにご案内!まずはお気軽に0120-939-204へどうぞ。
でお問い合わせ(無料メール 簡単1
※上記の写真は人物等が映っている場合、修正・加工が施されています。
物件情報更新日: 2026/02/03

千寿の物件概要

ビル名
千寿
物件番号/物件ID 4184
住所 東京都新宿区高田馬場1丁目30番5号 面積(平米) 136.33㎡
最寄り駅
【最寄り駅1】

JR山手線 高田馬場駅  徒歩4分

【最寄り駅2】

東京メトロ副都心線 西早稲田駅  徒歩6分

【最寄り駅3】

東京メトロ東西線 高田馬場駅  徒歩5分

【最寄り駅4】

JR山手線 新大久保駅  徒歩13分

坪数 41.24坪
実行面積
空調
竣工 1989年03月01日
構造 SRC地上8階建
エレベーター基数 荷物用エレベーター基数
階数 地上 2階 退去日 退去日の詳細につきましては、お問い合わせください。
備考
ビル名
千寿
住所 4184
最寄り駅
【最寄り駅1】

JR山手線 高田馬場駅  徒歩4分

【最寄り駅2】

東京メトロ副都心線 西早稲田駅  徒歩6分

【最寄り駅3】

東京メトロ東西線 高田馬場駅  徒歩5分

【最寄り駅4】

JR山手線 新大久保駅  徒歩13分

エレベーター基数
階数 2階
物件番号/物件ID 4184
面積(平米) 136.33㎡
坪数 41.24坪
実行面積
空調
竣工 1989年03月01日
構造 SRC地上8階建
荷物用エレベーター基数
退去日 退去日の詳細につきましては、お問い合わせください。
備考

千寿の募集価格

総額 坪単価
賃料 545,454円 賃料 13,227円
共益費 123,720円 共益費 3,000円
月額合計 669,174円 月額合計 16,227円
保証金/敷金 4,363,632円 保証金/敷金 105,816円
礼金 0円 礼金 0円
賃料条件補足事項 償却2ヶ月、更新料:新賃料1ヶ月
総額
賃料 545,454円
共益費 123,720円
月額合計 669,174円
保証金/敷金 4,363,632円
礼金 0円
坪単価
賃料 13,227円
共益費 3,000円
月額合計 16,227円
保証金/敷金 105,816円
礼金 0円
賃料条件補足事項 償却2ヶ月、更新料:新賃料1ヶ月

千寿のその他空室情報

階数 広さ 賃料合計(税別) 坪単価 保証金・敷金 礼金
3F 41.24坪 669,174円 16,227円 4,363,632円 0円
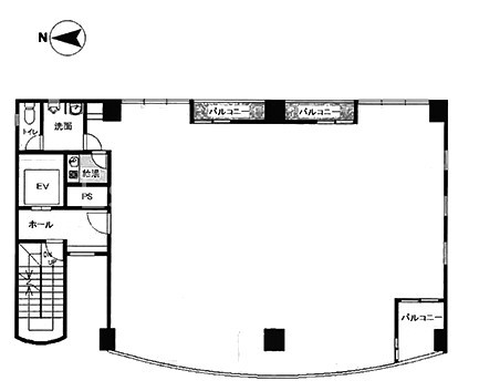
フロア詳細
フロア詳細
空室情報や物件見学などお気軽にお問い合わせください。
ESTATE AGENCY
株式会社エステートエージェンシー
定休日:日曜日・祝日 営業時間:09:00~19:00
でお問い合わせ(無料メール 簡単1 電話でお問い合わせ(無料)
※貸主様からのご要望の為、条件を未公開としている場合がございます。詳しくお聞きになりたい場合は、弊社までご連絡ください。
※賃料、共益費、礼金、その他費用には別途消費税が掛かります。
※上記金額は募集条件です。条件交渉などについてはお気軽にお問い合わせください。
※確認時点での情報のため、リアルタイム情報はお問合せください。

千寿の施設情報カテゴリ

1棟貸可能
駅直結
大型EV
大型駐車場
大通り沿い
傘いらず
貸会議室
空中店舗相談
ヴィンテージ・レトロ
シャワートイレ
セキュリティ
SOHO(住居兼事務所)
デザイナーズ・個性派
トイレ男女別
荷物EVあり
ハイグレードオフィス
ネット回線引込可
ビル内貸倉庫
免振・制振構造
有人警備
ランドマーク
リニューアル
フリースペース
レンタルオフィス
新耐震
駅近(出口
築浅
川沿い、公園沿い
自転車置場

自転車置場料金: ー 円

千寿のアクセスマップ

空室情報や物件見学などお気軽にお問い合わせください。
ESTATE AGENCY
株式会社エステートエージェンシー
定休日:日曜日・祝日 営業時間:09:00~19:00
でお問い合わせ(無料メール 簡単1 電話でお問い合わせ(無料)

最近チェックした物件