フロア詳細情報

汐留ビルディング(東京都港区海岸1丁目2番20号)のフロア情報

汐留ビルディングのビル詳細を見る
空室状況はお電話一本でスムーズにご案内!まずはお気軽に0120-939-204へどうぞ。
でお問い合わせ(無料メール 簡単1
※上記の写真は人物等が映っている場合、修正・加工が施されています。
物件情報更新日: 2026/02/09

汐留ビルディングの物件概要

ビル名
汐留ビルディング
物件番号/物件ID 6804
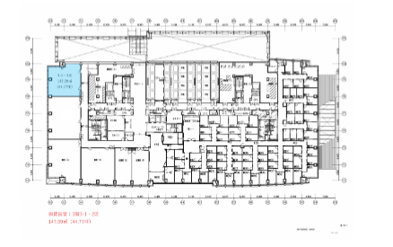
住所 東京都港区海岸1丁目2番20号 面積(平米) 148.00㎡
最寄り駅
【最寄り駅1】

JR山手線 浜松町駅  徒歩3分

【最寄り駅2】

都営地下鉄浅草線 大門駅  徒歩5分

【最寄り駅3】

ゆりかもめ 竹芝駅  徒歩5分

【最寄り駅4】

都営地下鉄大江戸線 汐留駅  徒歩8分

坪数 44.77坪
実行面積 100.00%
空調 個別
竣工 2007年12月01日
構造 鉄骨地上24階建地下2階
エレベーター基数 33 荷物用エレベーター基数 2
階数 地上 3階 退去日 退去日の詳細につきましては、お問い合わせください。
備考
ビル名
汐留ビルディング
住所 6804
最寄り駅
【最寄り駅1】

JR山手線 浜松町駅  徒歩3分

【最寄り駅2】

都営地下鉄浅草線 大門駅  徒歩5分

【最寄り駅3】

ゆりかもめ 竹芝駅  徒歩5分

【最寄り駅4】

都営地下鉄大江戸線 汐留駅  徒歩8分

エレベーター基数 33
階数 3階
物件番号/物件ID 6804
面積(平米) 148.00㎡
坪数 44.77坪
実行面積 100.00%
空調 個別
竣工 2007年12月01日
構造 鉄骨地上24階建地下2階
荷物用エレベーター基数 2
退去日 退去日の詳細につきましては、お問い合わせください。
備考

汐留ビルディングの募集価格

総額 坪単価
賃料 非公開 賃料 非公開
共益費 非公開 共益費 非公開
月額合計 非公開 月額合計 非公開
保証金/敷金 非公開 保証金/敷金 非公開
礼金 非公開 礼金 非公開
賃料条件補足事項
総額
賃料 非公開
共益費 非公開
月額合計 非公開
保証金/敷金 非公開
礼金 非公開
坪単価
賃料 非公開
共益費 非公開
月額合計 非公開
保証金/敷金 非公開
礼金 非公開
賃料条件補足事項

汐留ビルディングのその他空室情報

階数 広さ 賃料合計(税別) 坪単価 保証金・敷金 礼金
10F 1059.21坪 非公開 非公開 非公開 非公開
フロア詳細
フロア詳細
9F 1059.21坪 非公開 非公開 非公開 非公開
フロア詳細
フロア詳細
8F 1059.21坪 非公開 非公開 非公開 非公開
フロア詳細
フロア詳細
21F 490.29坪 非公開 非公開 非公開 非公開
フロア詳細
フロア詳細
空室情報や物件見学などお気軽にお問い合わせください。
ESTATE AGENCY
株式会社エステートエージェンシー
定休日:日曜日・祝日 営業時間:09:00~19:00
でお問い合わせ(無料メール 簡単1 電話でお問い合わせ(無料)
※貸主様からのご要望の為、条件を未公開としている場合がございます。詳しくお聞きになりたい場合は、弊社までご連絡ください。
※賃料、共益費、礼金、その他費用には別途消費税が掛かります。
※上記金額は募集条件です。条件交渉などについてはお気軽にお問い合わせください。
※確認時点での情報のため、リアルタイム情報はお問合せください。

汐留ビルディングの施設情報カテゴリ

1棟貸可能
駅直結
大型EV
大型駐車場
大通り沿い
傘いらず
貸会議室
空中店舗相談
ヴィンテージ・レトロ
シャワートイレ
セキュリティ
SOHO(住居兼事務所)
デザイナーズ・個性派
トイレ男女別
荷物EVあり
ハイグレードオフィス
ネット回線引込可
ビル内貸倉庫
免振・制振構造
有人警備
ランドマーク
リニューアル
フリースペース
レンタルオフィス
新耐震
駅近(出口
築浅
川沿い、公園沿い
自転車置場

自転車置場料金: ー 円

汐留ビルディングのアクセスマップ

空室情報や物件見学などお気軽にお問い合わせください。
ESTATE AGENCY
株式会社エステートエージェンシー
定休日:日曜日・祝日 営業時間:09:00~19:00
でお問い合わせ(無料メール 簡単1 電話でお問い合わせ(無料)