フロア詳細情報

京橋北見ビル東館(東京都中央区八丁堀3丁目4番10号)のフロア情報

京橋北見ビル東館のビル詳細を見る
空室状況はお電話一本でスムーズにご案内!まずはお気軽に0120-939-204へどうぞ。
でお問い合わせ(無料メール 簡単1
※上記の写真は人物等が映っている場合、修正・加工が施されています。
物件情報更新日: 2025/12/12

京橋北見ビル東館の物件概要

ビル名
京橋北見ビル東館
物件番号/物件ID 8630
住所 東京都中央区八丁堀3丁目4番10号 面積(平米) 338.87㎡
最寄り駅
【最寄り駅1】

都営地下鉄浅草線 宝町駅  徒歩2分

【最寄り駅2】

東京メトロ日比谷線 八丁堀駅  徒歩3分

【最寄り駅3】

東京メトロ銀座線 京橋駅  徒歩5分

【最寄り駅4】

東京メトロ有楽町線 新富町駅  徒歩7分

坪数 102.51坪
実行面積
空調 個別
竣工 1989年08月01日
構造 RC地上8階建地下1階
エレベーター基数 1 荷物用エレベーター基数
階数 地上 3階 退去日 退去日の詳細につきましては、お問い合わせください。
備考 2026年2月入居可能(予定)
ビル名
京橋北見ビル東館
住所 8630
最寄り駅
【最寄り駅1】

都営地下鉄浅草線 宝町駅  徒歩2分

【最寄り駅2】

東京メトロ日比谷線 八丁堀駅  徒歩3分

【最寄り駅3】

東京メトロ銀座線 京橋駅  徒歩5分

【最寄り駅4】

東京メトロ有楽町線 新富町駅  徒歩7分

エレベーター基数 1
階数 3階
物件番号/物件ID 8630
面積(平米) 338.87㎡
坪数 102.51坪
実行面積
空調 個別
竣工 1989年08月01日
構造 RC地上8階建地下1階
荷物用エレベーター基数
退去日 退去日の詳細につきましては、お問い合わせください。
備考 2026年2月入居可能(予定)

京橋北見ビル東館の募集価格

総額 坪単価
賃料 1,230,090円 賃料 12,000円
共益費 389,540円 共益費 3,801円
月額合計 1,619,630円 月額合計 15,801円
保証金/敷金 12,300,900円 保証金/敷金 119,998円
礼金 0円 礼金 0円
賃料条件補足事項 償却10%、更新料1ヶ月
総額
賃料 1,230,090円
共益費 389,540円
月額合計 1,619,630円
保証金/敷金 12,300,900円
礼金 0円
坪単価
賃料 12,000円
共益費 3,801円
月額合計 15,801円
保証金/敷金 119,998円
礼金 0円
賃料条件補足事項 償却10%、更新料1ヶ月

京橋北見ビル東館のその他空室情報

階数 広さ 賃料合計(税別) 坪単価 保証金・敷金 礼金
5F 65.85坪 1,040,244円 15,798円 7,900,000円 0円
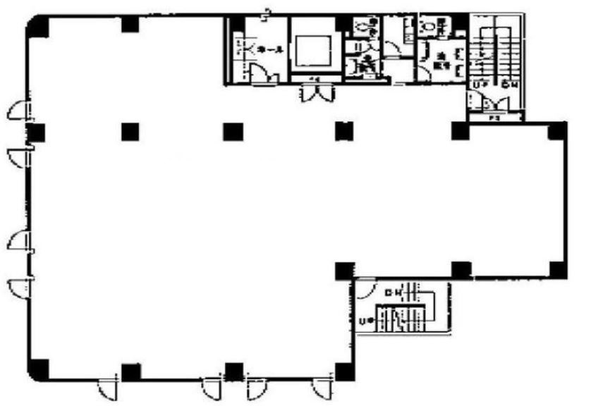
フロア詳細
フロア詳細
空室情報や物件見学などお気軽にお問い合わせください。
ESTATE AGENCY
株式会社エステートエージェンシー
定休日:日曜日・祝日 営業時間:09:00~19:00
でお問い合わせ(無料メール 簡単1 電話でお問い合わせ(無料)
※貸主様からのご要望の為、条件を未公開としている場合がございます。詳しくお聞きになりたい場合は、弊社までご連絡ください。
※賃料、共益費、礼金、その他費用には別途消費税が掛かります。
※上記金額は募集条件です。条件交渉などについてはお気軽にお問い合わせください。

京橋北見ビル東館の施設情報カテゴリ

1棟貸可能
駅直結
大型EV
大型駐車場
大通り沿い
傘いらず
貸会議室
空中店舗相談
ヴィンテージ・レトロ
シャワートイレ
セキュリティ
SOHO(住居兼事務所)
デザイナーズ・個性派
トイレ男女別
荷物EVあり
ハイグレードオフィス
ネット回線引込可
ビル内貸倉庫
免振・制振構造
有人警備
ランドマーク
リニューアル
フリースペース
レンタルオフィス
新耐震
駅近(出口
築浅
川沿い、公園沿い
自転車置場

自転車置場料金: ー 円

京橋北見ビル東館のアクセスマップ

空室情報や物件見学などお気軽にお問い合わせください。
ESTATE AGENCY
株式会社エステートエージェンシー
定休日:日曜日・祝日 営業時間:09:00~19:00
でお問い合わせ(無料メール 簡単1 電話でお問い合わせ(無料)

最近チェックした物件