フロア詳細情報

井門美竹(東京都渋谷区渋谷1丁目20番1号)のフロア情報

井門美竹のビル詳細を見る
空室状況はお電話一本でスムーズにご案内!まずはお気軽に0120-939-204へどうぞ。
でお問い合わせ(無料メール 簡単1
※上記の写真は人物等が映っている場合、修正・加工が施されています。
物件情報更新日: 2026/01/22

井門美竹の物件概要

ビル名
井門美竹
物件番号/物件ID 8840
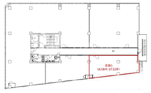
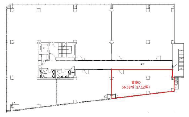
住所 東京都渋谷区渋谷1丁目20番1号 面積(平米) 56.59㎡
最寄り駅
【最寄り駅1】

JR山手線 渋谷駅  徒歩7分

【最寄り駅2】

東京メトロ副都心線 明治神宮前〈原宿〉駅  徒歩7分

【最寄り駅3】

東京メトロ半蔵門線 渋谷駅  徒歩7分

【最寄り駅4】

東京メトロ千代田線 明治神宮前〈原宿〉駅  徒歩8分

坪数 17.12坪
実行面積
空調 個別
竣工 1975年03月01日
構造 RC地上6階建地下1階
エレベーター基数 1 荷物用エレベーター基数
階数 地上 3階 退去日 退去日の詳細につきましては、お問い合わせください。
備考
ビル名
井門美竹
住所 8840
最寄り駅
【最寄り駅1】

JR山手線 渋谷駅  徒歩7分

【最寄り駅2】

東京メトロ副都心線 明治神宮前〈原宿〉駅  徒歩7分

【最寄り駅3】

東京メトロ半蔵門線 渋谷駅  徒歩7分

【最寄り駅4】

東京メトロ千代田線 明治神宮前〈原宿〉駅  徒歩8分

エレベーター基数 1
階数 3階
物件番号/物件ID 8840
面積(平米) 56.59㎡
坪数 17.12坪
実行面積
空調 個別
竣工 1975年03月01日
構造 RC地上6階建地下1階
荷物用エレベーター基数
退去日 退去日の詳細につきましては、お問い合わせください。
備考

井門美竹の募集価格

総額 坪単価
賃料 428,000円 賃料 25,000円
共益費 0円 共益費 0円
月額合計 428,000円 月額合計 25,000円
保証金/敷金 5,136,000円 保証金/敷金 300,000円
礼金 0円 礼金 0円
賃料条件補足事項 保証会社加入必須、火災保険加入必須
総額
賃料 428,000円
共益費 0円
月額合計 428,000円
保証金/敷金 5,136,000円
礼金 0円
坪単価
賃料 25,000円
共益費 0円
月額合計 25,000円
保証金/敷金 300,000円
礼金 0円
賃料条件補足事項 保証会社加入必須、火災保険加入必須

井門美竹のその他空室情報

階数 広さ 賃料合計(税別) 坪単価 保証金・敷金 礼金
6F 89.04坪 2,226,000円 25,000円 26,712,001円 0円
フロア詳細
フロア詳細
空室情報や物件見学などお気軽にお問い合わせください。
ESTATE AGENCY
株式会社エステートエージェンシー
定休日:日曜日・祝日 営業時間:09:00~19:00
でお問い合わせ(無料メール 簡単1 電話でお問い合わせ(無料)

井門美竹の基本情報

インフォメーション
この井門美竹ビルは住所東京都渋谷区渋谷1丁目20番1号の1975年竣工、地上6階建の賃貸オフィスビルです。最寄駅は、JR山手線渋谷駅徒歩7分のアクセス。設備情報はセキュリティ、耐震補強済み、トイレ男女別、光回線、有人警備、部屋セキュリティ。是非一度ご内覧下さいませ! その他、事務所、オフィス移転、不動産の事なら何でもお気軽にご相談下さい。
※貸主様からのご要望の為、条件を未公開としている場合がございます。詳しくお聞きになりたい場合は、弊社までご連絡ください。
※賃料、共益費、礼金、その他費用には別途消費税が掛かります。
※上記金額は募集条件です。条件交渉などについてはお気軽にお問い合わせください。

井門美竹の施設情報カテゴリ

1棟貸可能
駅直結
大型EV
大型駐車場
大通り沿い
傘いらず
貸会議室
空中店舗相談
ヴィンテージ・レトロ
シャワートイレ
セキュリティ
SOHO(住居兼事務所)
デザイナーズ・個性派
トイレ男女別
荷物EVあり
ハイグレードオフィス
ネット回線引込可
ビル内貸倉庫
免振・制振構造
有人警備
ランドマーク
リニューアル
フリースペース
レンタルオフィス
新耐震
駅近(出口
築浅
川沿い、公園沿い
自転車置場

自転車置場料金: ー 円

井門美竹のアクセスマップ

空室情報や物件見学などお気軽にお問い合わせください。
ESTATE AGENCY
株式会社エステートエージェンシー
定休日:日曜日・祝日 営業時間:09:00~19:00
でお問い合わせ(無料メール 簡単1 電話でお問い合わせ(無料)

よく似た物件