フロア詳細情報

赤坂(東京都港区赤坂4丁目1番32号)のフロア情報

赤坂のビル詳細を見る
空室状況はお電話一本でスムーズにご案内!まずはお気軽に0120-939-204へどうぞ。
でお問い合わせ(無料メール 簡単1
※上記の写真は人物等が映っている場合、修正・加工が施されています。
物件情報更新日: 2026/03/30

赤坂の物件概要

ビル名
赤坂
物件番号/物件ID 8815
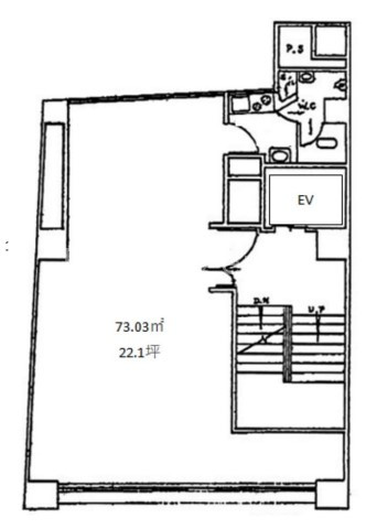
住所 東京都港区赤坂4丁目1番32号 面積(平米) 73.02㎡
最寄り駅
【最寄り駅1】

東京メトロ丸ノ内線 赤坂見附駅  徒歩2分

【最寄り駅2】

東京メトロ千代田線 赤坂駅  徒歩6分

【最寄り駅3】

東京メトロ南北線 永田町駅  徒歩6分

【最寄り駅4】

東京メトロ銀座線 溜池山王駅  徒歩8分

坪数 22.09坪
実行面積
空調 個別
竣工 1964年07月01日
構造 S造地上10階建地下1階
エレベーター基数 1 荷物用エレベーター基数
階数 地上 4階 退去日 退去日の詳細につきましては、お問い合わせください。
備考
ビル名
赤坂
住所 8815
最寄り駅
【最寄り駅1】

東京メトロ丸ノ内線 赤坂見附駅  徒歩2分

【最寄り駅2】

東京メトロ千代田線 赤坂駅  徒歩6分

【最寄り駅3】

東京メトロ南北線 永田町駅  徒歩6分

【最寄り駅4】

東京メトロ銀座線 溜池山王駅  徒歩8分

エレベーター基数 1
階数 4階
物件番号/物件ID 8815
面積(平米) 73.02㎡
坪数 22.09坪
実行面積
空調 個別
竣工 1964年07月01日
構造 S造地上10階建地下1階
荷物用エレベーター基数
退去日 退去日の詳細につきましては、お問い合わせください。
備考

赤坂の募集価格

総額 坪単価
賃料 370,000円 賃料 16,750円
共益費 0円 共益費 0円
月額合計 370,000円 月額合計 16,750円
保証金/敷金 0円 保証金/敷金 0円
礼金 0円 礼金 0円
賃料条件補足事項 サービス店舗可(飲食不可)、火災保険要加入、更新料1ヶ月、償却2ヶ月
総額
賃料 370,000円
共益費 0円
月額合計 370,000円
保証金/敷金 0円
礼金 0円
坪単価
賃料 16,750円
共益費 0円
月額合計 16,750円
保証金/敷金 0円
礼金 0円
賃料条件補足事項 サービス店舗可(飲食不可)、火災保険要加入、更新料1ヶ月、償却2ヶ月
空室情報や物件見学などお気軽にお問い合わせください。
ESTATE AGENCY
株式会社エステートエージェンシー
定休日:日曜日・祝日 営業時間:09:00~19:00
でお問い合わせ(無料メール 簡単1 電話でお問い合わせ(無料)
※貸主様からのご要望の為、条件を未公開としている場合がございます。詳しくお聞きになりたい場合は、弊社までご連絡ください。
※賃料、共益費、礼金、その他費用には別途消費税が掛かります。
※上記金額は募集条件です。条件交渉などについてはお気軽にお問い合わせください。
※確認時点での情報のため、リアルタイム情報はお問合せください。

赤坂の施設情報カテゴリ

1棟貸可能
駅直結
大型EV
大型駐車場
大通り沿い
傘いらず
貸会議室
空中店舗相談
ヴィンテージ・レトロ
シャワートイレ
セキュリティ
SOHO(住居兼事務所)
デザイナーズ・個性派
トイレ男女別
荷物EVあり
ハイグレードオフィス
ネット回線引込可
ビル内貸倉庫
免振・制振構造
有人警備
ランドマーク
リニューアル
フリースペース
レンタルオフィス
新耐震
駅近(出口
築浅
川沿い、公園沿い
自転車置場

自転車置場料金: ー 円

赤坂のアクセスマップ

空室情報や物件見学などお気軽にお問い合わせください。
ESTATE AGENCY
株式会社エステートエージェンシー
定休日:日曜日・祝日 営業時間:09:00~19:00
でお問い合わせ(無料メール 簡単1 電話でお問い合わせ(無料)

よく似た物件

申し訳ございません。
会員登録をお願い致します。

会員登録のメリット

  • 1、非公開物件情報のご紹介が可能です!
  • 2、ご希望条件をいただきましたら新着物件情報等を定期的に配信いたします!
  • 3、会員登録されたお客様にはご契約時に特別なプレゼントをご用意しております!
会員登録

※会員登録は同業者不可、メールアドレスは企業ドメインのみ
※GmailやYahooなどのフリーメールでは会員登録できないこともありますのでご了承ください。