フロア詳細情報

トレードピアお台場(東京都港区台場2丁目3番1号)のフロア情報

空室状況はお電話一本でスムーズにご案内!まずはお気軽に0120-939-204へどうぞ。
でお問い合わせ(無料メール 簡単1
※上記の写真は人物等が映っている場合、修正・加工が施されています。
物件情報更新日: 2026/02/09

トレードピアお台場の物件概要

ビル名
トレードピアお台場
物件番号/物件ID 1992
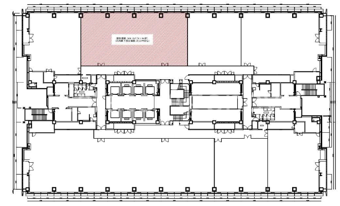
住所 東京都港区台場2丁目3番1号 面積(平米) 369.12㎡
最寄り駅
【最寄り駅1】

りんかい線 東京テレポート駅  徒歩3分

【最寄り駅2】

ゆりかもめ お台場海浜公園駅  徒歩4分

【最寄り駅3】

ゆりかもめ 台場駅  徒歩7分

【最寄り駅4】

ゆりかもめ 青海駅  徒歩7分

坪数 111.66坪
実行面積
空調 集中
竣工 2001年02月01日
構造 SRC地上23階建地下2階
エレベーター基数 19 荷物用エレベーター基数 3
階数 地上 10階 退去日 退去日の詳細につきましては、お問い合わせください。
備考
ビル名
トレードピアお台場
住所 1992
最寄り駅
【最寄り駅1】

りんかい線 東京テレポート駅  徒歩3分

【最寄り駅2】

ゆりかもめ お台場海浜公園駅  徒歩4分

【最寄り駅3】

ゆりかもめ 台場駅  徒歩7分

【最寄り駅4】

ゆりかもめ 青海駅  徒歩7分

エレベーター基数 19
階数 10階
物件番号/物件ID 1992
面積(平米) 369.12㎡
坪数 111.66坪
実行面積
空調 集中
竣工 2001年02月01日
構造 SRC地上23階建地下2階
荷物用エレベーター基数 3
退去日 退去日の詳細につきましては、お問い合わせください。
備考

トレードピアお台場の募集価格

総額 坪単価
賃料 非公開 賃料 非公開
共益費 非公開 共益費 非公開
月額合計 非公開 月額合計 非公開
保証金/敷金 非公開 保証金/敷金 非公開
礼金 非公開 礼金 非公開
賃料条件補足事項 保証会社利用でD0円、段階賃料相談
総額
賃料 非公開
共益費 非公開
月額合計 非公開
保証金/敷金 非公開
礼金 非公開
坪単価
賃料 非公開
共益費 非公開
月額合計 非公開
保証金/敷金 非公開
礼金 非公開
賃料条件補足事項 保証会社利用でD0円、段階賃料相談

トレードピアお台場のその他空室情報

階数 広さ 賃料合計(税別) 坪単価 保証金・敷金 礼金
22F 106.12坪 非公開 非公開 非公開 非公開
フロア詳細
フロア詳細
7F 55.83坪 非公開 非公開 非公開 非公開
フロア詳細
フロア詳細
16F 84.29坪 非公開 非公開 非公開 非公開
フロア詳細
フロア詳細
10F 55.82坪 非公開 非公開 非公開 非公開
フロア詳細
フロア詳細
空室情報や物件見学などお気軽にお問い合わせください。
ESTATE AGENCY
株式会社エステートエージェンシー
定休日:日曜日・祝日 営業時間:09:00~19:00
でお問い合わせ(無料メール 簡単1 電話でお問い合わせ(無料)

トレードピアお台場の基本情報

インフォメーション
このトレードピアお台場ビルは住所東京都港区台場2丁目3番1号の2001年竣工、地上23階建の賃貸オフィスビルです。最寄駅は、りんかい線東京テレポート駅徒歩3分のアクセス。設備情報は大型ビル、貸会議室、セキュリティ、トイレ男女別、24時間利用可能、光回線、OAフロア、部屋セキュリティ。是非一度ご内覧下さいませ! その他、事務所、オフィス移転、不動産の事なら何でもお気軽にご相談下さい。
※貸主様からのご要望の為、条件を未公開としている場合がございます。詳しくお聞きになりたい場合は、弊社までご連絡ください。
※賃料、共益費、礼金、その他費用には別途消費税が掛かります。
※上記金額は募集条件です。条件交渉などについてはお気軽にお問い合わせください。

トレードピアお台場の施設情報カテゴリ

1棟貸可能
駅直結
大型EV
大型駐車場
大通り沿い
傘いらず
貸会議室
空中店舗相談
ヴィンテージ・レトロ
シャワートイレ
セキュリティ
SOHO(住居兼事務所)
デザイナーズ・個性派
トイレ男女別
荷物EVあり
ハイグレードオフィス
ネット回線引込可
ビル内貸倉庫
免振・制振構造
有人警備
ランドマーク
リニューアル
フリースペース
レンタルオフィス
新耐震
駅近(出口
築浅
川沿い、公園沿い
自転車置場

自転車置場料金: ー 円

トレードピアお台場のアクセスマップ

空室情報や物件見学などお気軽にお問い合わせください。
ESTATE AGENCY
株式会社エステートエージェンシー
定休日:日曜日・祝日 営業時間:09:00~19:00
でお問い合わせ(無料メール 簡単1 電話でお問い合わせ(無料)

最近チェックした物件