フロア詳細情報

西新宿ミノシマ(東京都渋谷区代々木4丁目29番4号)のフロア情報

西新宿ミノシマのビル詳細を見る
空室状況はお電話一本でスムーズにご案内!まずはお気軽に0120-939-204へどうぞ。
でお問い合わせ(無料メール 簡単1
※上記の写真は人物等が映っている場合、修正・加工が施されています。
物件情報更新日: 2026/02/07

西新宿ミノシマの物件概要

ビル名
西新宿ミノシマ
物件番号/物件ID 1115
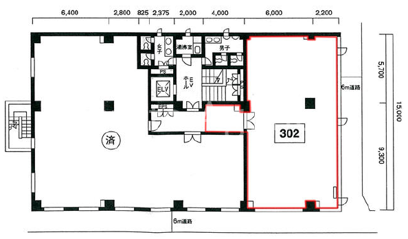
住所 東京都渋谷区代々木4丁目29番4号 面積(平米) 139.07㎡
最寄り駅
【最寄り駅1】

京王線 初台駅  徒歩5分

【最寄り駅2】

小田原線 参宮橋駅  徒歩7分

【最寄り駅3】

都営地下鉄大江戸線 都庁前駅  徒歩12分

【最寄り駅4】

JR山手線 代々木駅  徒歩14分

坪数 42.07坪
実行面積
空調 個別
竣工 1992年07月01日
構造 RC地上4階建地下1階
エレベーター基数 1 荷物用エレベーター基数
階数 地上 3階 退去日 退去日の詳細につきましては、お問い合わせください。
備考
ビル名
西新宿ミノシマ
住所 1115
最寄り駅
【最寄り駅1】

京王線 初台駅  徒歩5分

【最寄り駅2】

小田原線 参宮橋駅  徒歩7分

【最寄り駅3】

都営地下鉄大江戸線 都庁前駅  徒歩12分

【最寄り駅4】

JR山手線 代々木駅  徒歩14分

エレベーター基数 1
階数 3階
物件番号/物件ID 1115
面積(平米) 139.07㎡
坪数 42.07坪
実行面積
空調 個別
竣工 1992年07月01日
構造 RC地上4階建地下1階
荷物用エレベーター基数
退去日 退去日の詳細につきましては、お問い合わせください。
備考

西新宿ミノシマの募集価格

総額 坪単価
賃料 715,190円 賃料 17,000円
共益費 0円 共益費 0円
月額合計 715,190円 月額合計 17,000円
保証金/敷金 7,151,900円 保証金/敷金 170,000円
礼金 0円 礼金 0円
賃料条件補足事項
総額
賃料 715,190円
共益費 0円
月額合計 715,190円
保証金/敷金 7,151,900円
礼金 0円
坪単価
賃料 17,000円
共益費 0円
月額合計 17,000円
保証金/敷金 170,000円
礼金 0円
賃料条件補足事項

西新宿ミノシマのその他空室情報

階数 広さ 賃料合計(税別) 坪単価 保証金・敷金 礼金
1F 101.98坪 1,631,680円 16,000円 16,316,800円 0円
フロア詳細
フロア詳細
空室情報や物件見学などお気軽にお問い合わせください。
ESTATE AGENCY
株式会社エステートエージェンシー
定休日:日曜日・祝日 営業時間:09:00~19:00
でお問い合わせ(無料メール 簡単1 電話でお問い合わせ(無料)
※貸主様からのご要望の為、条件を未公開としている場合がございます。詳しくお聞きになりたい場合は、弊社までご連絡ください。
※賃料、共益費、礼金、その他費用には別途消費税が掛かります。
※上記金額は募集条件です。条件交渉などについてはお気軽にお問い合わせください。
※確認時点での情報のため、リアルタイム情報はお問合せください。

西新宿ミノシマの施設情報カテゴリ

1棟貸可能
駅直結
大型EV
大型駐車場
大通り沿い
傘いらず
貸会議室
空中店舗相談
ヴィンテージ・レトロ
シャワートイレ
セキュリティ
SOHO(住居兼事務所)
デザイナーズ・個性派
トイレ男女別
荷物EVあり
ハイグレードオフィス
ネット回線引込可
ビル内貸倉庫
免振・制振構造
有人警備
ランドマーク
リニューアル
フリースペース
レンタルオフィス
新耐震
駅近(出口
築浅
川沿い、公園沿い
自転車置場

自転車置場料金: ー 円

西新宿ミノシマのアクセスマップ

空室情報や物件見学などお気軽にお問い合わせください。
ESTATE AGENCY
株式会社エステートエージェンシー
定休日:日曜日・祝日 営業時間:09:00~19:00
でお問い合わせ(無料メール 簡単1 電話でお問い合わせ(無料)

よく似た物件