フロア詳細情報

美倉(東京都千代田区神田美倉町丁目なし4番)のフロア情報

美倉のビル詳細を見る
空室状況はお電話一本でスムーズにご案内!まずはお気軽に0120-939-204へどうぞ。
でお問い合わせ(無料メール 簡単1
※上記の写真は人物等が映っている場合、修正・加工が施されています。
物件情報更新日: 2025/11/18

美倉の物件概要

ビル名
美倉
物件番号/物件ID 20944
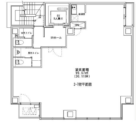
住所 東京都千代田区神田美倉町丁目なし4番 面積(平米) 99.57㎡
最寄り駅
【最寄り駅1】

JR山手線 神田駅  徒歩4分

【最寄り駅2】

JR総武本線 新日本橋駅  徒歩4分

【最寄り駅3】

東京メトロ日比谷線 小伝馬町駅  徒歩4分

【最寄り駅4】

東京メトロ銀座線 三越前駅  徒歩6分

坪数 30.12坪
実行面積
空調 個別
竣工 2019年11月01日
構造 S造一部RC造地上9階建地下1階
エレベーター基数 1 荷物用エレベーター基数
階数 地上 5階 退去日 退去日の詳細につきましては、お問い合わせください。
備考
ビル名
美倉
住所 20944
最寄り駅
【最寄り駅1】

JR山手線 神田駅  徒歩4分

【最寄り駅2】

JR総武本線 新日本橋駅  徒歩4分

【最寄り駅3】

東京メトロ日比谷線 小伝馬町駅  徒歩4分

【最寄り駅4】

東京メトロ銀座線 三越前駅  徒歩6分

エレベーター基数 1
階数 5階
物件番号/物件ID 20944
面積(平米) 99.57㎡
坪数 30.12坪
実行面積
空調 個別
竣工 2019年11月01日
構造 S造一部RC造地上9階建地下1階
荷物用エレベーター基数
退去日 退去日の詳細につきましては、お問い合わせください。
備考

美倉の募集価格

総額 坪単価
賃料 496,980円 賃料 16,500円
共益費 135,540円 共益費 4,500円
月額合計 632,520円 月額合計 21,000円
保証金/敷金 4,969,800円 保証金/敷金 165,000円
礼金 0円 礼金 0円
賃料条件補足事項 更新料:新1ヶ月・償却1ヶ月
総額
賃料 496,980円
共益費 135,540円
月額合計 632,520円
保証金/敷金 4,969,800円
礼金 0円
坪単価
賃料 16,500円
共益費 4,500円
月額合計 21,000円
保証金/敷金 165,000円
礼金 0円
賃料条件補足事項 更新料:新1ヶ月・償却1ヶ月

美倉のその他空室情報

階数 広さ 賃料合計(税別) 坪単価 保証金・敷金 礼金
1F 28.01坪 546,362円 19,507円 4,202,720円 0円
フロア詳細
フロア詳細
空室情報や物件見学などお気軽にお問い合わせください。
ESTATE AGENCY
株式会社エステートエージェンシー
定休日:日曜日・祝日 営業時間:09:00~19:00
でお問い合わせ(無料メール 簡単1 電話でお問い合わせ(無料)
※貸主様からのご要望の為、条件を未公開としている場合がございます。詳しくお聞きになりたい場合は、弊社までご連絡ください。
※賃料、共益費、礼金、その他費用には別途消費税が掛かります。
※上記金額は募集条件です。条件交渉などについてはお気軽にお問い合わせください。

美倉の施設情報カテゴリ

1棟貸可能
駅直結
大型EV
大型駐車場
大通り沿い
傘いらず
貸会議室
空中店舗相談
ヴィンテージ・レトロ
シャワートイレ
セキュリティ
SOHO(住居兼事務所)
デザイナーズ・個性派
トイレ男女別
荷物EVあり
ハイグレードオフィス
ネット回線引込可
ビル内貸倉庫
免振・制振構造
有人警備
ランドマーク
リニューアル
フリースペース
レンタルオフィス
新耐震
駅近(出口
築浅
川沿い、公園沿い
自転車置場

自転車置場料金: ー 円

美倉のアクセスマップ

空室情報や物件見学などお気軽にお問い合わせください。
ESTATE AGENCY
株式会社エステートエージェンシー
定休日:日曜日・祝日 営業時間:09:00~19:00
でお問い合わせ(無料メール 簡単1 電話でお問い合わせ(無料)

よく似た物件