フロア詳細情報

NEWS X(東京都中央区京橋2丁目12番2号)のフロア情報

NEWS Xのビル詳細を見る
空室状況はお電話一本でスムーズにご案内!まずはお気軽に0120-939-204へどうぞ。
でお問い合わせ(無料メール 簡単1
※上記の写真は人物等が映っている場合、修正・加工が施されています。
物件情報更新日: 2025/10/01

NEWS Xの物件概要

ビル名
NEWS X
物件番号/物件ID 7963
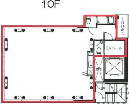
住所 東京都中央区京橋2丁目12番2号 面積(平米) 75.43㎡
最寄り駅
【最寄り駅1】

都営地下鉄浅草線 宝町駅  徒歩1分

【最寄り駅2】

東京メトロ銀座線 京橋駅  徒歩2分

【最寄り駅3】

東京メトロ有楽町線 銀座一丁目駅  徒歩6分

【最寄り駅4】

東京メトロ日比谷線 八丁堀駅  徒歩6分

坪数 22.82坪
実行面積
空調 個別
竣工 2014年09月01日
構造 鉄骨地上10階建
エレベーター基数 1 荷物用エレベーター基数
階数 地上 10階 退去日 退去日の詳細につきましては、お問い合わせください。
備考
ビル名
NEWS X
住所 7963
最寄り駅
【最寄り駅1】

都営地下鉄浅草線 宝町駅  徒歩1分

【最寄り駅2】

東京メトロ銀座線 京橋駅  徒歩2分

【最寄り駅3】

東京メトロ有楽町線 銀座一丁目駅  徒歩6分

【最寄り駅4】

東京メトロ日比谷線 八丁堀駅  徒歩6分

エレベーター基数 1
階数 10階
物件番号/物件ID 7963
面積(平米) 75.43㎡
坪数 22.82坪
実行面積
空調 個別
竣工 2014年09月01日
構造 鉄骨地上10階建
荷物用エレベーター基数
退去日 退去日の詳細につきましては、お問い合わせください。
備考

NEWS Xの募集価格

総額 坪単価
賃料 593,320円 賃料 26,000円
共益費 0円 共益費 0円
月額合計 593,320円 月額合計 26,000円
保証金/敷金 3,559,920円 保証金/敷金 156,000円
礼金 0円 礼金 0円
賃料条件補足事項 償却2ヶ月
総額
賃料 593,320円
共益費 0円
月額合計 593,320円
保証金/敷金 3,559,920円
礼金 0円
坪単価
賃料 26,000円
共益費 0円
月額合計 26,000円
保証金/敷金 156,000円
礼金 0円
賃料条件補足事項 償却2ヶ月
空室情報や物件見学などお気軽にお問い合わせください。
ESTATE AGENCY
株式会社エステートエージェンシー
定休日:日曜日・祝日 営業時間:09:00~19:00
でお問い合わせ(無料メール 簡単1 電話でお問い合わせ(無料)

NEWS Xの基本情報

インフォメーション
このNEWS Xビルは住所東京都中央区京橋2丁目12番2号の2014年竣工、地上10階建の賃貸オフィスビルです。最寄駅は、都営地下鉄浅草線宝町駅徒歩1分のアクセス。設備情報はシャワートイレ、セキュリティ、トイレ男女別、24時間利用可能、光回線、部屋セキュリティ、1フロア1テナント。是非一度ご内覧下さいませ! その他、事務所、オフィス移転、不動産の事なら何でもお気軽にご相談下さい。
※貸主様からのご要望の為、条件を未公開としている場合がございます。詳しくお聞きになりたい場合は、弊社までご連絡ください。
※賃料、共益費、礼金、その他費用には別途消費税が掛かります。
※上記金額は募集条件です。条件交渉などについてはお気軽にお問い合わせください。

NEWS Xの施設情報カテゴリ

1棟貸可能
駅直結
大型EV
大型駐車場
大通り沿い
傘いらず
貸会議室
空中店舗相談
ヴィンテージ・レトロ
シャワートイレ
セキュリティ
SOHO(住居兼事務所)
デザイナーズ・個性派
トイレ男女別
荷物EVあり
ハイグレードオフィス
ネット回線引込可
ビル内貸倉庫
免振・制振構造
有人警備
ランドマーク
リニューアル
フリースペース
レンタルオフィス
新耐震
駅近(出口
築浅
川沿い、公園沿い
自転車置場

自転車置場料金: ー 円

NEWS Xのアクセスマップ

空室情報や物件見学などお気軽にお問い合わせください。
ESTATE AGENCY
株式会社エステートエージェンシー
定休日:日曜日・祝日 営業時間:09:00~19:00
でお問い合わせ(無料メール 簡単1 電話でお問い合わせ(無料)

最近チェックした物件