フロア詳細情報

エルパティオみなと(東京都中央区湊3丁目3番3号)のフロア情報

空室状況はお電話一本でスムーズにご案内!まずはお気軽に0120-939-204へどうぞ。
でお問い合わせ(無料メール 簡単1
※上記の写真は人物等が映っている場合、修正・加工が施されています。
物件情報更新日: 2026/02/13

エルパティオみなとの物件概要

ビル名
エルパティオみなと
物件番号/物件ID 3273
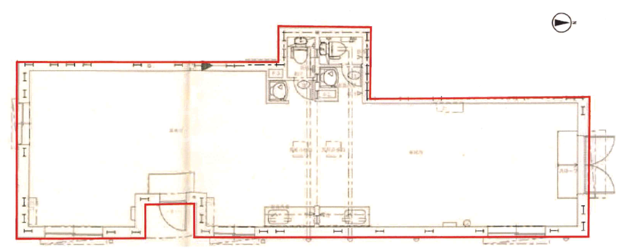
住所 東京都中央区湊3丁目3番3号 面積(平米) 79.86㎡
最寄り駅
【最寄り駅1】

東京メトロ有楽町線 新富町駅  徒歩5分

【最寄り駅2】

東京メトロ日比谷線 築地駅  徒歩6分

【最寄り駅3】

東京メトロ日比谷線 八丁堀駅  徒歩7分

【最寄り駅4】

JR京葉線 八丁堀駅  徒歩6分

坪数 24.16坪
実行面積
空調 個別
竣工 2012年08月01日
構造 鉄骨地上4階建
エレベーター基数 1 荷物用エレベーター基数
階数 地上 1階 退去日 退去日の詳細につきましては、お問い合わせください。
備考 申込中
ビル名
エルパティオみなと
住所 3273
最寄り駅
【最寄り駅1】

東京メトロ有楽町線 新富町駅  徒歩5分

【最寄り駅2】

東京メトロ日比谷線 築地駅  徒歩6分

【最寄り駅3】

東京メトロ日比谷線 八丁堀駅  徒歩7分

【最寄り駅4】

JR京葉線 八丁堀駅  徒歩6分

エレベーター基数 1
階数 1階
物件番号/物件ID 3273
面積(平米) 79.86㎡
坪数 24.16坪
実行面積
空調 個別
竣工 2012年08月01日
構造 鉄骨地上4階建
荷物用エレベーター基数
退去日 退去日の詳細につきましては、お問い合わせください。
備考 申込中

エルパティオみなとの募集価格

総額 坪単価
賃料 362,400円 賃料 15,000円
共益費 0円 共益費 0円
月額合計 362,400円 月額合計 15,000円
保証金/敷金 2,174,400円 保証金/敷金 90,000円
礼金 0円 礼金 0円
賃料条件補足事項 更新料・償却:記載なし要確認
総額
賃料 362,400円
共益費 0円
月額合計 362,400円
保証金/敷金 2,174,400円
礼金 0円
坪単価
賃料 15,000円
共益費 0円
月額合計 15,000円
保証金/敷金 90,000円
礼金 0円
賃料条件補足事項 更新料・償却:記載なし要確認
空室情報や物件見学などお気軽にお問い合わせください。
ESTATE AGENCY
株式会社エステートエージェンシー
定休日:日曜日・祝日 営業時間:09:00~19:00
でお問い合わせ(無料メール 簡単1 電話でお問い合わせ(無料)
※貸主様からのご要望の為、条件を未公開としている場合がございます。詳しくお聞きになりたい場合は、弊社までご連絡ください。
※賃料、共益費、礼金、その他費用には別途消費税が掛かります。
※上記金額は募集条件です。条件交渉などについてはお気軽にお問い合わせください。
※確認時点での情報のため、リアルタイム情報はお問合せください。

エルパティオみなとの施設情報カテゴリ

1棟貸可能
駅直結
大型EV
大型駐車場
大通り沿い
傘いらず
貸会議室
空中店舗相談
ヴィンテージ・レトロ
シャワートイレ
セキュリティ
SOHO(住居兼事務所)
デザイナーズ・個性派
トイレ男女別
荷物EVあり
ハイグレードオフィス
ネット回線引込可
ビル内貸倉庫
免振・制振構造
有人警備
ランドマーク
リニューアル
フリースペース
レンタルオフィス
新耐震
駅近(出口
築浅
川沿い、公園沿い
自転車置場

自転車置場料金: ー 円

エルパティオみなとのアクセスマップ

空室情報や物件見学などお気軽にお問い合わせください。
ESTATE AGENCY
株式会社エステートエージェンシー
定休日:日曜日・祝日 営業時間:09:00~19:00
でお問い合わせ(無料メール 簡単1 電話でお問い合わせ(無料)

よく似た物件

最近チェックした物件